Calorex Delta DT 14 handleiding
Handleiding
Je bekijkt pagina 64 van 84

64
SD675650 ISSUE 6 M172 DELTA
DELTA SYSTEM OWNER INSTALLATION MANUAL
DT1A, DT1B, DT2A, DT2B
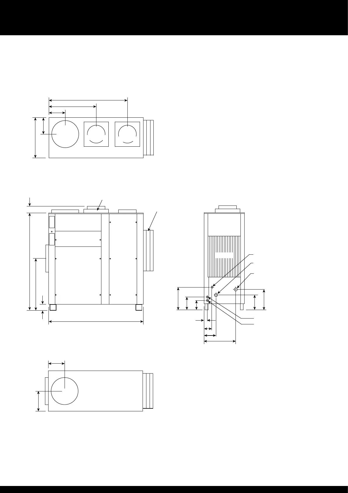
EF Configuration
Standard LPHW water connections 28mm copper stubs
Pool water connections 1" PVC stubs
Drain ¾" BSPM stub
* see Duct dimension data
265
325
Supply air option
diameter 18
"
*
Bottom view (base)
265
767
1272
270
654
Supply
air option
diameter18"
*
*
*
LPHW out
Return air
129
555
331
259
50
155
210
353
Pool water out
Drain
Pool water in
LPHW in
Side view
150
110
Filter
1530
100
840
1575
Service panel
Display panel and
customer access to
control terminals
Front view
Inlet filter duct
Mains in electrical
access panel
Service panel
Exhaust
air out
diameter 12”
Top view
Fresh
air in
diameter 12”
Upgraded LPHW water connections 28mm copper stubs
Supply
air
option
6.0 DIMENSIONS
Bekijk gratis de handleiding van Calorex Delta DT 14, stel vragen en lees de antwoorden op veelvoorkomende problemen, of gebruik onze assistent om sneller informatie in de handleiding te vinden of uitleg te krijgen over specifieke functies.
Productinformatie
| Merk | Calorex |
| Model | Delta DT 14 |
| Categorie | Niet gecategoriseerd |
| Taal | Nederlands |
| Grootte | 13120 MB |






