Calorex Delta DT 12 handleiding
Handleiding
Je bekijkt pagina 72 van 84

72
SD675650 ISSUE 6 M172 DELTA
DELTA SYSTEM OWNER INSTALLATION MANUAL
DT14B, DT16B
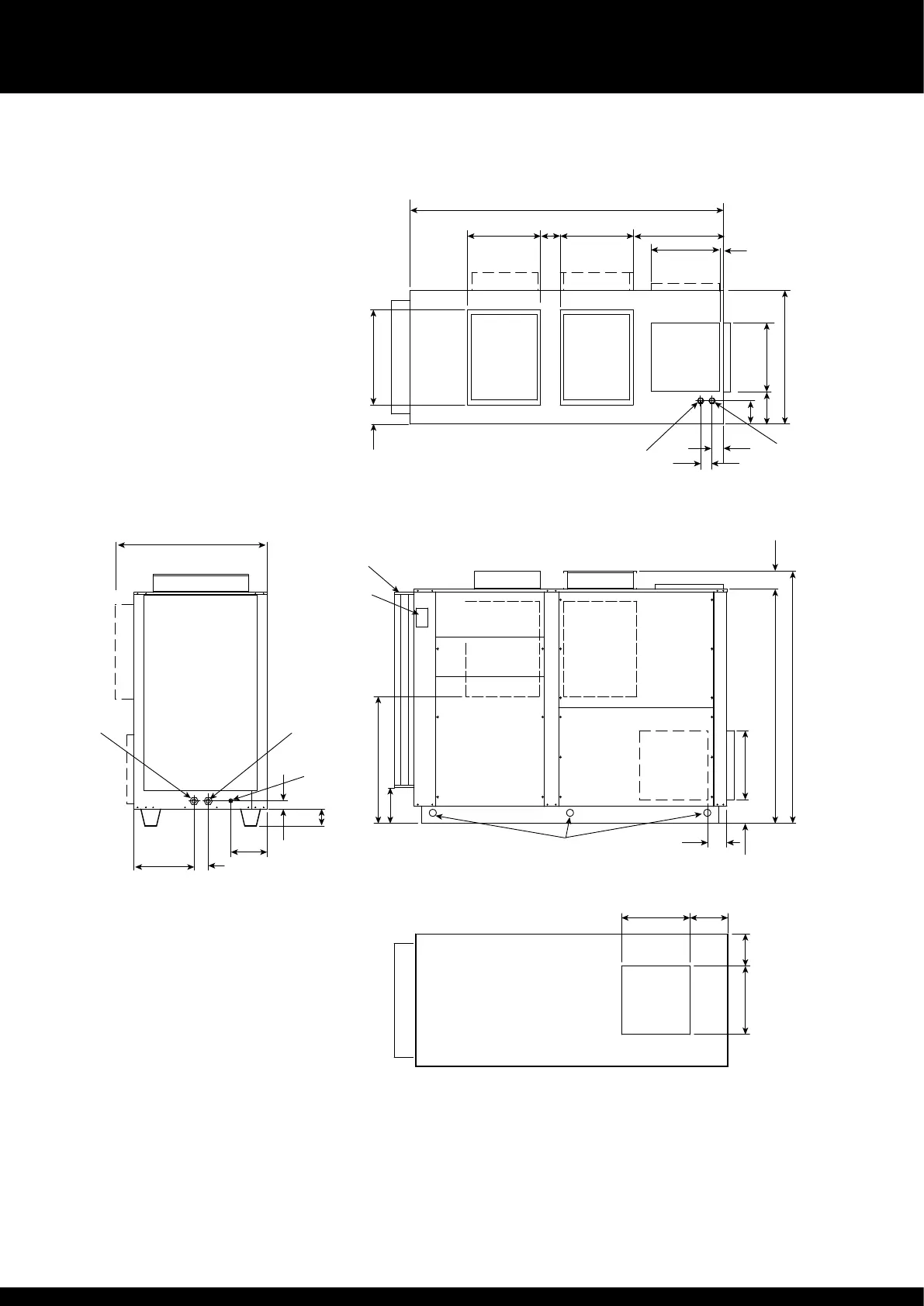
ER Configuration
Pool water connections 1½ BSPM
Standard LPHW connections = 1½ BSPM
Upgraded LPHW connections = 2 BSPM
Drain = ¾ BSPM
* See duct dimension data
*
Bottom view (base)
272.50
575.50
320575
Side view
Condensate
Pool water in
Pool water out
1275
145
Return air
120
309
501
60
Humidistat
access panel
(Access for air
quality sensor,
if fitted)
Inlet filter duct
Side view
2120
1970
580
207
*
Supply
air
option
*
Fresh air
in
option
*
Exhaust air out
option
*
1069
Service panel
Service
panel
160
300
(Filter access)
150
60mm diameter holes for scaffold poles
Mains in
electrical
access panel
Top view
800
580
273
Supply air
option
*
Fresh air in
option
*
Exhaust air
out option
*
32
575
615
615
760
202
1126
2638
163
LPHW out
190
100
100
Supply air
option
Supply air
option
Display panel and
customer access to
control terminals
LPHW in
Service panel
Bekijk gratis de handleiding van Calorex Delta DT 12, stel vragen en lees de antwoorden op veelvoorkomende problemen, of gebruik onze assistent om sneller informatie in de handleiding te vinden of uitleg te krijgen over specifieke functies.
Productinformatie
| Merk | Calorex |
| Model | Delta DT 12 |
| Categorie | Niet gecategoriseerd |
| Taal | Nederlands |
| Grootte | 13120 MB |






