Calorex Delta DT 12 handleiding
Handleiding
Je bekijkt pagina 71 van 84

71
SD675650 ISSUE 6 M172 DELTA
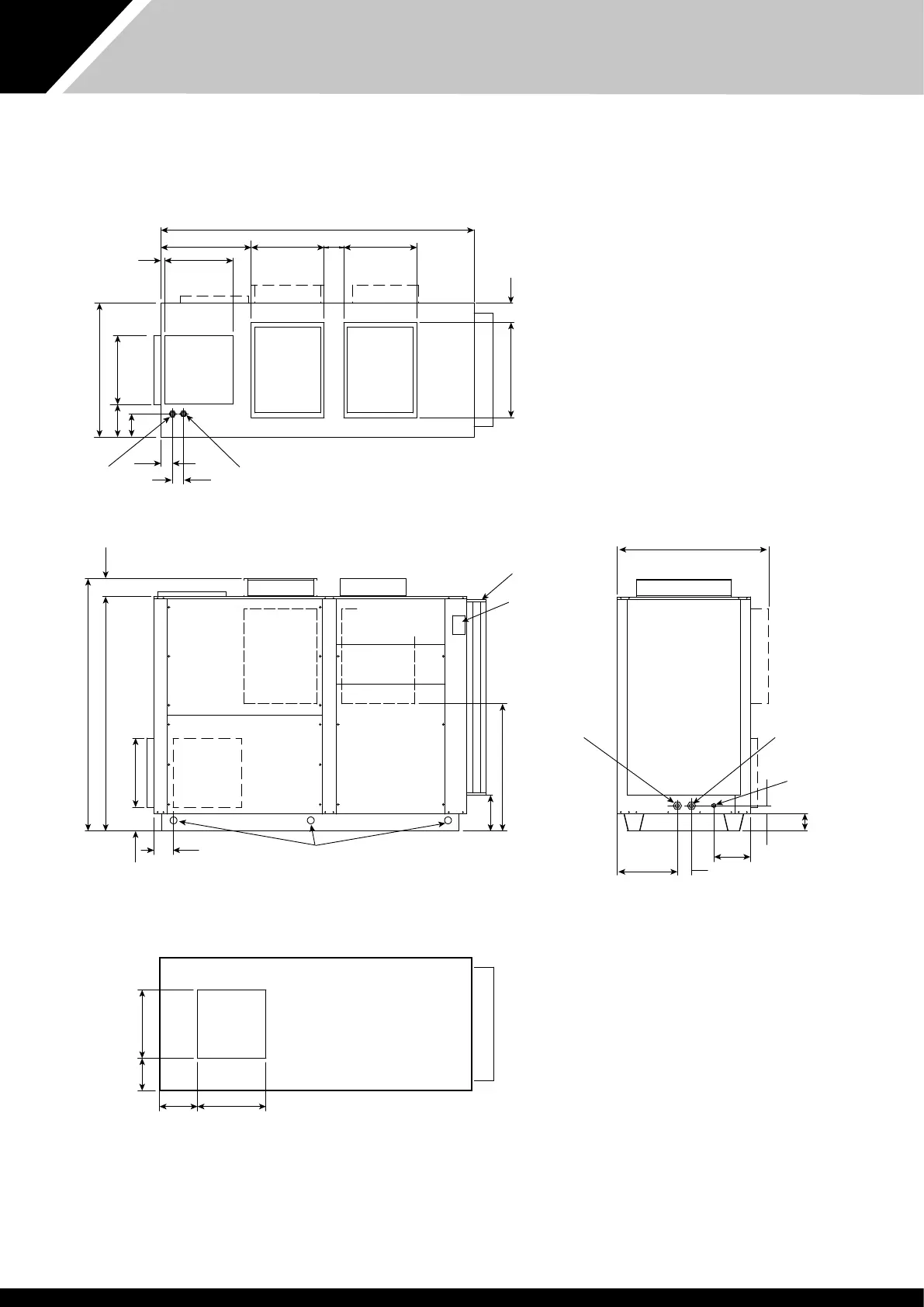
DT14B, DT16B
EF Configuration
Pool water connections 1½ BSPM
Standard LPHW connections = 1½ BSPM
Upgraded LPHW connections = 2 BSPM
Drain = ¾ BSPM
* See duct dimension data
*
Bottom view (base)
272.50 575.50
320 575
Side view
Condensate
Pool water in Pool water out
1275
145
Return air
120
309
501
60
Top view
100
LPHW in
LPHW out
800
580
273
Supply air
option
*
Fresh air in
option
*
Exhaust air
out option
*
32
575
615 615760 202
1126
2638
163
100
190
Humidistat
access panel
(Access for air
quality sensor,
if fitted)
Iinlet filter duct
Side view
2120
1970
580
207
*
Air off
option
*
Fresh air
in
option
*
Exhaust air out
option
*
1069
Service panel
Service
panel
160
300
(Filter access)
150
60mm diameter holes for scaffold poles
Mains in
electrical
access panel
Supply air
option
Service panel
Supply air
option
Display panel and
customer access to
control terminals
Bekijk gratis de handleiding van Calorex Delta DT 12, stel vragen en lees de antwoorden op veelvoorkomende problemen, of gebruik onze assistent om sneller informatie in de handleiding te vinden of uitleg te krijgen over specifieke functies.
Productinformatie
| Merk | Calorex |
| Model | Delta DT 12 |
| Categorie | Niet gecategoriseerd |
| Taal | Nederlands |
| Grootte | 13120 MB |






