Calorex Delta DT 12 handleiding
Handleiding
Je bekijkt pagina 69 van 84

69
SD675650 ISSUE 6 M172 DELTA
DT10B, DT12B
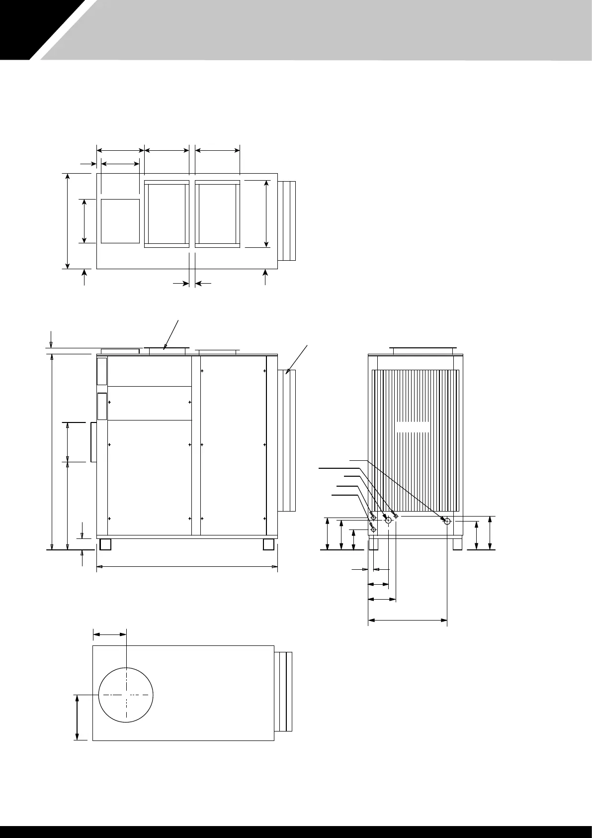
EF Configuration
Standard LPHW connections 35mm copper stubs
Upgraded LPHW connections 35mm copper stubs
Pool water connections 1½" PVC stubs
Drain ¾" BSPM stubs
* See duct dimension data
350
395230
854
41
342
425
406 406
49
197
590
Supply air
option
*
Fresh air
in
*
Exhaust air
out
*
Top view
Inlet filter duct
100
837
352
X 406
1910
Supply air
option
*
1620
Front view
Mains in electrical
access panel
Service panel
58
Service panel
Filter
337
169
250
694
316
Return air
230
49
Pool water out
Drain
Pool water in
LPHW out
LPHW in
Side view
336
Bottom view (base)
Supply air option
diameter 20"
*
298
424
Display panel and
customer access to
control terminals
Bekijk gratis de handleiding van Calorex Delta DT 12, stel vragen en lees de antwoorden op veelvoorkomende problemen, of gebruik onze assistent om sneller informatie in de handleiding te vinden of uitleg te krijgen over specifieke functies.
Productinformatie
| Merk | Calorex |
| Model | Delta DT 12 |
| Categorie | Niet gecategoriseerd |
| Taal | Nederlands |
| Grootte | 13120 MB |






