Calorex Delta DT 12 handleiding
Handleiding
Je bekijkt pagina 44 van 84

44
SD675650 ISSUE 6 M172 DELTA
DELTA SYSTEM OWNER INSTALLATION MANUAL
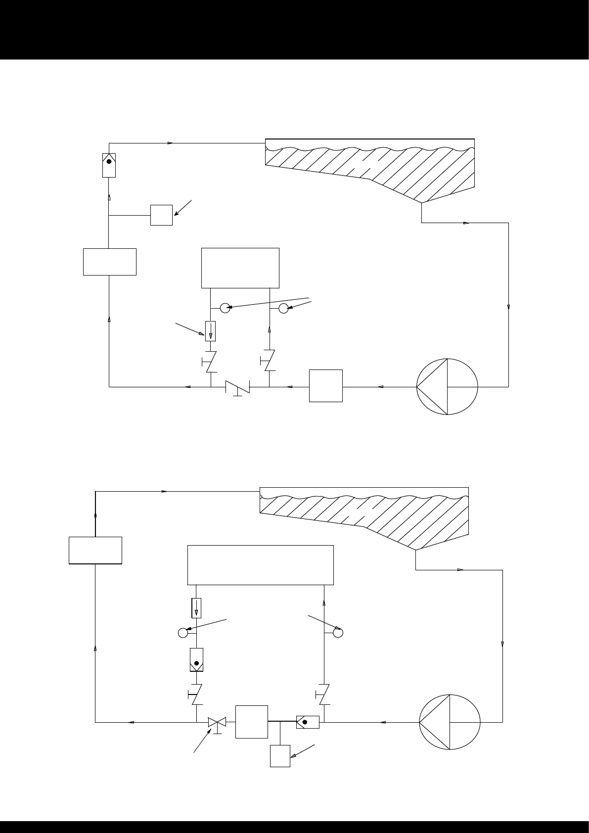
Pool water schematic (standard)
Filter
Pump
Pool
Non return
valve or loop
Sanitiser or chemical
dosing position
aer Delta
Flow setting
pressure gauges
meod
Valve C
Delta
Ensure pool filtration pump selection allows for all system resistance
METHOD
FLOW SETTING
FLOW METER
Isolating
valve A
Bypass valve
(Locking gate valve type)
AUX heater,
if fitted
Fig 3
Pump
Pool
Filter
Bypass valve C
(Locking gate valve type)
Non return
valve or loop
Aux heater
(if fitted)
Isolating
valve B
Delta
Pool water schematic (filter dosing)
Ensure pool filtration pump selection allows for all system resistance
Flow setting
pressure gauges
meod
Isolating
valve A
Isolating
valve B
Non return
valve or loop
Flow setting
flow meter
meod
Sanitiser or chemical
dosing position
before filter
Bekijk gratis de handleiding van Calorex Delta DT 12, stel vragen en lees de antwoorden op veelvoorkomende problemen, of gebruik onze assistent om sneller informatie in de handleiding te vinden of uitleg te krijgen over specifieke functies.
Productinformatie
| Merk | Calorex |
| Model | Delta DT 12 |
| Categorie | Niet gecategoriseerd |
| Taal | Nederlands |
| Grootte | 13120 MB |






