Handleiding
Je bekijkt pagina 20 van 56

20 49-2000707 Rev. 9
INSTALLATION INSTRUCTIONS
Installation Instructions
4
(Alternate Mounting Method) INSTALL HOOD TO SOFFIT OR CABINET
(Cont.)
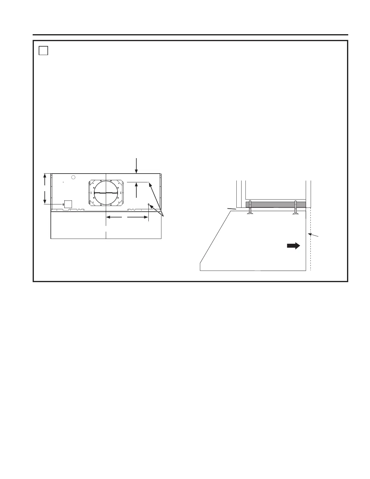
• Drill two 1/8” pilot holes at a distance of 10” from the
back wall in the horizontal wood supports. This is the
vertical distance between mounting keyholes and
back wall as shown in Figure C
• Drill two more 1/8” pilot holes at a distance of 3” from
the back wall in the horizontal wood supports. This is
the vertical distance between mounting screw holes
and back wall as shown in Figure C.
• For top venting, allow minimum opening (Dim. B) to
accommodate damper in soffit or cabinet.
3”
Figure C
Back Wall
10"
A
Keyholes
for Soffit
or Cabinet
Mounting
• Drive mounting Screw (A) into the studs until they
protrude 1/4”. This 1/4” gap will provide clearance to
engage the keyhole slots in the top of the hood.
• The hood must also be secured to the back wall.
Follow instruction on page 18, “Drill Bottom
Mounting Hole Locations” for installation to the
back wall.
• Follow instructions on page 17 "House Wiring
Locations" for wiring setup.
• Lift hood onto mounting screws. Slide back against
the rear wall.
• Pull house wiring through the knockout at the rear or
top of the hood.
• Tighten mounting screws (A).
• Once the hood is secured to the soffit or cabinet,
drive screws (C) to secure the hood to the back wall.
1/4” Gap
Soffit or Cabinet
Back
Wall
Engage Keyhole Slots
and Push Back at Wall
Bekijk gratis de handleiding van Café UVW9484SPSS, stel vragen en lees de antwoorden op veelvoorkomende problemen, of gebruik onze assistent om sneller informatie in de handleiding te vinden of uitleg te krijgen over specifieke functies.
Productinformatie
| Merk | Café |
| Model | UVW9484SPSS |
| Categorie | Afzuigkap |
| Taal | Nederlands |
| Grootte | 6313 MB |





