Café GXSHC40N handleiding
Handleiding
Je bekijkt pagina 79 van 132

35
REMARQUE : L’écran doit afficher une heure
stable (non clignotante).
1.
Pressez la touche RECHARGE et
maintenez-la durant trois secondes. Les mots
RECHARGE NOW (recharger maintenant)
clignotent alors que l’adoucisseur commence
le cycle de remplissage de la recharge. Retirez
le capuchon du puits de saumure et, à l’aide
d’une lampe torche, observez l’eau qui pénètre
dans le réservoir de saumure. Si l’eau ne
pénètre pas dans le réservoir, recherchez une
obstruction dans la buse, le venturi, le bouchon
d’écoulement ou le tuyau de saumure. Voyez
la section Entretien et nettoyage.
2.
Après l’observation du remplissage, pressez
la touche RECHARGE pour avancer
l’adoucisseur à l’étape de saumurage. Un lent
écoulement d’eau vers le drain va commencer.
Vérifiez le tirage de saumure depuis le
réservoir de saumure en pointant la lampe
torche dans le puits de saumure et observez
un abaissement sensible du niveau de liquide
sur une longue période (15 à 20 minutes).
REMARQUE : Assurez-vous qu’un pont de sel
n’empêche pas l’eau d’entrer en contact avec
le sel. Voyez la section Entretien et nettoyage.
Si l’adoucisseur ne tire pas de saumure,
vérifiez :
Une buse et/ou un venturi sale ou
défectueux.
Un joint d’étanchéité de buse ou de venturi
défectueux.
Une buse et un venturi incorrectement
placés sur le joint d’étanchéité.
D’autres défectuosités du robinet intérieur
(joint du rotor, rotor et disque, rondelle
ondulée, etc.).
Évacuation obstruée (vérifiez le raccord et
le tuyau d’évacuation).
REMARQUE : Si la pression du système
d’eau est basse, un tuyau d’évacuation élevé
peut causer une contrepression qui arrête le
tirage de saumure.
3.
À nouveau, pressez RECHARGE pour
avancer l’adoucisseur à l’étape de lavage à
rebours. Vérifiez la présence d’un écoulement
rapide d’eau dans le tuyau d’évacuation. Un
écoulement faible indique l’obstruction du
distributeur supérieur, du bouchon d’écoulement
à rebours ou du tuyau d’évacuation.
4.
Pressez RECHARGE pour avancer
l’adoucisseur à l’étape de rinçage rapide. Encore
une fois, recherchez un écoulement d’évacuation
rapide. Laissez l’adoucisseur d’eau rincer durant
quelques minutes afin d’expulser toute saumure
résiduelle dans le réservoir de résine provenant
du test du cycle de saumurage.
5.
Pour remettre l’adoucisseur en mode de
service, pressez la touche RECHARGE.
Service : Vérification de recharge par avancement manuel
Dépannage avancé pour le service
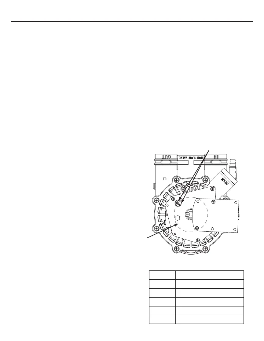
Repères de position (robinet en
service)
Moteur
Came
Figure 20
Positions du robinet :
Position Fonction
S Service
F Remplissage
BR Remplissage de saumure
BW Lavage à rebours
R Rinçage
Bekijk gratis de handleiding van Café GXSHC40N, stel vragen en lees de antwoorden op veelvoorkomende problemen, of gebruik onze assistent om sneller informatie in de handleiding te vinden of uitleg te krijgen over specifieke functies.
Productinformatie
| Merk | Café |
| Model | GXSHC40N |
| Categorie | Niet gecategoriseerd |
| Taal | Nederlands |
| Grootte | 13228 MB |

