Handleiding
Je bekijkt pagina 35 van 40

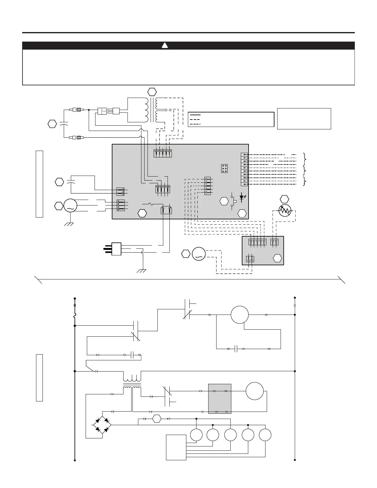
7. D IAGRAMAS DE CABLEADOS (CONTINUACIÓN)
ADVERTENCIA
!
• Riesgo de descarga eléctrica. Antes de cualquier trabajo de reparación o mantenimiento, desconecte siempre el
aparato de su fuente de alimentación.
• Este producto está equipado con una protección contra la sobrecarga (fusible). Un fusible fundido indica que
se p35-ha producido una sobrecarga o cortocircuito. Si el fusible se funde, desenchufe el aparato. Deje de utilizar el
aparato y póngase en contacto con el servicio de asistencia técnica.
15
NE
B
V
A1
J6
1
2
J10
1
2
J14
10
9
8
7
6
5
4
3
2
1
12345
J12
J13
ICP
21345
J8
4321
J9
C1
5 μF
2154321
12
J3
J2
J1
M2
A2
C2
F1
T1
120 VCA
60 Hz
S1
TERMISTOR
3A
T
IPO 3AG
t˚
VE0335E
M
J4-1
J9-3
J6-1
J6-2
J4-2
M
J2-1
J3-1
J3-2J2-2
J12-2
K4
K3
K2
T1
+-
~
~
N
EUTRO
120 VCA
A2
M
OTOR
DEL
REGISTRO
M
OTOR
DEL
VENTILADOR
C1
C
ONDENSADOR
DEL
MOTOR
CPU
K2 K3 K4
3A
J12-1
J10-2
J10-1
J4-3
J9-1
24 VCA
9.5 VCA
C2
V
ELOCIDAD
DEL
MOTOR
J8-4
J8-5
J8-2
J8-1
M1
AZ
M
J4
1
2
3
NE
B
G
R
R
V
NE
Y
A
OL
OC
I
13 μF
N
N
A
A
R1
CONDENSADOR
DEL
MOTOR
K1 K5
S1
J11-2 J11-1
VOLTAJE DE LA LÍNEA
CABLEADO DE FÁBRICA DE BAJO VOLTAJE DE CLASE 2
CABLEADO IN SITU DE BAJO VOLTAJE DE CLASE 2
CODIGOS DE LOS COLORES
AMARILLO
AZUL
BLANCO
MARRÓN
A
AZ
B
M
N
ARANJA
NEGRO
ROJO
VERDE
N
NE
R
V
C
ONTROL A DISTANCIA
DEL CABLEADO IN SITU
INTERRUPTOR
DE
ANULACIÓN
(OPCIONAL)
I
NTERBLOQUEO DEL
VENTILADOR IMPELENTE
DE LA CALDERA
(OPCIONAL)
U
NIDAD ELECTRONICA
24 V Clase 2
9.5 V
Clase 2
MOTOR
DEL
VENTILADOR
DIAGRAMA DE CABLEADOS
MOTOR DEL REGISTRO
UNIDAD ELECTRONICA
DEL
REGISTRO
Lí
NEA
DIAGRAMA LÓGICO
R
B
NE
7.2 MODELOS ERV70T Y ERV70S
Bekijk gratis de handleiding van Broan HRV80T, stel vragen en lees de antwoorden op veelvoorkomende problemen, of gebruik onze assistent om sneller informatie in de handleiding te vinden of uitleg te krijgen over specifieke functies.
Productinformatie
Merk | Broan |
Model | HRV80T |
Categorie | Airco |
Taal | Nederlands |
Grootte | 7602 MB |