Handleiding
Je bekijkt pagina 35 van 36

35
16. GARANTÍA
GARANTÍA LIMITADA DE UN AÑO DE LOS PRODUCTOS BROAN ELITE
Broan-NuTone LLC (Broan NuTone) garantiza al consumidor comprador original de sus productos que
dichos productos carecen de defectos en los materiales o de mano de obra por un período de un año
a partir de la fecha de compra original. NO EXISTEN OTRAS GARANTÍAS, EXPRESAS O IMPLÍCITAS,
INCLUYENDO — AUNQUE SIN LIMITARSE A ELLAS — LAS GARANTÍAS IMPLÍCITAS, DE APTITUD O
IDONEIDAD PARA UN PROPÓSITO PARTICULAR.
Durante el período de un año, y a su propio criterio, Broan-NuTone reparará o reemplazará sin costo todo
producto o pieza que se considere defectuosa en condiciones normales de servicio y uso.
ESTA GARANTÍA NO SE APLICA A LOS CEBADORES, TUBOS, BOMBILLAS HALÓGENAS Y
INCANDESCENTES, A LOS FUSIBLES, FILTROS, TUBOS, CAPUCHONES PARA TEJADOS,
CAPUCHONES MURALES Y OTROS ACCESORIOS DE CANALIZACIÓN..
Esta garantía no cubre: a) el mantenimiento y servicios normales ni b) ningún producto o pieza mal utilizados
o que hayan sido objeto de mal uso, negligencia, accidente, mantenimiento o reparación inadecuados (por
compañías distintas a Broan-NuTone), instalación defectuosa, o instalación no conforme a las instrucciones
de instalación recomendadas.
La duración de cualquier garantía implícita se limita a un periodo de un año, como se indica en la garantía
expresa. Algunos estados o provincias no permiten limitaciones en cuanto al tiempo de expiración de una
garantía implícita, por lo que la limitación antes mencionada puede que no se aplique en su caso.
LA OBLIGACIÓN DE BROAN-NUTONE DE REPARAR O REEMPLAZAR, SIGUIENDO EL CRITERIO
DE BROAN-NUTONE DEBERÁ SER EL UNICO Y EXCLUSIVO RECURSO LEGAL DEL COMPRADOR
BAJO ESTA GARANTÍA. BROAN-NUTONE NO SERÁ RESPONSABLE POR DAÑOS ACCIDENTALES,
CONSIGUIENTES, O POR DAÑOS ESPÉCIALES SURGIDOS O EN CONEXIÓN CON EL USO O EL
RENDIMIENTO DEL PRODUCTO. Algunos estados o provincias no permiten la exclusión o limitación
de daños accidentales o consiguientes, por lo que la limitación antes mencionada puede no aplicarse
a usted.
Esta garantía le proporciona derechos legales específicos, y usted puede también tener otros derechos, los cuales
varían de estado a estado o de provincia a provincia. Esta garantía reemplaza todas las garantías anteriores.
Para calificar en el servicio de garantía, usted debe (a) notificar a Broan-NuTone a la dirección o teléfono que
se menciona abajo, (b) dar el número del modelo y la identificación de la pieza y (c) describir la naturaleza de
cualquier defecto en el producto o pieza. En el momento de solicitar servicio cubierto por la garantía, usted
debe presentar evidencia de la fecha original de la compra.
Estados Unidos - Broan-NuTone LLC; 926 W. State Street, Hartford, Wisconsin 53027 www.broan.com
800-558-1711
Canadá - Venmar Ventilation ULC; 550 boul. Lemire, Drummondville, QC J2C 7W9 www.broan.ca 877-896-1119
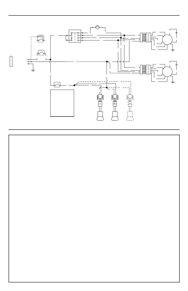
15. DIAGRAMA ELÉCTRICO
HE0137E
M
AZ
B
N
NE
R
G
M
M
AZ
B
N
NE
R
G
M
RR
AZ
N
NE
NE
NE
A
O
NE NE
NE
B
B
B
B
B
B
B
A
A
A
A
B
1
2
3
4
AZ
N
NE
AZ
AZ
B
B
NE
NE
N
N
OFF
CÓDIGO DE COLORES
A AMARILLO
AZ AZUL
B BLANCO
G GRIS
M MARRÓN
N NARANJA
NE NEGRO
R ROJO
120 VAC
LÍNEA
HILO NEUTRO
TIERRA
LÁMPARA LÁMPARA LÁMPARA
TERMOSTATO
HEAT SENTRY
INTERRUPTOR
PRINCIPAL
INTERRUPTOR
PRINCIPAL
I
NTERRUPTOR
DE LÁMPARA
Bekijk gratis de handleiding van Broan Elite EPD6142SS, stel vragen en lees de antwoorden op veelvoorkomende problemen, of gebruik onze assistent om sneller informatie in de handleiding te vinden of uitleg te krijgen over specifieke functies.
Productinformatie
| Merk | Broan |
| Model | Elite EPD6142SS |
| Categorie | Afzuigkap |
| Taal | Nederlands |
| Grootte | 4887 MB |







