Broan CST80SLW handleiding
Handleiding
Je bekijkt pagina 26 van 28

INSTRUCCIONES DE INSTALACIÓN, USO Y CUIDADO
INSTALACIÓN
26
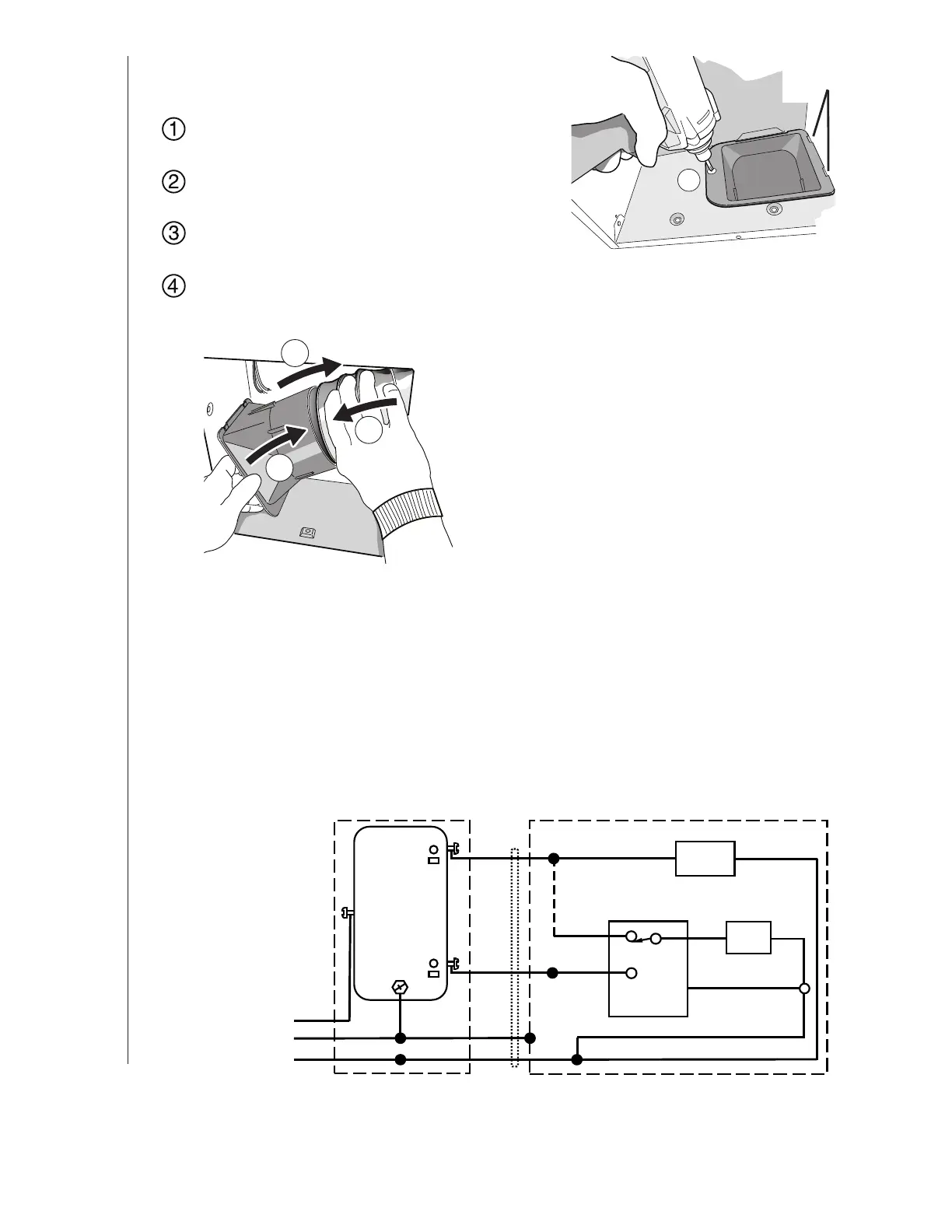
DIAGRAMAS DE CABLEADO
OPCIÓN DE CABLEADO N.º 1
• Cuando el primer interruptor (1) está encendido (ON), el ventilador funcionará automáticamente, con base en las
condiciones de humedad de la habitación.
• Encienda el ventilador de inmediato el periodo fijado en el temporizador (para controlar olores) ciclando el primer
interruptor.
• Use el segundo interruptor (2) para encender/apagar la luz.
• Con la conexión opcional mostrada, el ventilador siempre estará encendido cuando la luz esté encendida.
NEGRO
CONTROL
DE HUMEDAD
LUZ
VENTILADOR
GRIS
CAFÉ
NEGRO
ROJO
NEGRO
NEGRO
BLANCO
BLANCO
BLANCO
BLANCO
BLANCO
TIERRA
TIERRA
LUZ
(ENCENDIDO/
APAGADO)
VENTILADOR
(AUTO/
APAGADO)
LÍNEA DE
ENTRADA
DE
120 VCA
COM
CONTROL DE 2 FUNCIONES
(SE COMPRA POR SEPARADO)
BLANCO
TIERRA
INTERRUPTOR UNIDAD
(Opcional)
(1)
(2)
9. Conecte el conducto redondo de
4 pulg. (10 cm).
Pase el conducto existente por la abertura de
descarga de la cubierta.
Fije y pegue con cinta los conductos al conector
de conducto.
Pase el conector/conducto de vuelta a través de
la abertura.
Enganche las lengüetas y fíjelas con el tornillo
incluido en la bolsa de piezas.
Instale el soplador. Termine el cielo
raso y a continuación instale la rejilla.
Vea los pasos 9 y 10 en la página 22.
1
2
3
4
LENGÜETAS
Bekijk gratis de handleiding van Broan CST80SLW, stel vragen en lees de antwoorden op veelvoorkomende problemen, of gebruik onze assistent om sneller informatie in de handleiding te vinden of uitleg te krijgen over specifieke functies.
Productinformatie
Merk | Broan |
Model | CST80SLW |
Categorie | Ventilator |
Taal | Nederlands |
Grootte | 5080 MB |