Handleiding
Je bekijkt pagina 44 van 112

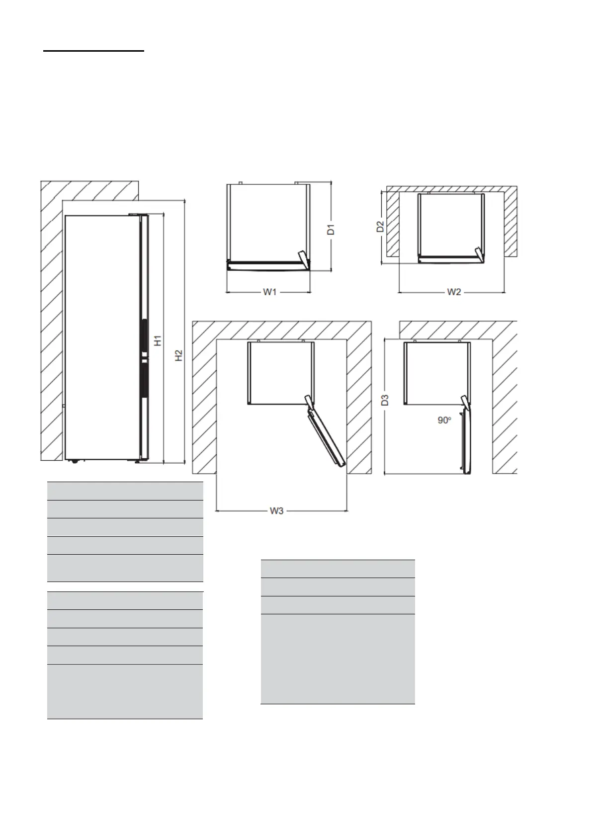
Space required
• Choose a location that is not directly to sunlight.
• Choose a location with enough space so that the refrigerator can open easily.
• Allow for a safety distance on the right-hand side, left-hand side, back and above the
appliance when installing it. This allows optimising product performance, reduces your
power consumption and therefore limits your electricity bill (see diagram below).
• Make sure that air can freely circulate behind the appliance.
Note that this appliance is not designed for built-in installation.
Overall dimensions
1
H1
mm
1860.0
W1
mm
595.0
D1
mm
650.0
1
the height, width and depth of the
appliance without the handle.
Space required for use
2
H2
mm
2010.0
W2
mm
695.0
D2
mm
744.1
2
the height, width and depth of the
appliance, including the handle, and the
space required for free circulation of the
cooling air.
Overall space required for use
3
W3
mm
981.6
D3
mm
1243.5
3
the height, width and depth of the
appliance, including the handle, plus
the space required for free circulation of
the cooling air, plus the space required
to allow the door to open to the
minimum angle to allow removal of all
internal equipment.
Bekijk gratis de handleiding van Brandt BFC8566NX, stel vragen en lees de antwoorden op veelvoorkomende problemen, of gebruik onze assistent om sneller informatie in de handleiding te vinden of uitleg te krijgen over specifieke functies.
Productinformatie
Merk | Brandt |
Model | BFC8566NX |
Categorie | Koelkast |
Taal | Nederlands |
Grootte | 15034 MB |