Bradley S19-500 handleiding
Handleiding
Je bekijkt pagina 5 van 47

5
Installation S19-500 Series & S19-505 Series
Bradley • 215-1910 Rev. D: ECO 21-05-013 7/6/2021
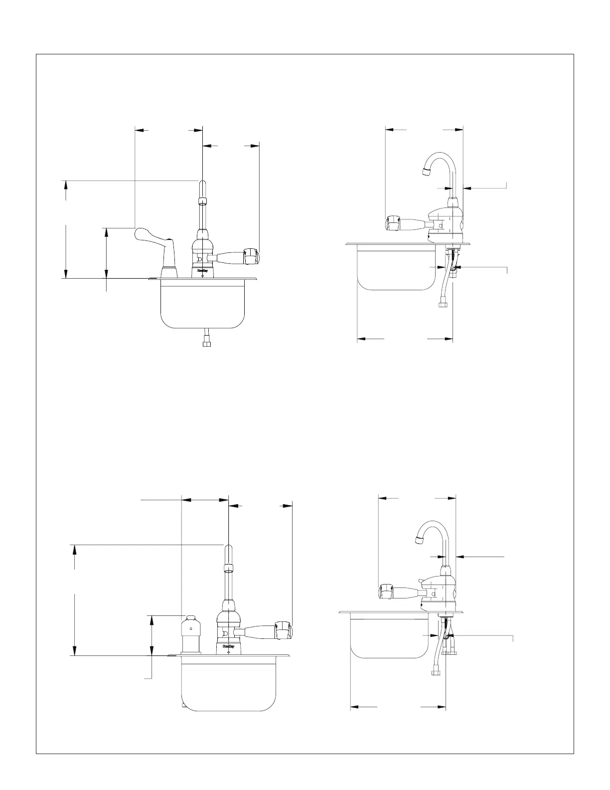
Dimensions – S19-500T & S19-505T
Dimensions – S19-500M & S19-505M
Front View (S19-500T shown)
Front View (S19-500M shown)
Side View (S19-500T shown)
Side View (S19-500M shown)
11¾"
(298)
8¹⁄₈" (205)
6¾"
(172)
6"
(153)
1⁵⁄₁₆" (33)
1" (24) Min.
Clearance
12¼" Min.
(311)
10" (253)
1⁵⁄₁₆" (33)
1" (24) Min.
Clearance
12¼" Min.
(311)
10" (253)
11¾"
(298)
5" (127)
6¾" (172)
4¼" (108)
Bekijk gratis de handleiding van Bradley S19-500, stel vragen en lees de antwoorden op veelvoorkomende problemen, of gebruik onze assistent om sneller informatie in de handleiding te vinden of uitleg te krijgen over specifieke functies.
Productinformatie
| Merk | Bradley |
| Model | S19-500 |
| Categorie | Niet gecategoriseerd |
| Taal | Nederlands |
| Grootte | 6634 MB |



