Bradley S19-500 handleiding
Handleiding
Je bekijkt pagina 35 van 47

35
Instalación Series S19-500 y S19-505
Bradley • 215-1910 Mod. D: ECO 21-05-013 7/6/2021
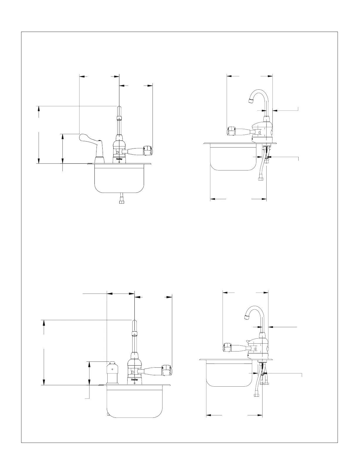
Dimensiones: S19-500T y S19-505T
Dimensiones: S19-500M y S19-505M
Vista delantera (se muestra S19-500T)
Vista delantera (se muestra S19-500M)
Vista lateral (se muestra S19-500T)
Vista lateral (se muestra S19-500M)
298
(11¾)
205 (8¹⁄₈)
172
(6¾)
153
(6)
33 (1⁵⁄₁₆)
Espacio libre
24 (1) mín.
311 (12¼)
mín.
253 (10)
33 (1⁵⁄₁₆)
Espacio libre
24 (1) mín.
311 (12¼)
mín.
253 (10)
298
(11¾)
127 (5)
172 (6¾)
108 (4¼)
mm (pulg.)
Bekijk gratis de handleiding van Bradley S19-500, stel vragen en lees de antwoorden op veelvoorkomende problemen, of gebruik onze assistent om sneller informatie in de handleiding te vinden of uitleg te krijgen over specifieke functies.
Productinformatie
| Merk | Bradley |
| Model | S19-500 |
| Categorie | Niet gecategoriseerd |
| Taal | Nederlands |
| Grootte | 6634 MB |



