Handleiding
Je bekijkt pagina 41 van 44

Installation instructions en
41
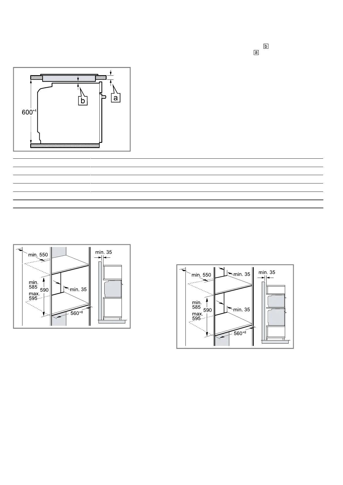
29.4 Installation underneath a hob
If the appliance is installed under a hob, the following
minimum dimensions must be adhered to (including
substructure, if applicable).
The minimum worktop thickness a is based on the
required minimum clearance .
Hob type a raised in mm a flush in mm b in mm
Induction hob 37 38 5
Full-surface induction hob 47 48 5
Gas hob 27 38 5
1
Electric hob 27 30 2
1
Observe different national installation instructions for the hob.
29.5 Installation in a tall unit
Observe the installation dimensions and the installation
instructions when installing in a tall unit.
¡ To ventilate the appliance, the intermediate floors
must have a ventilation cut-out.
¡ If the tall unit has another back panel in addition to
the element back panels, this must be removed.
¡ Only fit the appliance up to a height which allows
accessories to be easily removed.
29.6 Installing two appliances on top of
each other
Your appliance can also be installed above or below
another appliance. Observe the installation dimensions
and the installation instructions when installing appli-
ances on top of each other.
¡ To ventilate the appliances, the intermediate floor
must have a ventilation cut-out.
¡ To ensure sufficient ventilation of the two appli-
ances, there must be a ventilation opening of at
least 200cm² in the base area. To do this, trim the
base panel or fit a ventilation grille.
Bekijk gratis de handleiding van Bosch HBG756CB1M, stel vragen en lees de antwoorden op veelvoorkomende problemen, of gebruik onze assistent om sneller informatie in de handleiding te vinden of uitleg te krijgen over specifieke functies.
Productinformatie
Merk | Bosch |
Model | HBG756CB1M |
Categorie | Oven |
Taal | Nederlands |
Grootte | 5891 MB |