Handleiding
Je bekijkt pagina 43 van 48

Installation instructions en
43
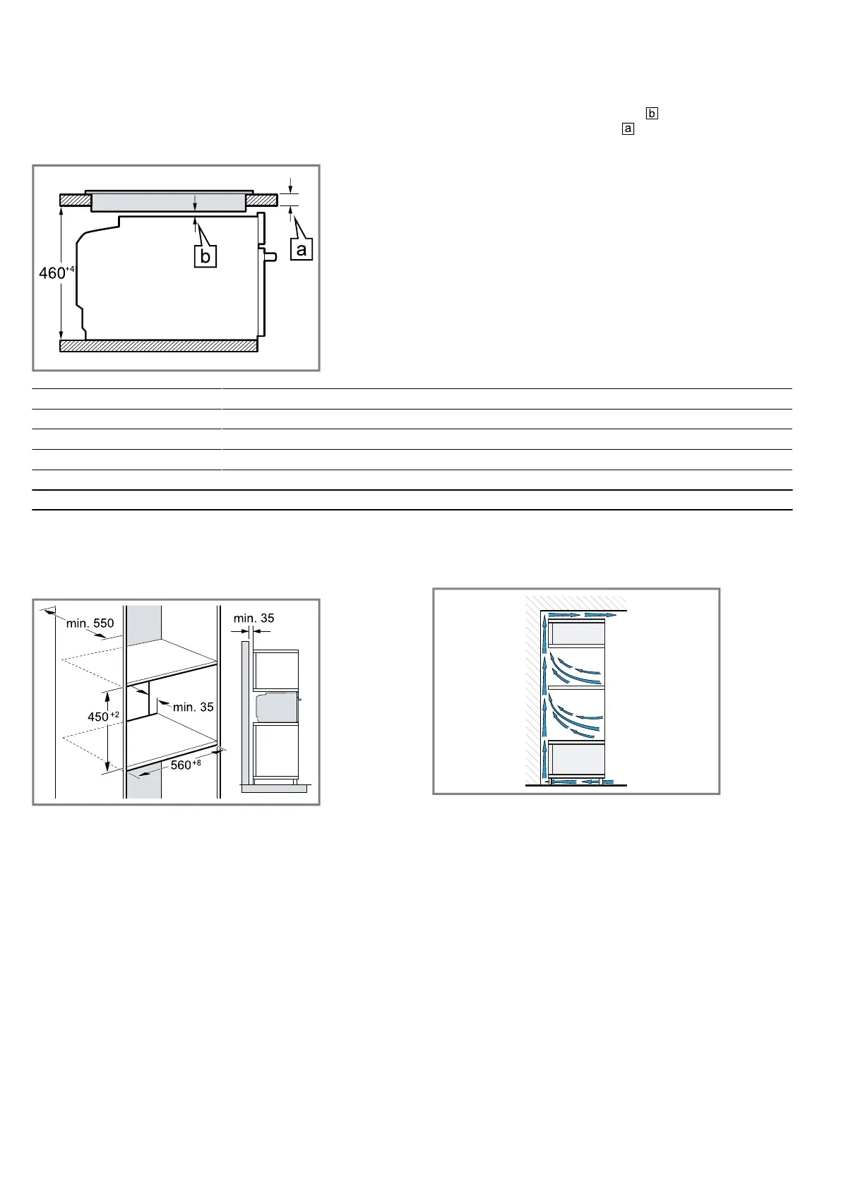
29.4 Installation underneath a hob
If the appliance is installed under a hob, the following
minimum dimensions must be adhered to (including
substructure, if applicable).
The minimum worktop thickness a is based on the
required minimum clearance .
Hob type a raised in mm a flush in mm b in mm
Induction hob 42 43 5
Full-surface induction hob 52 53 5
Gas hob 32 43 5
1
Electric hob 32 35 2
1
Observe different national installation instructions for the hob.
29.5 Installation in a tall unit
Observe the installation dimensions and the installation
instructions when installing in a tall unit.
¡ To ventilate the appliance, the intermediate floors
must have a ventilation cut-out.
¡ In order to ensure sufficient ventilation of the appli-
ance, there must be a ventilation opening of at least.
200cm² in the base area. To do this, trim the base
panel or fit a ventilation grille. Ensure that the air ex-
change is guaranteed in accordance with the dia-
gram.
¡ If the tall unit has another back panel in addition to
the element back panels, this must be removed.
¡ Only fit the appliance up to a height which allows
accessories to be easily removed.
Bekijk gratis de handleiding van Bosch CMG7361B1M, stel vragen en lees de antwoorden op veelvoorkomende problemen, of gebruik onze assistent om sneller informatie in de handleiding te vinden of uitleg te krijgen over specifieke functies.
Productinformatie
| Merk | Bosch |
| Model | CMG7361B1M |
| Categorie | Oven |
| Taal | Nederlands |
| Grootte | 5795 MB |







