Handleiding
Je bekijkt pagina 12 van 60

EN
12
Technical data
www.bora.com
3.2 Pure (PURA, PURU)
Parameter Value
Multiphase supply voltage 380-415 V 2N/3N
Single-phase supply voltage 220-240 V
Frequency 50 Hz/60 Hz
Maximum power consumption 7,6 kW
(4,4 kW / 3,6 kW)
Fuse protection/Three-phase power supply
Fuse protection/Two-phase power supply
Fuse protection/Single-phase power supply
3 x 16 A
2 x 16 A
1 x 32 A
(1 x 20 A / 1 x 16 A)
Dimensions (width x depth x height) 760 x 515 x 199 mm
Weight (incl. accessories/packaging) 22,5 kg (PURA)
24,4 kg (PURU)
Cooktop
Material surface glass ceramic
Power levels 1 – 9, P
Front cooking zone size Ø 210 mm
Front cooking zone power setting output 2300 W
3000 W
Rear cooking zone size Ø 175 mm
Rear cooking zone power setting output 1400 W
2100 W
Cooktop energy consumption (pan size)
Cooking zone 1 front left (210 mm) 186.3 Wh/kg
Cooking zone 2 back left (180 mm) 177.2 Wh/kg
Cooking zone 3 front right (210 mm) 191.5 Wh/kg
Cooking zone 4 back right (150 mm) 177.2 Wh/kg
Total (average) 183.1 Wh/kg
Extraction system (PURA)
Power levels 1 – 9, P
Exhaust air connection BORA Ecotube
Recirculation system (PURU)
Power levels 1-9, P
Recirculation connection (WxH) 445 x 137 mm
Recirculation filter (PURU)
Maximum filter capacity 150 (1 year)
Tab. 3.2 Technical data Pure (PURA, PURU)
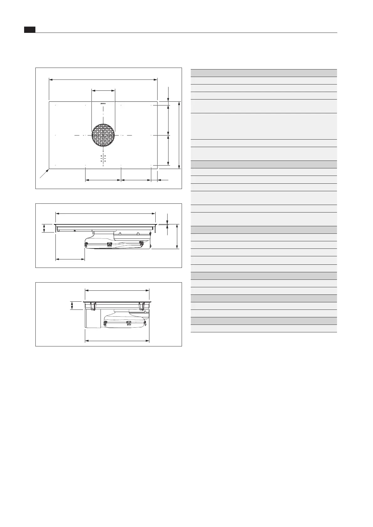
Device dimensions PUXU
230290
R3
40
515
830
230 230
Ø175
27,5
Fig. 3.4 PUXU device dimensions top view
6
68
199
233
802
Fig. 3.5 PUXU device dimensions front view
487
63
485
Fig. 3.6 PUXU device dimensions side view
Bekijk gratis de handleiding van Bora PUXA, stel vragen en lees de antwoorden op veelvoorkomende problemen, of gebruik onze assistent om sneller informatie in de handleiding te vinden of uitleg te krijgen over specifieke functies.
Productinformatie
| Merk | Bora |
| Model | PUXA |
| Categorie | Fornuis |
| Taal | Nederlands |
| Grootte | 9083 MB |







