Bomann GSPE 7423 TI handleiding
Handleiding
Je bekijkt pagina 8 van 48

8
• Reinigen und trocknen Sie zuvor die betroffene
Fläche der Arbeitsplatte gründlich.
• Nehmen Sie die Schutzfolie des Kondensations-
streifens ab und kleben Sie ihn bündig zur Ar-
beitsplattenkante.
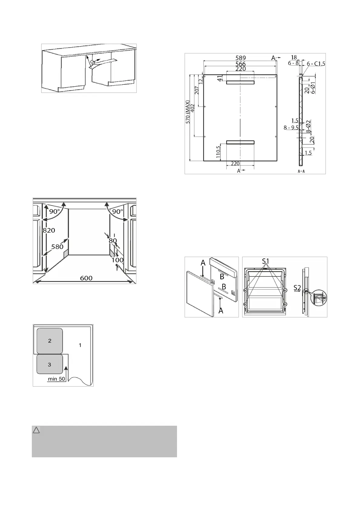
Schrankausschnitt
Bereiten Sie den Ausschnitt im Umbauschrank ge-
mäß der Maßskizze vor.
Einheit mm
Wenn das Gerät in der Ecke des Unterbaus montiert
wird, muss genügend Platz zum Öffnen der Gerä-
tetür verbleiben.
1
Küchenmöbel
2
Geschirrspüler
3
Gerätetür
Einheit mm
Abmessung und Vorbereitung der Sichtblende
Bereiten Sie die Holz- Sichtblende gemäß der nach-
stehenden Maßskizze vor.
ACHTUNG:
Überprüfen Sie vor dem Bohren die Möbelfront auf
ausreichende Stärke.
Einheit mm
• Richten Sie die beiliegende Bohrschablone aus
und markieren Sie die notwendigen Bohrungen.
Überprüfen Sie diese mit einer Wasserwaage.
• Bohren Sie Löcher von Ø 2 mm und ca. 8 mm
Tiefe an den vormarkierten Positionen in die
Blende.
Befestigung der Sichtblende
• Trennen Sie die beiliegenden Klettverschlussstrei-
fen (A) und (B) voneinander.
• Kleben Sie die Klettstreifen (A) auf die Holz-
Sichtblende (oben und unten) und die Filzstreifen
(B) in entsprechender Höhe auf die Gerätetür.
• Richten Sie die Blende und die Gerätefront anei-
nander aus und fixieren Sie die Blende auf der
Gerätetür.
• Entfernen Sie dafür zunächst die ab Werk montie-
ren kurzen Schrauben (4xS1) von der Türinnen-
seite.
• Drehen Sie die beiliegenden langen Schrauben
(4xS2) ein.
Bekijk gratis de handleiding van Bomann GSPE 7423 TI, stel vragen en lees de antwoorden op veelvoorkomende problemen, of gebruik onze assistent om sneller informatie in de handleiding te vinden of uitleg te krijgen over specifieke functies.
Productinformatie
Merk | Bomann |
Model | GSPE 7423 TI |
Categorie | Vaatwasser |
Taal | Nederlands |
Grootte | 6366 MB |