BlueStar RNB486GV2CPLT handleiding

17 pagina's
PDF beschikbaar

Handleiding

Je bekijkt pagina 9 van 17
9
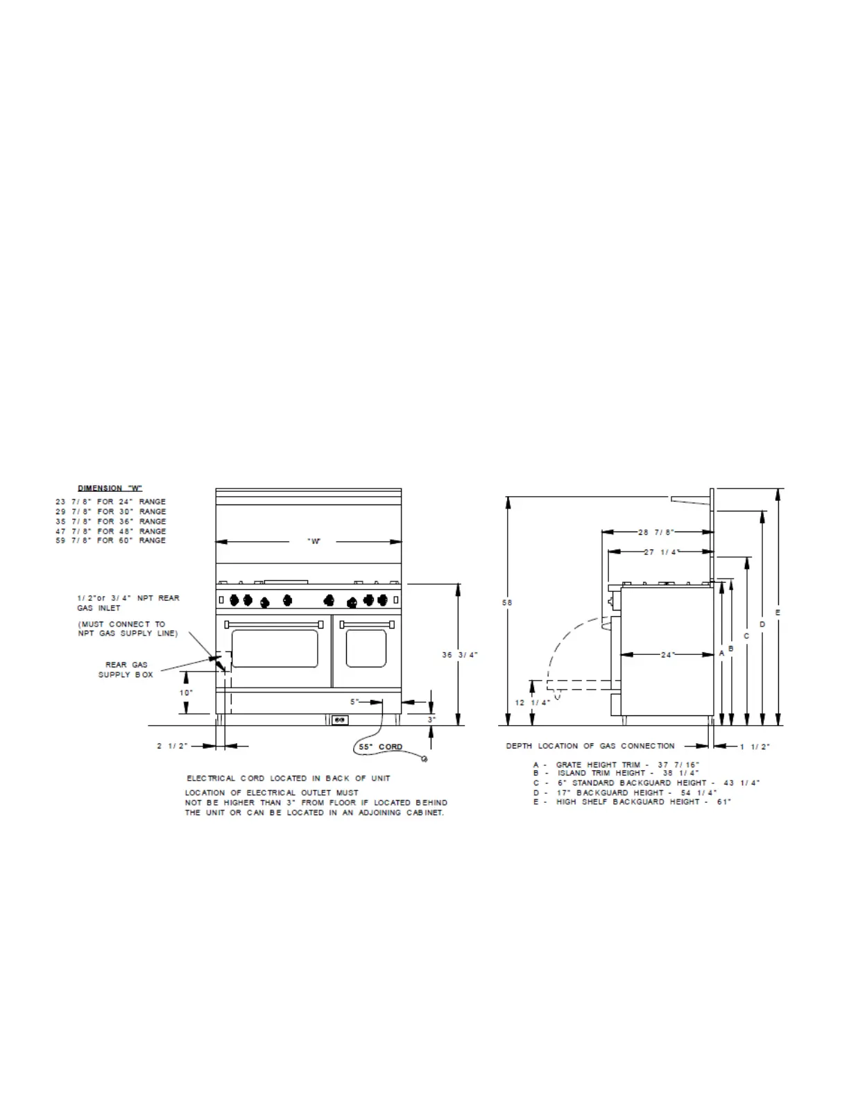
RANGE DIMENSIONS

Bekijk gratis de handleiding van BlueStar RNB486GV2CPLT, stel vragen en lees de antwoorden op veelvoorkomende problemen, of gebruik onze assistent om sneller informatie in de handleiding te vinden of uitleg te krijgen over specifieke functies.

Productinformatie

MerkBlueStar
ModelRNB486GV2CPLT
CategorieFornuis
TaalNederlands
Grootte5977 MB