BlueStar RNB364GV2CF handleiding

17 pagina's
PDF beschikbaar

Handleiding

Je bekijkt pagina 7 van 17
7
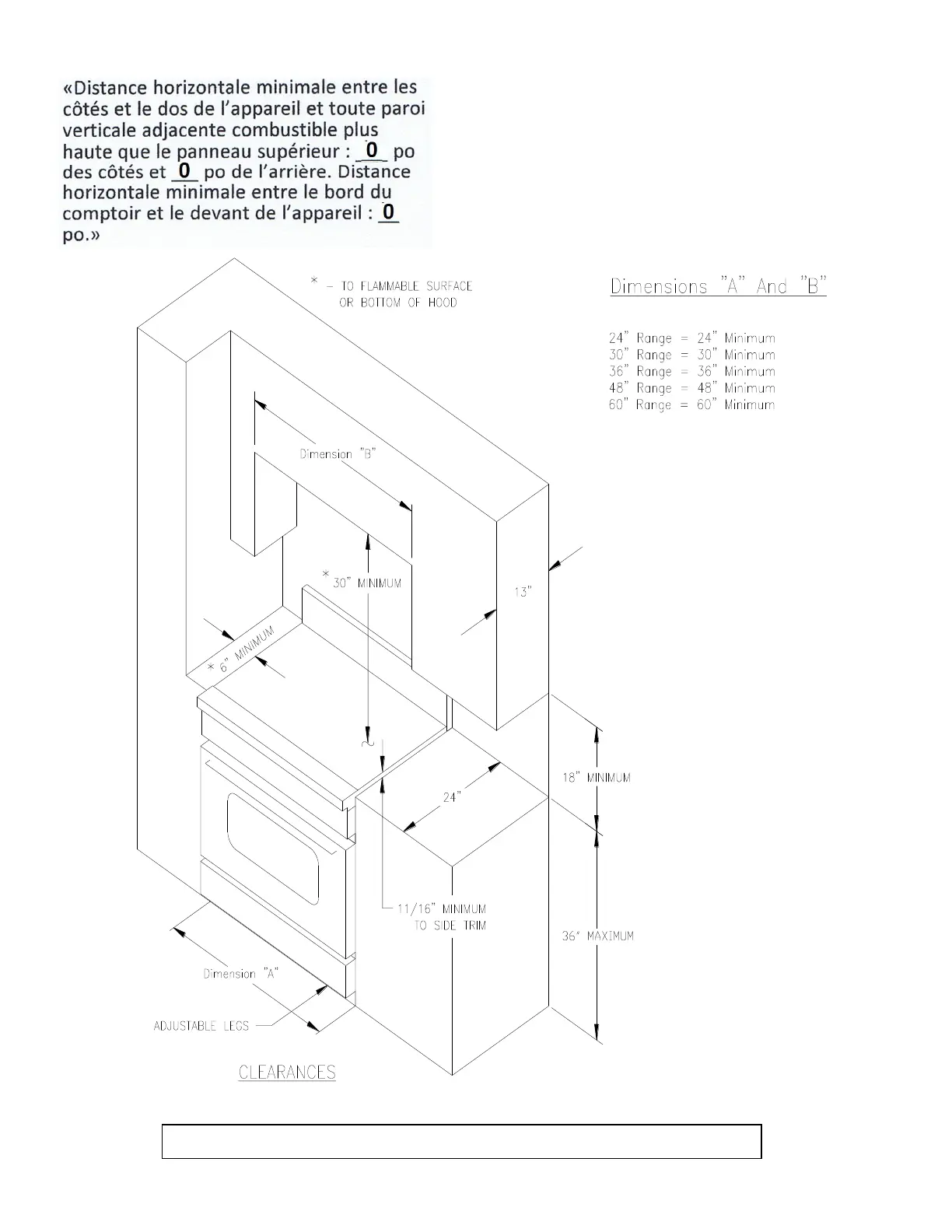
CLEARANCES
The maximum depth of cabinets installed above cooling tops be 13”

Bekijk gratis de handleiding van BlueStar RNB364GV2CF, stel vragen en lees de antwoorden op veelvoorkomende problemen, of gebruik onze assistent om sneller informatie in de handleiding te vinden of uitleg te krijgen over specifieke functies.

Productinformatie

MerkBlueStar
ModelRNB364GV2CF
CategorieFornuis
TaalNederlands
Grootte5977 MB