Blodgett INVOQ 61BE/101BE handleiding
Handleiding
Je bekijkt pagina 11 van 20

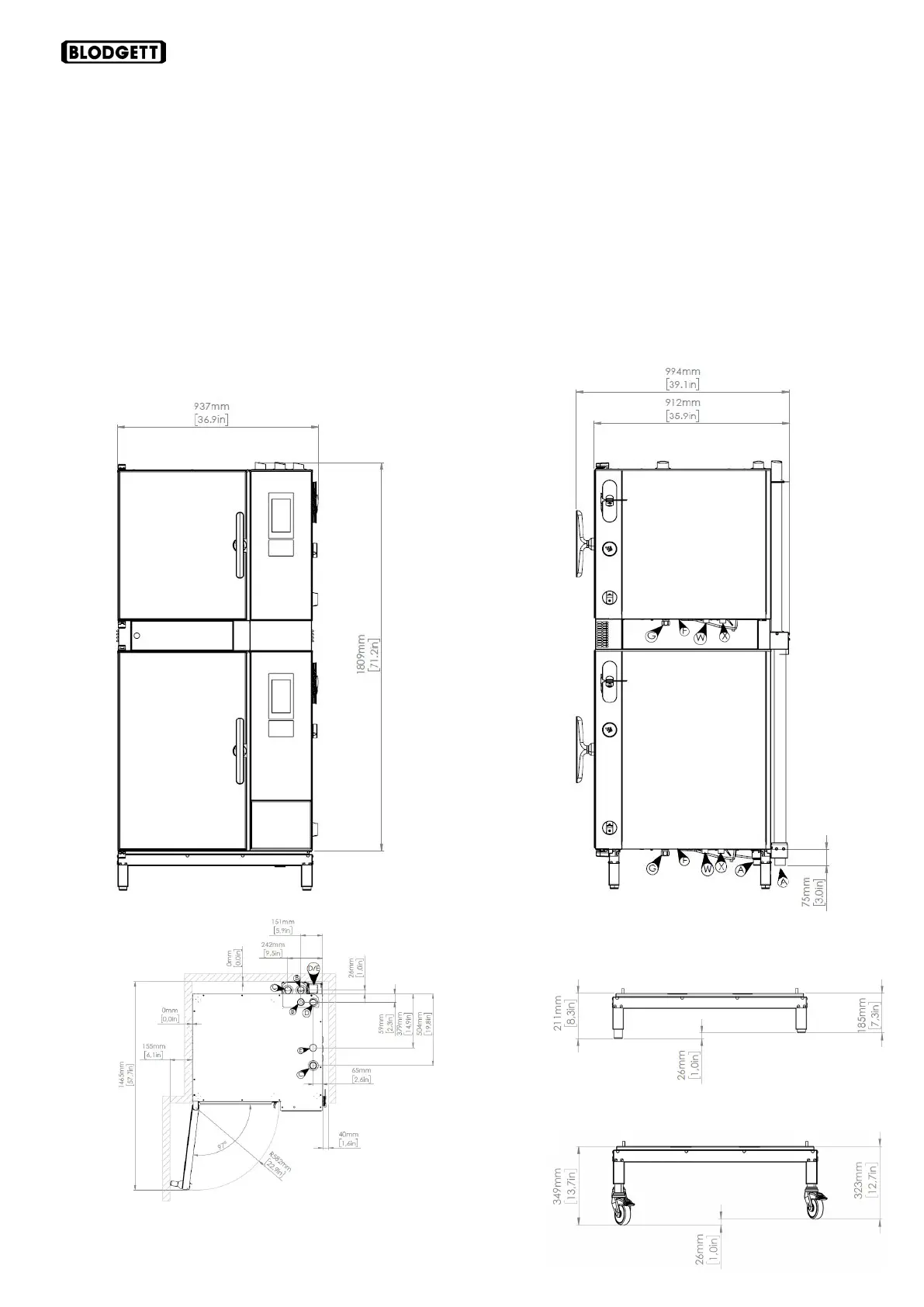
Notes to drawings:
400 mm / 15.75 inches spacing on right side of oven recommended for
service access.
Foot shown in standard and extended lengths.
A
Drain outlet
B
Air outlet (drain)
C
Air intake
D
N/A
E
Gas heat exchanger outlet
F
Ethernet connection
H
Gas connection
W
Water inlet (ltered or unltered
water)
X
Water inlet
Invoq Stackit 1/1 GN
Bekijk gratis de handleiding van Blodgett INVOQ 61BE/101BE, stel vragen en lees de antwoorden op veelvoorkomende problemen, of gebruik onze assistent om sneller informatie in de handleiding te vinden of uitleg te krijgen over specifieke functies.
Productinformatie
| Merk | Blodgett |
| Model | INVOQ 61BE/101BE |
| Categorie | Niet gecategoriseerd |
| Taal | Nederlands |
| Grootte | 6395 MB |







