Beverage-Air WTRD60AHC-2-FIP handleiding

32 pagina's
PDF beschikbaar

Handleiding

Je bekijkt pagina 29 van 32
User Manual for WTR Refrigerators Beverage-Air
Rev. 04/25 Beverage-Air 29
0123ÿ567869ÿ3ÿÿ22ÿ299ÿ2323631ÿ223623
ÿ !"#"$%&"'()$*+
,-.ÿ012ÿ32.4562ÿ0261ÿ7ÿ85.59:ÿ;5<:.<=ÿ2>582>>ÿ6-90.->>2.
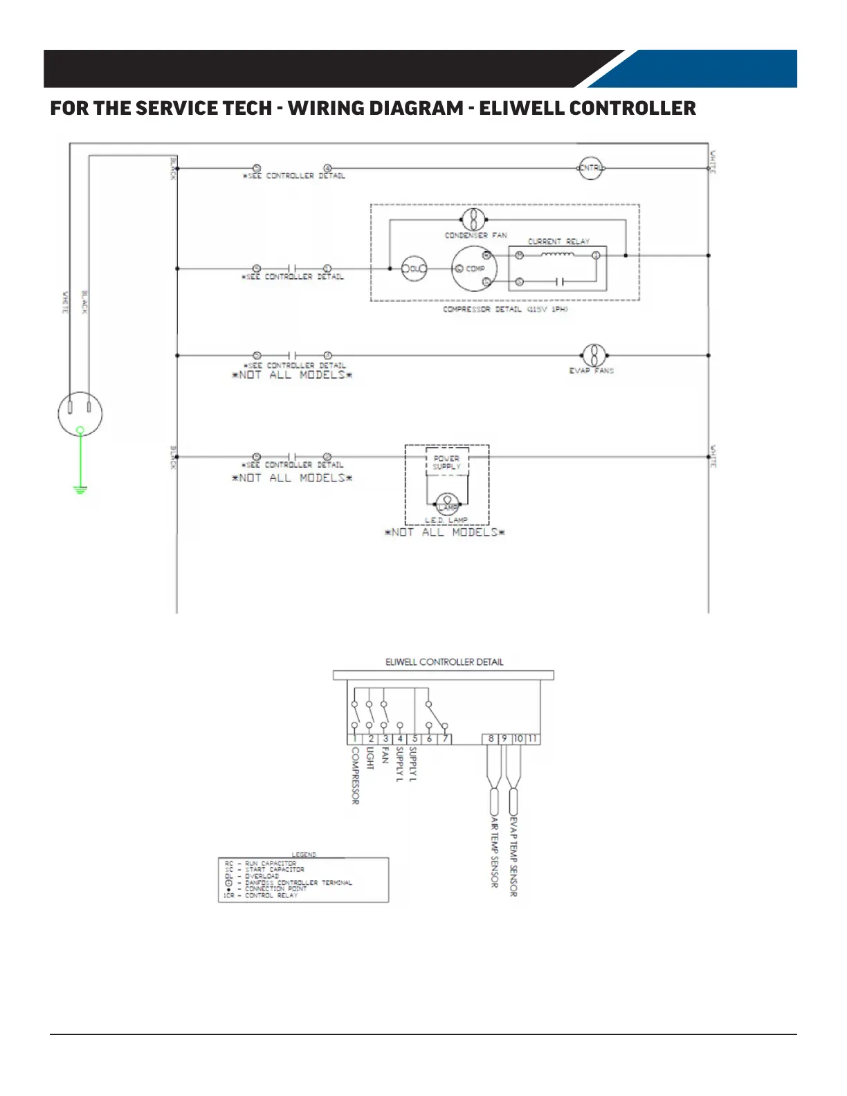
FOR THE SERVICE TECH - WIRING DIAGRAM - ELIWELL CONTROLLER

Bekijk gratis de handleiding van Beverage-Air WTRD60AHC-2-FIP, stel vragen en lees de antwoorden op veelvoorkomende problemen, of gebruik onze assistent om sneller informatie in de handleiding te vinden of uitleg te krijgen over specifieke functies.

Productinformatie

MerkBeverage-Air
ModelWTRD60AHC-2-FIP
CategorieKoelkast
TaalNederlands
Grootte4834 MB