Beverage-Air WTRCS36HC-48 handleiding

28 pagina's
PDF beschikbaar

Handleiding

Je bekijkt pagina 25 van 28
User Manual for 36" WTRCS Refrigerators Beverage-Air
Rev. 04/25 Beverage-Air 25
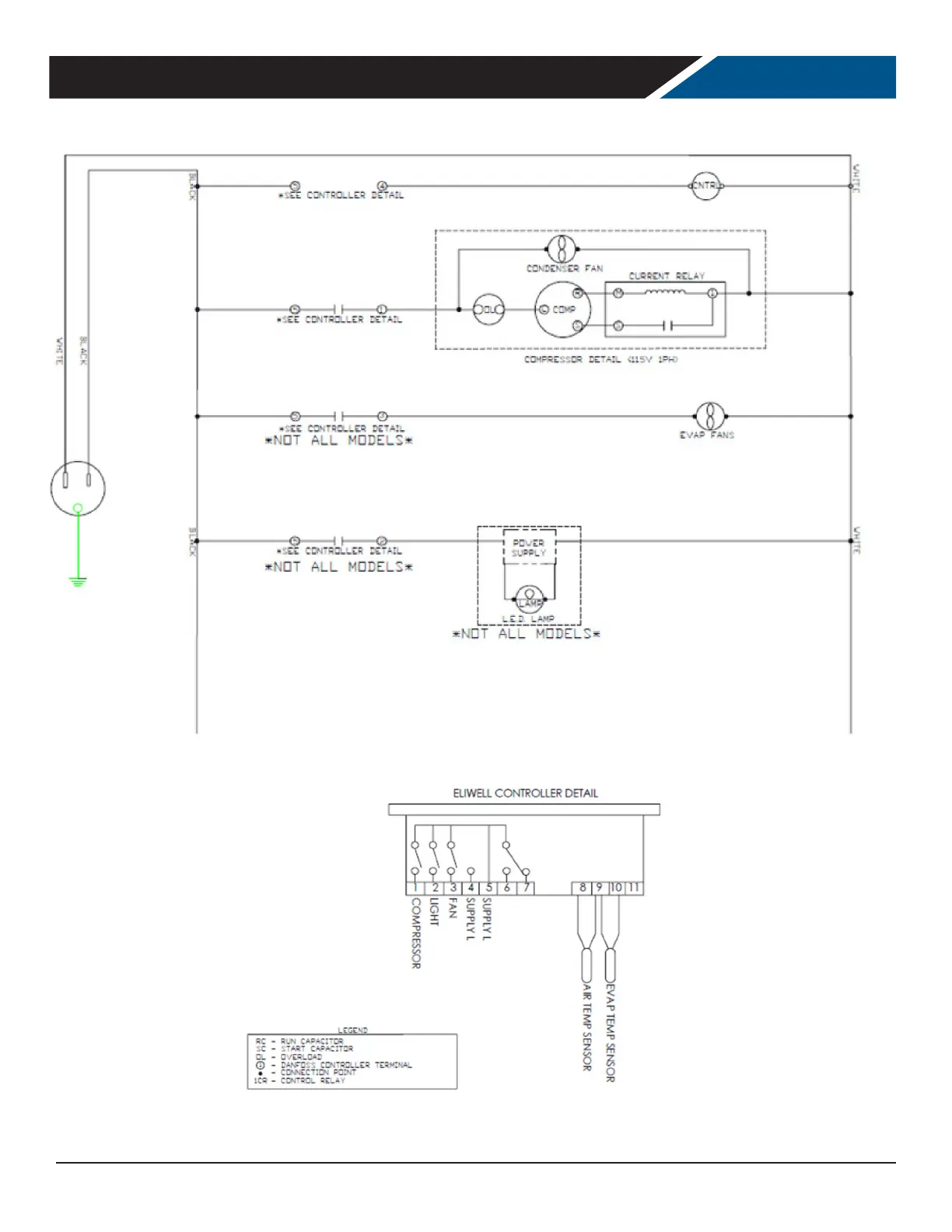
FOR THE SERVICE TECH - WIRING DIAGRAM - ELIWELL CONTROLLER
0123ÿ567869ÿ3ÿÿ22ÿ299ÿ2323631ÿ223623
ÿ !"#"$%&"'()$*+
,-.ÿ012ÿ32.4562ÿ0261ÿ7ÿ85.59:ÿ;5<:.<=ÿ2>582>>ÿ6-90.->>2.

Bekijk gratis de handleiding van Beverage-Air WTRCS36HC-48, stel vragen en lees de antwoorden op veelvoorkomende problemen, of gebruik onze assistent om sneller informatie in de handleiding te vinden of uitleg te krijgen over specifieke functies.

Productinformatie

MerkBeverage-Air
ModelWTRCS36HC-48
CategorieNiet gecategoriseerd
TaalNederlands
Grootte3707 MB