Beverage-Air WTCTCS52HC handleiding
Handleiding
Je bekijkt pagina 25 van 28

User Manual for WTRCS 48" - 112" Refrigerators Beverage-Air
Rev. 04/25 Beverage-Air 25
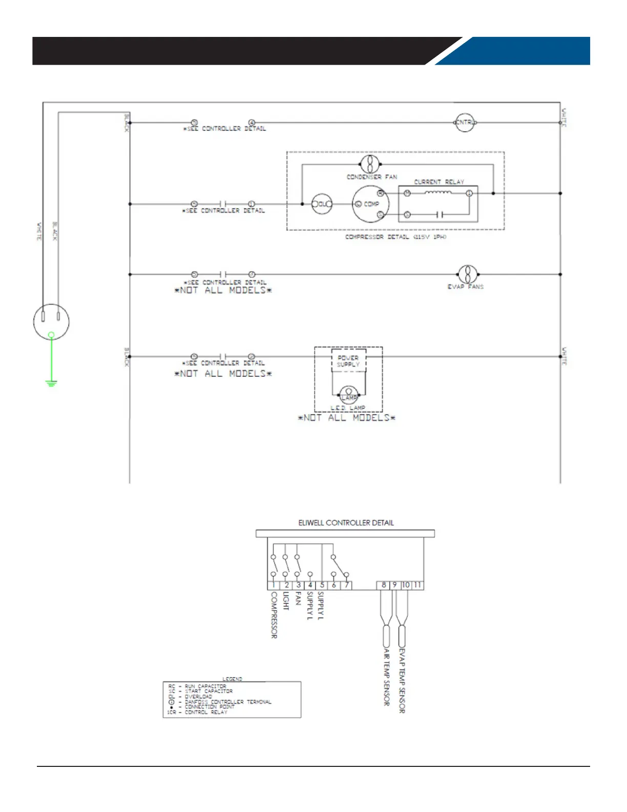
FOR THE SERVICE TECH - WIRING DIAGRAM - ELIWELL CONTROLLER
0123ÿ567869ÿ3ÿÿ22ÿ299ÿ2323631ÿ223623
ÿ !"#"$%&"'()$*+
,-.ÿ012ÿ32.4562ÿ0261ÿ7ÿ85.59:ÿ;5<:.<=ÿ2>582>>ÿ6-90.->>2.
Bekijk gratis de handleiding van Beverage-Air WTCTCS52HC, stel vragen en lees de antwoorden op veelvoorkomende problemen, of gebruik onze assistent om sneller informatie in de handleiding te vinden of uitleg te krijgen over specifieke functies.
Productinformatie
Merk | Beverage-Air |
Model | WTCTCS52HC |
Categorie | Niet gecategoriseerd |
Taal | Nederlands |
Grootte | 4037 MB |