Beverage-Air ST49HC-W-02 handleiding
Handleiding
Je bekijkt pagina 24 van 27

User Manual for ST School Milk Cooler Beverage-Air
Rev. 04/25Beverage-Air24
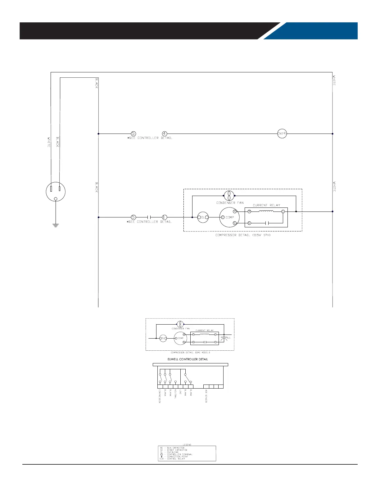
FOR THE SERVICE TECH - WIRING DIAGRAM - ELIWELL CONTROLLER
01
23456
785ÿ35
673
34576
683
255
25
52ÿÿ53ÿ2772845
2ÿÿ4754ÿ2772845
6ÿÿ567
ÿÿÿÿ2345665ÿ458376
ÿÿÿÿ2332483ÿ834
ÿÿÿÿ23456ÿ567
63
2
6
5
2
2335ÿ73
2
25534ÿ567
255ÿ4786ÿÿ6
25534ÿ567
5
6
2
2335ÿ73
2
255ÿ4786ÿÿ
84
672
672
84
!ÿ2345665ÿ4786
!ÿ2345665ÿ4786
672
84
673
673
673
ÿ#$%&#$$ÿ'()*+($$#+ÿ,#*-%$
.......................ÿÿ012ÿ34ÿ506ÿ.......................
1
'7-)8#,ÿ*(ÿ#$%&#$$
9:;:<=<9
1>>
01
<=<9#?==@A
-
%)%*%-$ÿ+#$#-B#ÿC(+ÿD+(,E'*%()
F<:G:<=F;
01
->H
<=F;#?F=@9
506
506IJI31ÿ50K352
2LM0
NO
KPQ
0K1Rÿ13R
,
'
1
-
-
1
'
,
F
<
9
A
G
@
S
T
T
S
@
G
A
9
<
F
*7#ÿ%)C(+>-*%()ÿ'()*-%)#,ÿ%)ÿ*7%B
,+-&%)8ÿ%Bÿ*7#ÿB($#ÿD+(D#+*Uÿ(C
1#V#+-8#?-%+ÿ'(+D(+-*%()Wÿÿ-)Uÿ
+#D+(,E'*%()ÿ%)ÿD-+*ÿ(+ÿ-Bÿ-ÿÿ
&7($#ÿ&%*7(E*ÿ*7#ÿ&+%**#)ÿ
D#+>%BB%()ÿ(Cÿ1#V#+-8#?-%+ÿ
'(+D(+-*%()ÿ%BÿD+(7%1%*#,W
X53X5I0ML5OÿL12ÿK314I201MILY
,%>#)B%()Bÿ-+#ÿ%)ÿ%)'7#B
*($#+-)'#BZ
-)8E$-+Zÿÿ
ÿÿ<
ÿ
()#ÿD$-'#ÿ,#'%>-$ÿÿ
ÿW=@=
*&(ÿD$-'#ÿ,#'%>-$ÿÿ
ÿW=9=
*7+##ÿD$-'#ÿ,#'%>-$ÿ
ÿW=F=
,+-&)
'7#'H#,
#)8ÿ-DD+W
>C8ÿ-DD+W
[W-W
'(>>#)*BZ
,-*#
)->#
\]^]_`a]b`c_
*%*$#Z
B%d#
N
,&8Wÿÿ)(W
+#V
&#%87*Zÿ
B'-$#ZÿFZ<
E)$#BBÿ(*7#+&%B#ÿBD#'%C%#,Z
1
->H
F<:=G:F;
F<:=G:F;
#$#'*+%'-$ÿ,%-8+->ÿ?ÿ
'($,ÿ&-$$
B7##*ÿFÿ(Cÿ<
efghijkl
*7%+,ÿ-)8$#ÿD+(0#'*%()
1+((HV%$$#mÿD-
&%)B*()?B-$#>mÿ)'
nopoqrso?rtqWuvw
#)8%)##+%)8ÿ+#[E%+>#)*B
BDF==
>(,#$
01
23456
785ÿ35
673
34576
683
255
25
52ÿÿ53ÿ2772845
2ÿÿ4754ÿ2772845
6ÿÿ567
ÿÿÿÿ2345665ÿ458376
ÿÿÿÿ2332483ÿ834
ÿÿÿÿ23456ÿ567
63
2
6
5
2
2335ÿ73
2
25534ÿ567
255ÿ4786ÿÿ6
25534ÿ567
5
6
2
2335ÿ73
2
255ÿ4786ÿÿ
84
672
672
84
!ÿ2345665ÿ4786
!ÿ2345665ÿ4786
672
84
673
673
673
ÿ#$%&#$$ÿ'()*+($$#+ÿ,#*-%$
.......................ÿÿ012ÿ34ÿ506ÿ.......................
1
'7-)8#,ÿ*(ÿ#$%&#$$
9:;:<=<9
1>>
01
<=<9#?==@A
-
%)%*%-$ÿ+#$#-B#ÿC(+ÿD+(,E'*%()
F<:G:<=F;
01
->H
<=F;#?F=@9
506
506IJI31ÿ50K352
2LM0
NO
KPQ
0K1Rÿ13R
,
'
1
-
-
1
'
,
F
<
9
A
G
@
S
T
T
S
@
G
A
9
<
F
*7#ÿ%)C(+>-*%()ÿ'()*-%)#,ÿ%)ÿ*7%B
,+-&%)8ÿ%Bÿ*7#ÿB($#ÿD+(D#+*Uÿ(C
1#V#+-8#?-%+ÿ'(+D(+-*%()Wÿÿ-)Uÿ
+#D+(,E'*%()ÿ%)ÿD-+*ÿ(+ÿ-Bÿ-ÿÿ
&7($#ÿ&%*7(E*ÿ*7#ÿ&+%**#)ÿ
D#+>%BB%()ÿ(Cÿ1#V#+-8#?-%+ÿ
'(+D(+-*%()ÿ%BÿD+(7%1%*#,W
X53X5I0ML5OÿL12ÿK314I201MILY
,%>#)B%()Bÿ-+#ÿ%)ÿ%)'7#B
*($#+-)'#BZ
-)8E$-+Zÿÿ
ÿÿ<
ÿ
()#ÿD$-'#ÿ,#'%>-$ÿÿ
ÿW=@=
*&(ÿD$-'#ÿ,#'%>-$ÿÿ
ÿW=9=
*7+##ÿD$-'#ÿ,#'%>-$ÿ
ÿW=F=
,+-&)
'7#'H#,
#)8ÿ-DD+W
>C8ÿ-DD+W
[W-W
'(>>#)*BZ
,-*#
)->#
\]^]_`a]b`c_
*%*$#Z
B%d#
N
,&8Wÿÿ)(W
+#V
&#%87*Zÿ
B'-$#ZÿFZ<
E)$#BBÿ(*7#+&%B#ÿBD#'%C%#,Z
1
->H
F<:=G:F;
F<:=G:F;
#$#'*+%'-$ÿ,%-8+->ÿ?ÿ
'($,ÿ&-$$
B7##*ÿFÿ(Cÿ<
efghijkl
*7%+,ÿ-)8$#ÿD+(0#'*%()
1+((HV%$$#mÿD-
&%)B*()?B-$#>mÿ)'
nopoqrso?rtqWuvw
#)8%)##+%)8ÿ+#[E%+>#)*B
BDF==
>(,#$
Bekijk gratis de handleiding van Beverage-Air ST49HC-W-02, stel vragen en lees de antwoorden op veelvoorkomende problemen, of gebruik onze assistent om sneller informatie in de handleiding te vinden of uitleg te krijgen over specifieke functies.
Productinformatie
Merk | Beverage-Air |
Model | ST49HC-W-02 |
Categorie | Koelkast |
Taal | Nederlands |
Grootte | 3728 MB |