Beverage-Air SPED48HC-12-2-CL handleiding
Handleiding
Je bekijkt pagina 27 van 31

User Manual for SPE Beverage-Air
Rev. 04/25 Beverage-Air 27
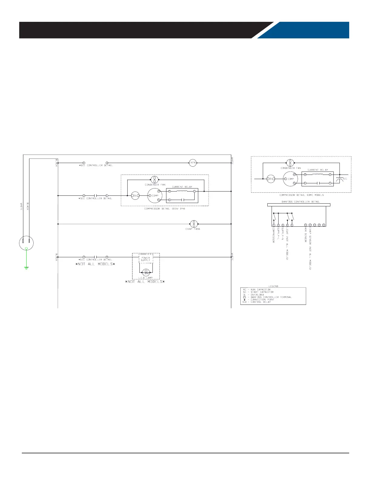
FOR THE SERVICE TECH - WIRING DIAGRAM - DANFOSS CONTROLLER
01234
5
6
789
49ÿ9
44ÿ3884ÿ43928
5
44ÿ3884ÿ43928
01234
789
789
01234
4ÿ43928ÿ66ÿ61
44ÿ9
8
43ÿ489
6
4ÿ43928ÿ4ÿ48
43ÿ489
5
44ÿ9
8
6
6
5
5
9ÿ3884ÿ43928
4
88
8
82 13ÿ3ÿ988ÿ48
6
2
84 4
ÿÿÿ9923
ÿÿ393ÿ9923
8ÿÿ489
ÿÿÿÿ9ÿ3884ÿ34298
ÿÿÿÿ432ÿ23
ÿÿÿÿ38ÿ489
6
6
92ÿ4
5
44ÿ3884ÿ43928
04
8
89
84ÿ89
3ÿ988ÿ48
3ÿ988ÿ48
49ÿ4ÿ3ÿ988ÿ48
38
!!!!!!!!!!!!!!!!!!!!!!!ÿÿ#$%ÿ&'ÿ(#)ÿ!!!!!!!!!!!!!!!!!!!!!!!
*
+,-./,0ÿ.234.56ÿ3783ÿ0.593ÿ:.-2;<ÿ=437ÿ7:
>?@A@?B>C
DE
FGH
?B>CIJ>BKL
E
FMMÿOI*IPQF*RIÿSTQRIQÿFUÿSPQVSW
X@?L@?B>K
GY GY
?B>KIJAAZB
(#)
(#)[\[&$ÿ(#]&(%
%^_#
`a
]bc
#]$dÿ$&d
M
*
E
F
F
E
*
M
>
?
L
e
A
K
Z
X
X
Z
K
A
e
L
?
>
QYIÿVWfSOGFQVSWÿ*SWQFVWIMÿVWÿQYVU
MOFgVWhÿVUÿQYIÿUSRIÿPOSPIOQiÿSf
EIjIOFhIJFVOÿ*SOPSOFQVSWkÿÿFWiÿ
OIPOSMT*QVSWÿVWÿPFOQÿSOÿFUÿFÿÿ
gYSRIÿgVQYSTQÿQYIÿgOVQQIWÿ
PIOGVUUVSWÿSfÿEIjIOFhIJFVOÿ
*SOPSOFQVSWÿVUÿPOSYVEVQIMk
l(&l([#_^(aÿ^$%ÿ]&$'[%#$_[^m
MVGIWUVSWUÿFOIÿVWÿVW*YIU
QSRIOFW*IUn
FWhTRFOnÿÿ
ÿÿ?
ÿ
SWIÿPRF*IÿMI*VGFRÿÿ
ÿkBKB
QgSÿPRF*IÿMI*VGFRÿÿ
ÿkBLB
QYOIIÿPRF*IÿMI*VGFRÿ
ÿkB>B
MOFgW
*YI*HIM
IWhÿFPPOk
GfhÿFPPOk
okFk
*SGGIWQUn
MFQI
WFGI
pqrqstuqvtws
QVQRIn
UVxI
`
MghkÿÿWSk
OIj
gIVhYQnÿ
U*FRInÿ>n?
TWRIUUÿSQYIOgVUIÿUPI*VfVIMn
*
FGH
>?@BA@>C
IRI*QOV*FRÿMVFhOFGÿJÿ
YSOVxSWQFRÿOIf
UYIIQÿ>ÿSfÿ?
4;yz{|}0
QYVOMÿFWhRIÿPOSDI*QVSW
EOSSHjVRRI~ÿPF
gVWUQSWJUFRIG~ÿW*
Jk
IWhVWIIOVWhÿOIoTVOGIWQU
UP>BB
GSMIR
Bekijk gratis de handleiding van Beverage-Air SPED48HC-12-2-CL, stel vragen en lees de antwoorden op veelvoorkomende problemen, of gebruik onze assistent om sneller informatie in de handleiding te vinden of uitleg te krijgen over specifieke functies.
Productinformatie
Merk | Beverage-Air |
Model | SPED48HC-12-2-CL |
Categorie | Koelkast |
Taal | Nederlands |
Grootte | 4589 MB |