Beverage-Air RBS-162-SA-HC handleiding
Handleiding
Je bekijkt pagina 6 van 18

User Manual for RBS Blast Chiller Beverage-Air
Rev. 12/24Beverage-Air6
IMPORTANT INFORMATION
This unit is intended to be used in a commercial application. That includes bars and restaurants.
If installed in a residence some commercial service companies may not be able to service it on site.
The manufacturer has designed and produced this machine with the nest in materials. The manufacturer assumes no
liability for units that have been altered in any way. Alterations or part substitutions will void the warranty.
Limitations
The machine is designed for use indoors in a controlled
environment. It must be kept dry, not overheated or
subjected to excessive cold. May only be connected to
a dedicated electrical circuit. Extension cords are not
permitted.
Minimum Maximum
Voltage 208 240
Room Air Temp 60º F 104º F
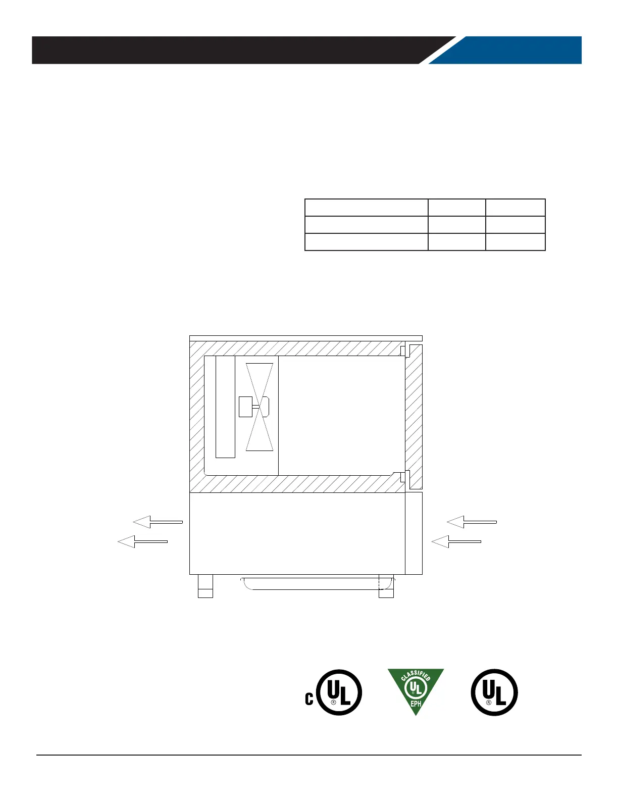
Air Flow
Agency Approvals
These marks appear on the dataplate or serial tag, located
in the inside of the left wall. The dataplate also contains
the model and serial numbers as well as electrical
requirements.
ROOM AIR INWARM AIR OUT
Air flow
Bekijk gratis de handleiding van Beverage-Air RBS-162-SA-HC, stel vragen en lees de antwoorden op veelvoorkomende problemen, of gebruik onze assistent om sneller informatie in de handleiding te vinden of uitleg te krijgen over specifieke functies.
Productinformatie
| Merk | Beverage-Air |
| Model | RBS-162-SA-HC |
| Categorie | Vriezer |
| Taal | Nederlands |
| Grootte | 2107 MB |







