Beverage-Air PRI1XTHC-1AS handleiding
Handleiding
Je bekijkt pagina 25 van 28

User Manual for PRI, PRD, and PRT Refrigerators Beverage-Air
Rev. 04/25 Beverage-Air 25
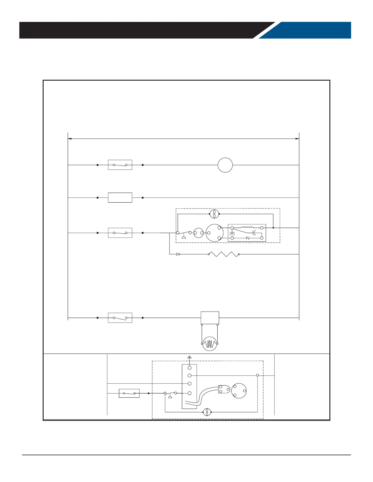
FOR THE SERVICE TECH - WIRING DIAGRAM
THE INFORMATION CONTAINED IN THIS
DRAWING IS THE SOLE PROPERTY OF
BEVERAGE-AIR CORPORATION. ANY
REPRODUCTION IN PART OR AS A
WHOLE WITHOUT THE WRITTEN
PERMISSION OF BEVERAGE-AIR
CORPORATION IS PROHIBITED.
DIMENSIONS ARE IN INCHES
TOLERANCES:
ANGULAR:
± 2
°
ONE PLACE DECIMAL
±
.060
TWO PLACE DECIMAL
±
.030
THREE PLACE DECIMAL
±
.010
BROOKVILLE, PA
WINSTON-SALEM, NC
*********************** END OF REV ***********************
REV
REVISION RECORD
DATE BY CHK
ECN. NO.
115VAC 60 HZ
EVAP
FAN
BLU
FAN RELAY
4 5
WHT
CONTROL
CIRCUIT
1 3
COMP RELAY
10 11
BRN
WHT
WHT
BLK
BLK
WHT
FASCIA HEATERS
RED
LIGHT RELAY
13 14
RED
CABINET
LIGHTS
POWER
SUPPLY
BLACK
WHITE
+
--
24VDC
HIGH CURRENT DIODE
WHT
COMPRESSOR DETAIL
START RELAY
10
COMP
CONDENSER FAN
C
R
S
2
4
OL
1
R.C.
S.C.
HIGH PRESSURE
LIMIT SWITCH
(NOT ALL MODELS)
BLK
BLK
BLK
BLK
BLK
115VAC 60 HZ
EVAP
FAN
BLK
FAN RELAY
4 5
WHT
CONTROL
CIRCUIT
1 3
BLU
ORG
WHT
DEFROST HEATERS
DEF RELAY
7 9
HEATER SAFETY
THERMAL SWITCH
BLU
BLACK
WHITE
ORG
COMP RELAY
10 11
BRN
BLK
BLK
WHT
FASCIA HEATERS
RED
LIGHT RELAY
13 14
RED
CABINET
LIGHTS
POWER
SUPPLY
+
--
24VDC
HIGH CURRENT DIODE
WHT
BLK
GLASS DOOR HEATERS
(GLASS DOOR MODELS ONLY)
WHT
COMPRESSOR DETAIL
START RELAY
10
COMP
CONDENSER FAN
C
R
S
2
4
OL
1
R.C.
S.C.
HIGH PRESSURE
LIMIT SWITCH
(NOT ALL MODELS)
BLK
DRAIN TUBE HEATER
WHT
WHT
BLACK
BLK
BLK
BLK
BLK
BLK
BLK
COMPRESSOR DETAIL
INVERTER (VFD)
PE
COMP
CONDENSER FAN
C
R
S
BRN
COMP RELAY
10 11
L
LSW
N
S
C
R
HIGH PRESSURE
LIMIT SWITCH
(NOT ALL MODELS)
D
C
B
A
A
B
C
D
1
2
3
4
5
6
7
8
8
7
6
5
4
3
2
1
PROPRIETARY AND CONFIDENTIAL
DRAWN
CHECKED
ENG APPR.
MFG APPR.
Q.A.
COMMENTS:
DATENAME
BEVERAGE-AIR
TITLE:
SIZE
B
DWG. NO.
REV
WEIGHT:
SCALE: 1:1
UNLESS OTHERWISE SPECIFIED:
SHEET 1 OF 1
THIRD ANGLE PROJECTION
beverage-air.com
ENGINEERING REQUIRMENTS
SP100
MODEL
115V ULTRASPEC REFRIGERATOR
115V ULTRASPEC FREEZER
A
INITIAL RELEASE FOR PRODUCTION
3-3-2017
AMK
JP
LADDER DIAGRAM, ULTRASPEC UPRIGHT
REFRIGERATION & FREEZER, 115V
B
IL-2693D
IL-2693D, REV B, 115REF
IL-2693D, REV B, 115FRZ
2017E-6490
B
UPDATED TO SHOW NEW HC DESIGN
6/12/2019
JB
MP
2019E-0724
VARIABLE SPEED
COMPRESSOR
WIRING DIAMGRAM
(NOT ALL MODELS)
Bekijk gratis de handleiding van Beverage-Air PRI1XTHC-1AS, stel vragen en lees de antwoorden op veelvoorkomende problemen, of gebruik onze assistent om sneller informatie in de handleiding te vinden of uitleg te krijgen over specifieke functies.
Productinformatie
| Merk | Beverage-Air |
| Model | PRI1XTHC-1AS |
| Categorie | Niet gecategoriseerd |
| Taal | Nederlands |
| Grootte | 4487 MB |







