Beverage-Air MarketMax MMF72HC-1-B handleiding
Handleiding
Je bekijkt pagina 7 van 31

User Manual for MMR Refrigerators Beverage-Air
Rev. 07/25 Beverage-Air 7
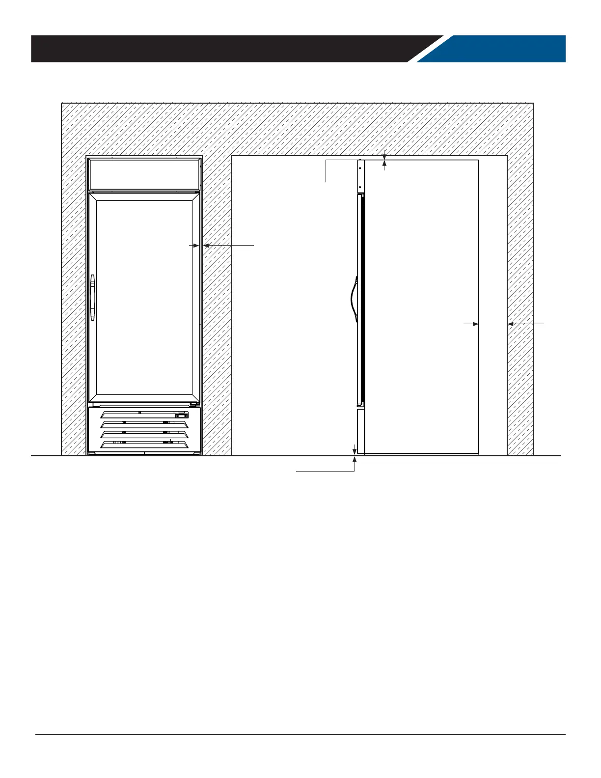
CLEARANCE AND PLACEMENT
Placement
Consider the following when selecting a location for your Refrigerator:
Clearance:
• 0.0 in. at the top
• 3.0 in. at the rear (except pass thru model)
• 0.0 in. at the left side
• 0.0 in. at the right side
• 0.0 in at the bottom
Floor Load: the oor on which the Refrigerator is located must be even and level, free from vibrations, and strong enough
to support the combined weights of the unit and maximum product load.
Ventilation: Grille area at front must be free and clear of any object or wall.
Power Outlet: Dedicated power outlet is located within the length of the unit's power cord.
User Manual for TMR Refrigerators Beverage-Air
Rev. 12/21Beverage-Air24
GENERAL PARTS
6"
TOP
MINIMUM
CLEARANCE
0"
LEFT/RIGHT SIDE
MINIMUM
CLEARANCE
0"
BOTTOM
MINIMUM
CLEARANCE
3"
REAR
MINIMUM
CLEARANCE
6"
TOP
MINIMUM
CLEARANCE
0"
LEFT/RIGHT SIDE
MINIMUM
CLEARANCE
0"
BOTTOM
MINIMUM
CLEARANCE
3"
REAR
MINIMUM
CLEARANCE
0"
TOP
MINIMUM
CLEARANCE
0"
LEFT/RIGHT
MINIMUM
CLEARANCE
3"
REAR
MINIMUM
CLEARANCE
0"
BOTTOM
MINIMUM
CLEARANCE
Bekijk gratis de handleiding van Beverage-Air MarketMax MMF72HC-1-B, stel vragen en lees de antwoorden op veelvoorkomende problemen, of gebruik onze assistent om sneller informatie in de handleiding te vinden of uitleg te krijgen over specifieke functies.
Productinformatie
| Merk | Beverage-Air |
| Model | MarketMax MMF72HC-1-B |
| Categorie | Vriezer |
| Taal | Nederlands |
| Grootte | 5818 MB |







