Beverage-Air MarketMax MMF49HC-1-W handleiding
Handleiding
Je bekijkt pagina 26 van 31

User Manual for MMR Refrigerators Beverage-Air
Rev. 07/25Beverage-Air26
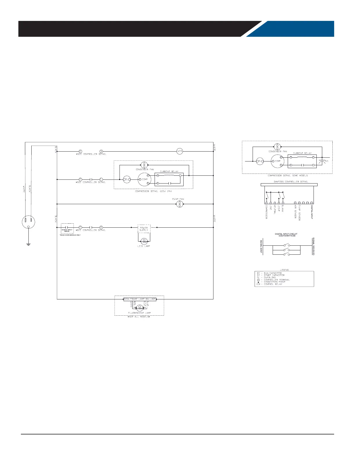
FOR THE SERVICE TECH - WIRING DIAGRAM - DANFOSS
01234
56789
47ÿ7
44ÿ83664ÿ43726
44ÿ83664ÿ43726
01234
56789
56789
01234
84ÿ43726ÿÿ1
8
844ÿ7
8
6
843ÿ467
84ÿ43726ÿ4ÿ46
843ÿ467
8
844ÿ7
8
6
8
644
8ÿÿÿ877823
8ÿÿ373ÿ877823
6ÿÿ467
ÿÿÿÿ83664ÿ34276
ÿÿÿÿ84832ÿ23
ÿÿÿÿ836ÿ467
8
44ÿ83664ÿ43726
04
6
67
64ÿ67
67
2ÿ74ÿ67ÿ576673
4
564
564
01234
64843ÿ67
3ÿ766ÿ46
7ÿ83664ÿ43726
84
624
4376
2
5679
6213
72ÿ4
47ÿ4
836
!""#ÿ%&'()*+%
%',-./ÿ#+*'+0+!
%',-./ÿ%+-(
!','(./ÿ'-12(ÿ*'#*2'(
!','(./ÿ'-12(
3%"/'!ÿ!""#ÿ4"!+/%ÿ"-/5
!','(./ÿ'-12(
%',-./
66666666666666666666666ÿÿ89:ÿ;<ÿ=8>ÿ66666666666666666666666
?
@AABAÿDEFEGHÿAE@HF@I
JKLMLKNJO
P?
@IQ
KNJOBRJNST
@
EGEUE@VÿFBVB@WBÿXYFÿZFA[\UEYG
JJLJ]LJ]
P?
IZ
=8>
=8>^_^;9ÿ=8`;=:
:ab8
cd
`ef
8`9gÿ9;g
A
\
?
@
@
?
\
A
J
K
T
h
M
S
]
i
i
]
S
M
h
T
K
J
UjBÿEGXYFI@UEYGÿ\YGU@EGBAÿEGÿUjEW
AF@DEGHÿEWÿUjBÿWYVBÿZFYZBFUkÿYX
?BlBF@HBR@EFÿ\YFZYF@UEYGmÿÿ@Gkÿ
FBZFYA[\UEYGÿEGÿZ@FUÿYFÿ@Wÿ@ÿÿ
DjYVBÿDEUjY[UÿUjBÿDFEUUBGÿ
ZBFIEWWEYGÿYXÿ?BlBF@HBR@EFÿ
\YFZYF@UEYGÿEWÿZFYjE?EUBAm
n=;n=^8ba=dÿa9:ÿ`;9<^:89b^ao
AEIBGWEYGWÿ@FBÿEGÿEG\jBW
UYVBF@G\BWp
@GH[V@Fpÿÿ
ÿÿK
ÿ
YGBÿZV@\BÿAB\EI@Vÿÿ
ÿmNSN
UDYÿZV@\BÿAB\EI@Vÿÿ
ÿmNTN
UjFBBÿZV@\BÿAB\EI@Vÿ
ÿmNJN
AF@DG
\jB\QBA
BGHÿ@ZZFm
IXHÿ@ZZFm
qm@m
\YIIBGUWp
A@UB
G@IB
rstsuvwsxvyu
UEUVBp
WEzB
c
ADHmÿÿGYm
FBl
DBEHjUpÿ
W\@VBpÿJpK
[GVBWWÿYUjBFDEWBÿWZB\EXEBAp
?
@IQ
JKLNMLJO
BVB\UFE\@VÿAE@HF@IÿRÿ
?UIÿIGUÿFBX
WjBBUÿJÿYXÿK
{|}~
UjEFAÿ@GHVBÿZFYPB\UEYG
?FYYQlEVVBÿZ@
DEGWUYGRW@VBIÿG\
Rm
BGHEGBBFEGHÿFBq[EFIBGUW
WZJNN
IYABV
Bekijk gratis de handleiding van Beverage-Air MarketMax MMF49HC-1-W, stel vragen en lees de antwoorden op veelvoorkomende problemen, of gebruik onze assistent om sneller informatie in de handleiding te vinden of uitleg te krijgen over specifieke functies.
Productinformatie
| Merk | Beverage-Air |
| Model | MarketMax MMF49HC-1-W |
| Categorie | Vriezer |
| Taal | Nederlands |
| Grootte | 5818 MB |







