Beverage-Air Horizon HBRF72HC-1-B-G handleiding
Handleiding
Je bekijkt pagina 29 van 35

User Manual for HBRF Refrigerator/Freezer Beverage-Air
Rev. 04/25 Beverage-Air 29
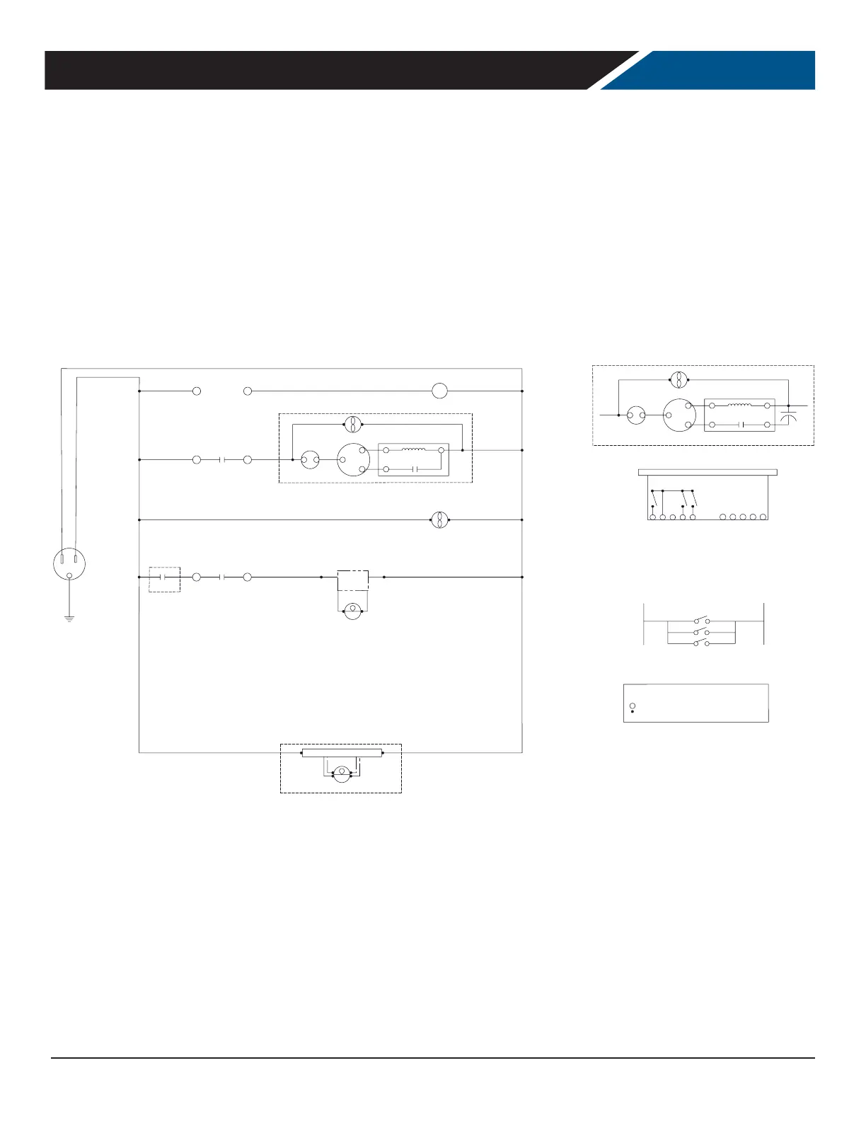
FOR THE SERVICE TECH - WIRING DIAGRAM FOR REFRIGERATOR SECTION
WITH DANFOSS CONTROLLER
WHITE
BLACK
EVAP FAN
*SEE CONTROLLER DETAIL
*SEE CONTROLLER DETAIL
WHITE
BLACK
BLACK
WHITE
COMPRESSOR DETAIL (115V 1PH)
COMP
CONDENSER FAN
C
OL
R
S
S
CURRENT RELAY
1
M
COMPRESSOR DETAIL SOME MODELS
CURRENT RELAY
2
COMP
CONDENSER FAN
C
R
S
S
M
OL
1
S.C.
LEGEND
RC - RUN CAPACITOR
SC - START CAPACITOR
OL - OVERLOAD
- CONTROLLER TERMINAL
- CONNECTION POINT
- CONTROL RELAY
1
1CR
*SEE CONTROLLER DETAIL
POWER
SUPPLY
LAMP
L.E.D. LAMP
LAMP
SIGN FRAME LAMP BALLAST
RED
BLUE
BLUE
WHITE
FLUORESCENT LAMP
*NOT ALL MODELS*
2
1
2
2
3
4
1
2
3 4
S2
DANFOSS CONTROLLER DETAIL
COMPRESSOR
LINE
NEUTRAL
5
S1
S3 S4
DI
BLANK
LIGHT
AIR SENSOR
EVAP SENSOR
CNTRL
DOOR SWITHCES
SIGNAL RECIEVED
SIGNAL SENT
DIGITAL INPUT CIRCUIT
DIGITAL INPUT
*SOLID DOOR MODELS ONLY
DIGITAL INPUT
SIGNAL
Bekijk gratis de handleiding van Beverage-Air Horizon HBRF72HC-1-B-G, stel vragen en lees de antwoorden op veelvoorkomende problemen, of gebruik onze assistent om sneller informatie in de handleiding te vinden of uitleg te krijgen over specifieke functies.
Productinformatie
| Merk | Beverage-Air |
| Model | Horizon HBRF72HC-1-B-G |
| Categorie | Niet gecategoriseerd |
| Taal | Nederlands |
| Grootte | 5986 MB |







