Beverage-Air Horizon HBRF49HC-1-A-G handleiding
Handleiding
Je bekijkt pagina 7 van 35

User Manual for HBRF Refrigerator/Freezer Beverage-Air
Rev. 04/25 Beverage-Air 7
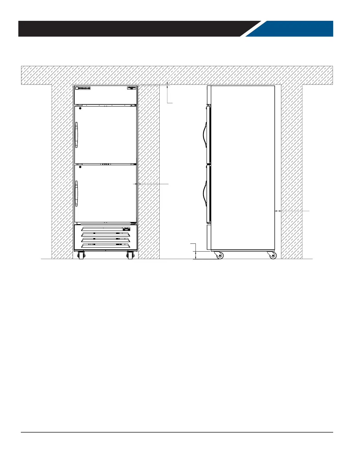
CLEARANCE AND PLACEMENT
Placement
Consider the following when selecting a location for your Refrigerator:
Clearance:
• 0.0 in. at the top
• 3.0 in. at the rear
• 0.0 in. at the left side
• 0.0 in. at the right side
• 3.0 in at the bottom
Floor Load: the oor on which the Refrigerator is located must be even and level, free from vibrations, and strong enough
to support the combined weights of the unit and maximum product load.
Ventilation: Grille area at front must be free and clear of any object or wall.
Power Outlet: The installation of this appliance requires a dedicated power outlet located within the length of the unit's
power cord and be accessible for the purpose to disconnect power.
3"
BOTTOM
MINIMUM
CLEARANCE
0"
TOP
MINIMUM
CLEARANCE
0"
LEFT/RIGHT SIDE
MINIMUM
CLEARANCE
3"
REAR
MINIMUM
CLEARANCE
Bekijk gratis de handleiding van Beverage-Air Horizon HBRF49HC-1-A-G, stel vragen en lees de antwoorden op veelvoorkomende problemen, of gebruik onze assistent om sneller informatie in de handleiding te vinden of uitleg te krijgen over specifieke functies.
Productinformatie
Merk | Beverage-Air |
Model | Horizon HBRF49HC-1-A-G |
Categorie | Koelkast |
Taal | Nederlands |
Grootte | 5986 MB |