Beverage-Air Horizon HBF49HC-1-HS handleiding
Handleiding
Je bekijkt pagina 7 van 25

User Manual for HBF Freezers Beverage-Air
Rev. 04/25 Beverage-Air 7
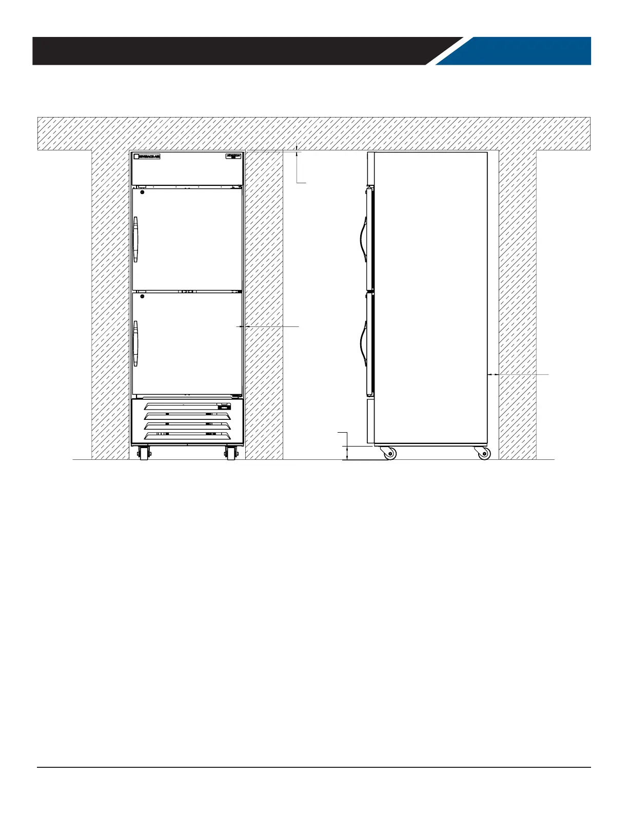
CLEARANCE AND PLACEMENT
Placement
Consider the following when selecting a location for your freezer:
Clearance:
• 0.0 in. at the top
• 3.0 in. at the rear
• 0.0 in. at the left side
• 0.0 in. at the right side
• 3.0 in. below
Floor Load: the oor on which the freezer is located must be even and level, free from vibrations, and strong enough to
support the combined weights of the unit and maximum product load.
Ventilation: Grill area at front must be free and clear of any object or wall.
Power Outlet: Dedicated power outlet is located within 8 feet of length of cord.
3"
BOTTOM
MINIMUM
CLEARANCE
0"
TOP
MINIMUM
CLEARANCE
0"
LEFT/RIGHT SIDE
MINIMUM
CLEARANCE
3"
REAR
MINIMUM
CLEARANCE
Bekijk gratis de handleiding van Beverage-Air Horizon HBF49HC-1-HS, stel vragen en lees de antwoorden op veelvoorkomende problemen, of gebruik onze assistent om sneller informatie in de handleiding te vinden of uitleg te krijgen over specifieke functies.
Productinformatie
| Merk | Beverage-Air |
| Model | Horizon HBF49HC-1-HS |
| Categorie | Vriezer |
| Taal | Nederlands |
| Grootte | 4136 MB |







