Beverage-Air CT12-12HC-1HSD handleiding
Handleiding
Je bekijkt pagina 26 van 29

User Manual for CT Freezer / Refrigerator Beverage-Air
Rev. 04/25Beverage-Air26
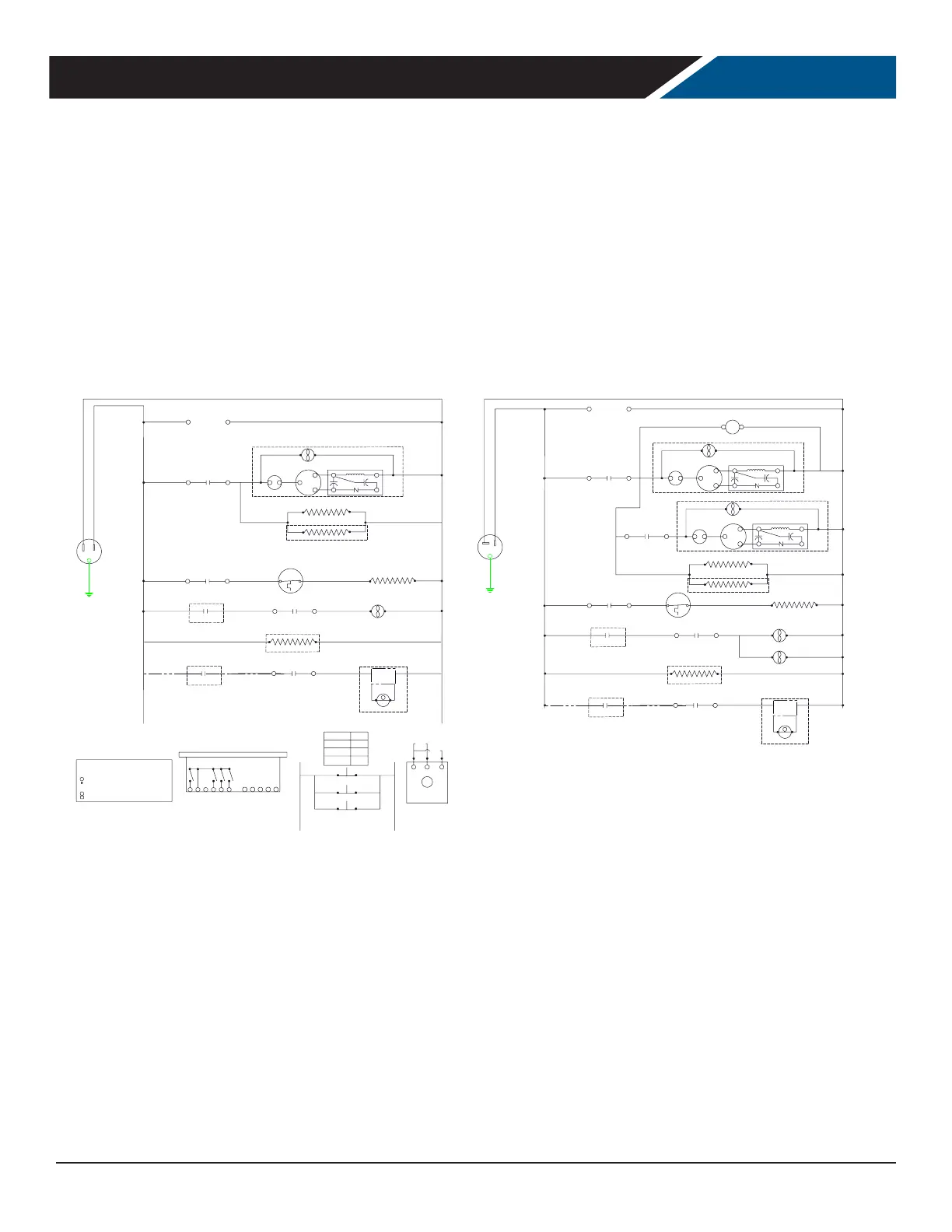
FOR THE SERVICE TECH - WIRING DIAGRAM FOR STANDARD SYSTEMS
115V FREEZER ONE SYSTEM
115V FREEZER TWO SYSTEM
DIGITAL INPUT
SIGNAL
*SEE CONTROLLER DETAIL
6
2
DEFROST HEATER
DRAIN TUBE HEATER
*SEE CONTROLLER DETAIL
5
2
DOOR HEATER
FACE HEATER
115VAC 60 HZ
*SOLID DOOR MODELS ONLY
4
*SEE CONTROLLER DETAIL
2
S.C.
R.C.
1
OL
4
2
S
R
C
CONDENSER FAN
COMP
10
START RELAY
DIGITAL INPUT
SIGNAL
L.E.D. LAMP
COMPRESSOR DETAIL
BLACK
WHITE
*SEE CONTROLLER DETAIL
3
2
*SEE CONTROLLER DETAIL
LAMP
POWER
SUPPLY
EVAP FAN
WHITE
BLACK
BLACK
1
2
WHITE
*GLASS DOOR MODELS ONLY
EVAP FAN
DIGITAL INPUT
SIGNAL
*SEE CONTROLLER DETAIL
6
2
DEFROST HEATER
DRAIN TUBE HEATER
*SEE CONTROLLER DETAIL
5
2
DOOR HEATER
FACE HEATER
*SOLID DOOR MODELS ONLY
4
*SEE CONTROLLER DETAIL
2
DIGITAL INPUT
SIGNAL
L.E.D. LAMP
LAMP
POWER
SUPPLY
EVAP FAN
S.C.
R.C.
1
OL
4
2
S
R
C
CONDENSER FAN
COMP
10
START RELAY
115VAC 60 HZ
S.C.
R.C.
1
OL
4
2
S
R
C
CONDENSER FAN
COMP
10
START RELAY
BLACK
WHITE
*SEE CONTROLLER DETAIL
3
2
*SEE CONTROLLER DETAIL
WHITE
BLACK
BLACK
1
2
WHITE
DIGITAL INPUT CIRCUIT
5VDC FROM CONTROLLER
EVAP SENSOR
AIR SENSOR
LIGHT
6
DIGITAL INPUT
DI
S4S3S1
5
NEUTRAL
LINE
COMPRESSOR
DANFOSS CONTROLLER DETAIL
S2
43
2
1
1
1
1TD
1CR
1
RC - RUN CAPACITOR
SC - START CAPACITOR
OL - OVERLOAD
- DANFOSS CONTROLLER TERMINAL
- CONNECTION POINT
- CONTROL RELAY
- TIME DELAY RELAY
- CONTROL RELAY TERMINAL
- TIME DELAY RELAY TERMINAL
LEGEND
CONFIGURATION CHART
3
2
1
DOOR
SWITCH
MODEL
SINGLE SOLID
DOOR
DOUBLE SOLID
DOOR
TRIPLE SOLID
DOOR
FAN
DEFROST
*GLASS DOOR MODELS ONLY
HEATER SAFETY
THERMAL SWITCH
HEATER SAFETY
THERMAL SWITCH
2
3
*SEE TIMER DETAIL (NOT ALL MODELS)
2
1
SEE TIMER DETAIL
(NOT ALL MODELS)
TMR
3 2 1
INPUT
LOAD
ON-DELAY TIMER RELAY
30 SECOND
N
L
OUTPUT
*********************** END OF REV ***********************
C
ADDED ON-DELAY TIMER RELAY
12/4/2020
JB
AMK
2020E-0686
B
ADDED WIRING DIAGRAM
12/5/2019
JB
AMK
2019E-1063
REV
REVISION RECORD
DATE
BY
CHK
ECN. NO.
D
C
B
A
A
B
C
D
1
2
3
4
5
6
7
8
8
7
6
5
4
3
2
1
THE INFORMATION CONTAINED IN THIS
DRAWING IS THE SOLE PROPERTY OF
BEVERAGE-AIR CORPORATION. ANY
REPRODUCTION IN PART OR AS A
WHOLE WITHOUT THE WRITTEN
PERMISSION OF BEVERAGE-AIR
CORPORATION IS PROHIBITED.
PROPRIETARY AND CONFIDENTIAL
DIMENSIONS ARE IN INCHES
TOLERANCES:
ANGULAR:
2
ONE PLACE DECIMAL
.060
TWO PLACE DECIMAL
.030
THREE PLACE DECIMAL
.010
DRAWN
CHECKED
ENG APPR.
MFG APPR.
Q.A.
COMMENTS:
DATE
NAME
BEVERAGE-AIR
TITLE:
SIZE
B
DWG. NO.
REV
WEIGHT:
SCALE: 1:2.5
UNLESS OTHERWISE SPECIFIED:
C
ELECTRICAL DIAGRAM -
TOP MNT FRZ
SHEET 1 OF 2
IL-2757D
THIRD ANGLE PROJECTION
BROOKVILLE, PA
WINSTON-SALEM, NC
beverage-air.com
ENGINEERING REQUIRMENTS
SP100
MODEL
115V ONE SYSTEM 115V TWO SYSTEM
Bekijk gratis de handleiding van Beverage-Air CT12-12HC-1HSD, stel vragen en lees de antwoorden op veelvoorkomende problemen, of gebruik onze assistent om sneller informatie in de handleiding te vinden of uitleg te krijgen over specifieke functies.
Productinformatie
Merk | Beverage-Air |
Model | CT12-12HC-1HSD |
Categorie | Niet gecategoriseerd |
Taal | Nederlands |
Grootte | 5946 MB |