Beverage-Air BZ13HC-1-B handleiding
Handleiding
Je bekijkt pagina 25 van 30

User Manual for BZ Refrigerators Beverage-Air
Rev. 07/25 Beverage-Air 25
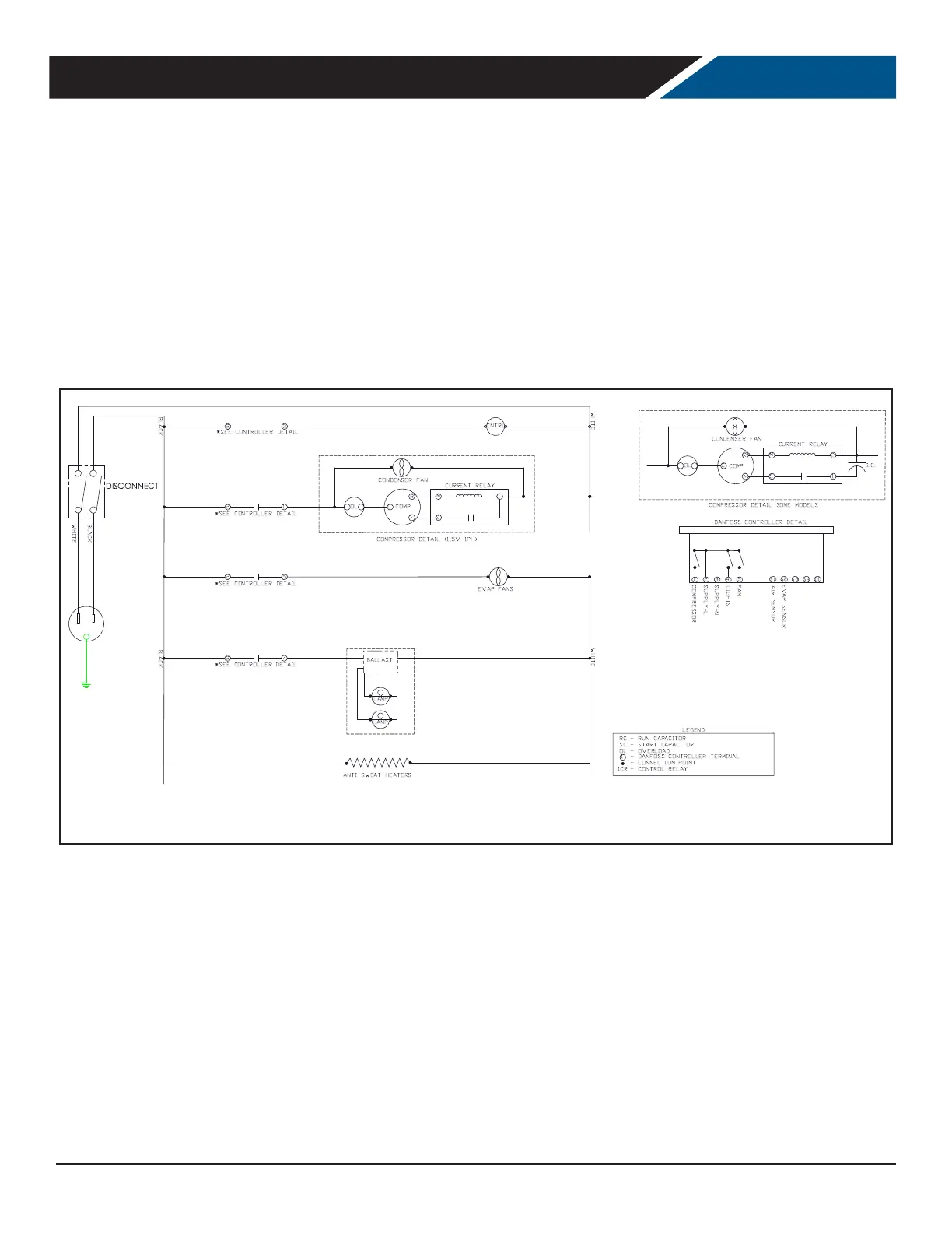
FOR THE SERVICE TECH - WIRING DIAGRAM DANFOSS
01234
5
6
789
49ÿ9
44ÿ3884ÿ43928
5
44ÿ3884ÿ43928
01234
789
789
01234
4ÿ43928ÿ66ÿ61
44ÿ9
8
43ÿ489
6
4ÿ43928ÿ4ÿ48
43ÿ489
5
44ÿ9
8
6
6
5
5
9ÿ3884ÿ43928
4
88
8
82 13
6
2
84 4
ÿÿÿ9923
ÿÿ393ÿ9923
8ÿÿ489
ÿÿÿÿ9ÿ3884ÿ34298
ÿÿÿÿ432ÿ23
ÿÿÿÿ38ÿ489
6
6
92ÿ4
5
44ÿ3884ÿ43928
798893
89
49ÿ4
38
!"#$%&&'$(
44ÿ3884ÿ43928
5
89
9
9320493ÿ14934
)))))))))))))))))))))))ÿÿ+,-ÿ./ÿ0+1ÿ)))))))))))))))))))))))
2
3435367ÿ9:7:6;:ÿ<=9ÿ>9=?@A53=4
BBCBDCEFEF
GH
2IJ
EFEF'KFLDM
0+1
0+1NON.,ÿ0+P.0-
-QR+
ST
PUV
+P,Wÿ,.W
!
$
H
2
2
H
$
!
B
E
D
X
Y
L
Z
[
[
Z
L
Y
X
D
E
B
(\'ÿ"&^%_I2("%&ÿ$%&(2"&'!ÿ"&ÿ(\"#
!_2`"&aÿ"#ÿ(\'ÿ#%b'ÿc_%c'_(dÿ%^
H'e'_2a'K2"_ÿ$%_c%_2("%&fÿÿ2&dÿ
_'c_%!g$("%&ÿ"&ÿc2_(ÿ%_ÿ2#ÿ2ÿÿ
`\%b'ÿ`"(\%g(ÿ(\'ÿ`_"(('&ÿ
c'_I"##"%&ÿ%^ÿH'e'_2a'K2"_ÿ
$%_c%_2("%&ÿ"#ÿc_%\"H"('!f
h0.h0N+RQ0TÿQ,-ÿP.,/N-+,RNQi
!"I'&#"%&#ÿ2_'ÿ"&ÿ"&$\'#
(%b'_2&$'#j
2&agb2_jÿÿ
ÿÿE
ÿ
%&'ÿcb2$'ÿ!'$"I2bÿÿ
ÿfFLF
(`%ÿcb2$'ÿ!'$"I2bÿÿ
ÿfFDF
(\_''ÿcb2$'ÿ!'$"I2bÿ
ÿfFBF
!_2`&
$\'$J'!
'&aÿ2cc_f
I^aÿ2cc_f
kf2f
$%II'&(#j
!2('
&2I'
lmnmopqmrpso
("(b'j
#"t'
S
!`afÿÿ&%f
_'e
`'"a\(jÿ
#$2b'jÿBjE
g&b'##ÿ%(\'_`"#'ÿ#c'$"^"'!j
2
2IJ
BECFYCBM
`"_"&aÿ!"2a_2IÿKÿHtBD\$
#\''(ÿBÿ%^ÿE
37uvwxy?
(\"_!ÿ2&ab'ÿc_%G'$("%&
H_%%Je"bb'zÿc2
`"&#(%&K#2b'Izÿ&$
{|}|~|K~f
'&a"&''_"&aÿ_'kg"_I'&(#
#cBFF
I%!'b
Bekijk gratis de handleiding van Beverage-Air BZ13HC-1-B, stel vragen en lees de antwoorden op veelvoorkomende problemen, of gebruik onze assistent om sneller informatie in de handleiding te vinden of uitleg te krijgen over specifieke functies.
Productinformatie
Merk | Beverage-Air |
Model | BZ13HC-1-B |
Categorie | Niet gecategoriseerd |
Taal | Nederlands |
Grootte | 6240 MB |