Beverage-Air BF054AP handleiding
Handleiding
Je bekijkt pagina 38 van 64

User Manual for BF & RBS Beverage-Air
Rev. 06/24Beverage-Air38
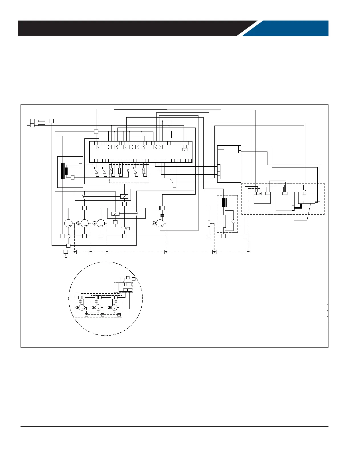
FOR THE SERVICE TECH - WIRING DIAGRAM - BF054AP
BF084AP
M
7
I3
208-240V 1~ 60Hz
PE
12
7
1
M
1
M1
M
1
M2
Q1
8
4
1
24V
L1
FU1
27 3028 29 31 32
B1 B2
7 7
M2
5
6
M
1
R1
M3
C
10 9
7
W2
S
T2
11
SOLO BT
ONLY LT
3433 3837 4039
FU1
L2
14
15
35 36 41 42 4443 504948
7 86532 41 9 1210 11 13 14 1615 1918 2017 21 22 2625
3
7
T
FU2
1A
BUZZER
G2
GND
-
+
+V
208-230V
room probe def probe
multipoint probe
red white blue black
1A
connection to G2 door microswitch
compressor on-off phase
evap.fan
uvc hot gas def lighting probe heat door heat on-off neutro
supply 230V
general alarm
15A
15A
built-in PTC C860 Protection
P
red
black
blue
HP
FU
A1
A2
Q2
4
12
55.32 230V
12
14
13
La ditta si riserva a termini di legge la proprietà di questo disegno con divieto
di riprodurlo o comunque di renderlo noto a terzi.
By terms of law this drawing cannot be reproduced whitout our written authorization
Dimensioni non quotate: / Not dimensioned
Angoli Smussi
Angle Chamfer
90° 45°
GND
+
-
G4
-V +V
JST
Printer
-V +VL N
A2
RJ
Converter
230 V
12 V
INTERFACCIA
SERIALE
RED
BLACK
BLACK
RED
BLACK
YELLOW
OPTIONAL
7
B3a
MULTIPOINT PROBE (white)
B3b
B3c
B3d
G1
OPTIONAL
5755
RED
BLACK
Treatment
Dimension
Weight
Rif. drawing
Rev.
Code
Description
REVISION TABLE
Designer
Controlled
Date
Thickness
Scale
Rif
Material
Description
Date
Signature
Rev
TOLLERANZE GENERALI:
DIMENSIONI : 0� 100mm =±0.2
DIMENSIONI : 100<800 mm = ±0.4
DIMENSIONI : 800<1000 mm = ±0.5
DIMENSIONI : 1000< mm = ±1
ANGOLI : ± 30'
G
R
O
U P
FOOD SERVICE EQUIPMENT
CAMAROTTO
20/05/2019
FR711A440
SCH.EL. 054 ETL 208/1/60 PLUS '16
01
02
MODIFICATO CABLAGGIO RELE' Q2 E G1 MORS.26
CORRETTO COLLEGAMENTO TAGLIO DI FASE
25/02/2020
29/07/20
FOLEGOTTO
IANELLI
02
_
+
NF
FanA
ONLY IF G5 IS PRESENT
FanB
G5
10
M
1
C
M
M3
1
M3
C
1011 1111
M3
C
1
M
10
12 / 13
16
5755
G1
7
3
SERIAL
INTERFACE
Bekijk gratis de handleiding van Beverage-Air BF054AP, stel vragen en lees de antwoorden op veelvoorkomende problemen, of gebruik onze assistent om sneller informatie in de handleiding te vinden of uitleg te krijgen over specifieke functies.
Productinformatie
Merk | Beverage-Air |
Model | BF054AP |
Categorie | Koelkast |
Taal | Nederlands |
Grootte | 9611 MB |