Beverage-Air BBN58HC-B handleiding
Handleiding
Je bekijkt pagina 32 van 36

User Manual for BB Refrigerators Beverage-Air
Rev. 04/25Beverage-Air32
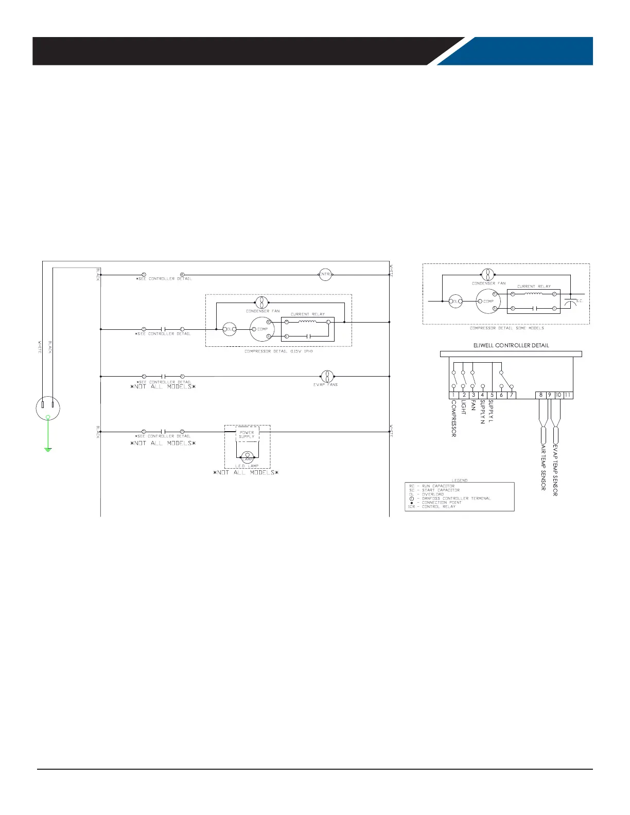
FOR THE SERVICE TECH - WIRING DIAGRAM - ELIWELL CONTROLLER
(EXCLUDING THE BB24HC MODELS)
01234
5
6
789
49ÿ9
44ÿ3884ÿ43928
5
44ÿ3884ÿ43928
01234
789
789
01234
4ÿ43928ÿ665ÿ61
44ÿ9
8
43ÿ489
6
4ÿ43928ÿ4ÿ48
43ÿ489
44ÿ9
8
6
844
ÿÿÿ9923
ÿÿ393ÿ9923
8ÿÿ489
ÿÿÿÿ9ÿ3884ÿ34298
ÿÿÿÿ432ÿ23
ÿÿÿÿ38ÿ489
6
6
5
44ÿ3884ÿ43928
04
8
89
84ÿ89
3ÿ988ÿ48
3ÿ988ÿ48
38
!""#$ÿ&
!""#$ÿ#
'()"ÿ*'+"ÿ '& ,-
).-ÿ*'+"ÿ '& ,-
#./0*
1)&
2,+"-' ,-
ÿ'#.3'##ÿ2,&*-,##'-ÿ4'*).#
5666789:;<=>6
3ÿ988ÿ48
44ÿ3884ÿ43928
?
5
@@@@@@@@@@@@@@@@@@@@@@@ÿÿBCDÿEFÿGBHÿ@@@@@@@@@@@@@@@@@@@@@@@
)
.&.*.)#ÿ-'#') 'ÿ1,-ÿ"-,4!2*.,&
8I>=I>7>6
JK
)$
>7>6'L7;59
GBH
GBHMNMECÿGBOEGD
DPQB
RS
OTU
BOCVÿCEV
4
2
K
)
)
K
2
4
6
>
=
<
;
:
9
5
5
9
:
;
<
=
>
6
*0'ÿ.&1,-+)*.,&ÿ2,&*).&'4ÿ.&ÿ*0.
4-)3.&/ÿ. ÿ*0'ÿ ,#'ÿ"-,"'-*$ÿ,1
K'('-)/'L).-ÿ2,-",-)*.,&Wÿÿ)&$ÿ
-'"-,4!2*.,&ÿ.&ÿ")-*ÿ,-ÿ) ÿ)ÿÿ
30,#'ÿ3.*0,!*ÿ*0'ÿ3-.**'&ÿ
"'-+. .,&ÿ,1ÿK'('-)/'L).-ÿ
2,-",-)*.,&ÿ. ÿ"-,0.K.*'4W
XGEXGMBQPGSÿPCDÿOECFMDBCQMPY
4.+'& .,& ÿ)-'ÿ.&ÿ.&20'
*,#'-)&2' Z
)&/!#)-Zÿÿ
ÿÿ>
ÿ
,&'ÿ"#)2'ÿ4'2.+)#ÿÿ
ÿW7:7
*3,ÿ"#)2'ÿ4'2.+)#ÿÿ
ÿW7=7
*0-''ÿ"#)2'ÿ4'2.+)#ÿ
ÿW767
4-)3&
20'2['4
'&/ÿ)""-W
+1/ÿ)""-W
\W)W
2,++'&* Z
4)*'
&)+'
]^_^`ab^cad`
*.*#'Z
.e'
R
43/Wÿÿ&,W
-'(
3'./0*Zÿ
2)#'Zÿ6Z>
!&#' ÿ,*0'-3. 'ÿ "'2.1.'4Z
)
JK
78I>=I>6
3.-.&/ÿ4.)/-)+ÿLÿ
0,-.e,&*)#ÿ-'1fÿ'#.3'##
0''*ÿ6ÿ,1ÿ>
ghijklmn
*0.-4ÿ)&/#'ÿ"-,J'2*.,&
K-,,[(.##'oÿ")
3.& *,&L )#'+oÿ&2
pqrqstuqLtvsWwxy
'&/.&''-.&/ÿ-'\!.-+'&*
"677
+,4'#
Bekijk gratis de handleiding van Beverage-Air BBN58HC-B, stel vragen en lees de antwoorden op veelvoorkomende problemen, of gebruik onze assistent om sneller informatie in de handleiding te vinden of uitleg te krijgen over specifieke functies.
Productinformatie
Merk | Beverage-Air |
Model | BBN58HC-B |
Categorie | Koelkast |
Taal | Nederlands |
Grootte | 5065 MB |