Bertazzoni FMOD6117PTM3 handleiding
Handleiding
Je bekijkt pagina 17 van 108

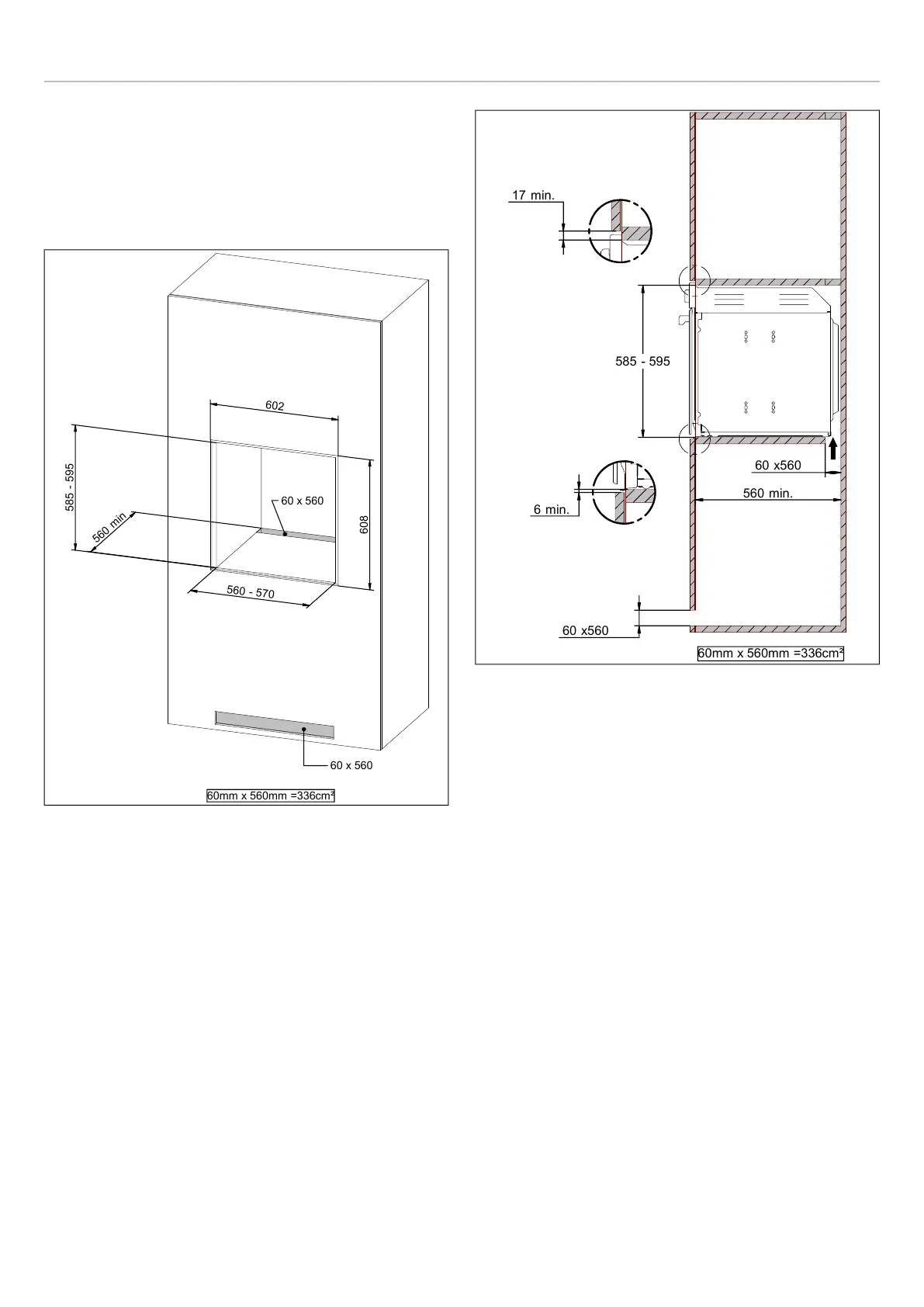
INSTALLAZIONE
INSTALLAZIONE DEL FORNO A COLONNA
La distanza tra il forno e i mobili da cucina deve essere tale
da garantire una suciente ventilazione ed un suciente
scarico dell’aria. Assicurarsi che nella parte superiore o
posteriore il mobile abbia un’apertura come indicato in
figura.
Fig. 7
Fig. 8
5
6
0
-
5
7
0
585- 595
6
0
2
608
5
6
0
m
i
n
60mm x 560mm =336cm²
60 x 560
60 x 560
585- 595
6min.
17min.
560min.
60mm x 560mm =336cm²
60x560
60x560
17
Bekijk gratis de handleiding van Bertazzoni FMOD6117PTM3, stel vragen en lees de antwoorden op veelvoorkomende problemen, of gebruik onze assistent om sneller informatie in de handleiding te vinden of uitleg te krijgen over specifieke functies.
Productinformatie
Merk | Bertazzoni |
Model | FMOD6117PTM3 |
Categorie | Oven |
Taal | Nederlands |
Grootte | 9715 MB |