BEKO FSGT52110DXON handleiding
Handleiding
Je bekijkt pagina 22 van 104

EN / 22
4 Installation
General warnings
• Refer to the nearest Authorised Service
Agent for installation of the product.
Make sure that the electric and gas in-
stallations are in place before calling the
Authorised Service Agent to have the
product ready for operation. If not, call a
qualified electrician and fitter to have the
required arrangements made. The man-
ufacturer shall not be held responsible
for damages arising from procedures
carried out by unauthorized persons
which may also void the warranty.
• It is customer's responsibility to prepare
the location the product shall be placed
on and also have power and/or gas util-
ity prepared.
• The rules specified in local standards
about electrical and/or gas installations
(legal rules on installation) shall be fol-
lowed during product installation./Para-
graph
• Check for any damage on the appliance
before the installation. Do not have it in-
stalled if the appliance is damaged.
Damaged products cause risks for your
safety.
4.1 Right place for installation
• Place the product on a hard surface be-
cause of the air ducts under the product.
It must not be placed onto a base or a
pedestal. The feet of the product should
not dip on soft surfaces, e.g. carpet, etc.
• The kitchen floor must be able to carry
the weight of the appliance plus the ad-
ditional weight of cookware and bake-
ware and food.
• This product is a class 1 device accord-
ing to EN 30-1-1standard. It can be
placed adjacent to the kitchen walls, kit-
chen furniture or any other product in
any dimension from behind and one
edge. The kitchen furniture or equipment
on the other side may only be of the
same size or smaller.
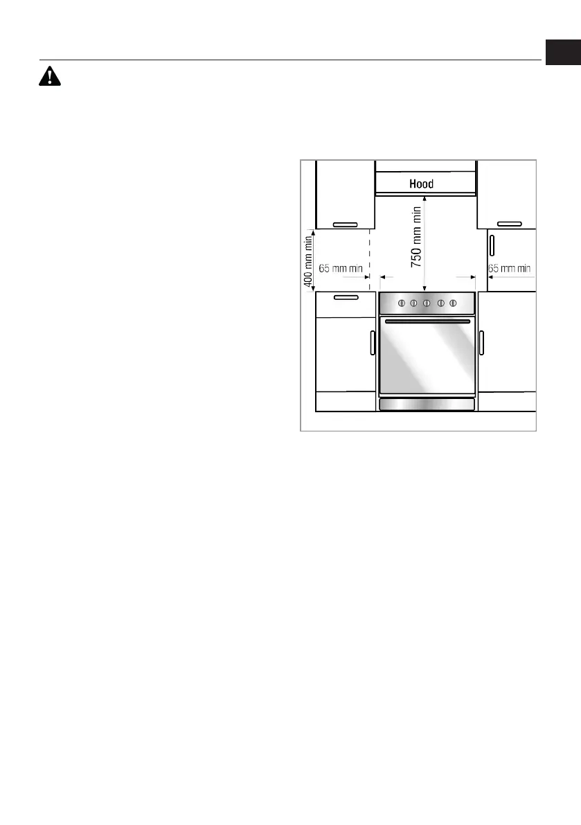
• It can be used with cabinets on either
side but in order to have a minimum dis-
tance of 400mm above hotplate level al-
low a side clearance of 65mm between
the appliance and any wall, partition or
tall cupboard.
• It can also be used in a free standing po-
sition. Allow a minimum distance of 750
mm above the hob surface.
• If a cooker hood is to be installed above
the cooker, refer to the instructions of
the manufacturer of the cooker hood re-
garding installation height (min. 650
mm).
• Any kitchen furniture next to the appli-
ance must be heat-resistant (100 °C
min.).
Safety chain
The appliance must be secured against
overbalancing by using the supplied one
safety chain on your oven.
Warning - Risk of tipping!
EN
RO
Bekijk gratis de handleiding van BEKO FSGT52110DXON, stel vragen en lees de antwoorden op veelvoorkomende problemen, of gebruik onze assistent om sneller informatie in de handleiding te vinden of uitleg te krijgen over specifieke functies.
Productinformatie
| Merk | BEKO |
| Model | FSGT52110DXON |
| Categorie | Niet gecategoriseerd |
| Taal | Nederlands |
| Grootte | 11697 MB |







