Handleiding
Je bekijkt pagina 24 van 108

DE / 24
4 Installation
Allgemeine Warnungen
• Wenden Sie sich für die Installation des
Produkts an den nächstgelegenen autori-
sierten Servicepartner. Stellen Sie sicher,
dass die Elektro- und Gasinstallationen
vorhanden sind, bevor Sie den autorisier-
ten Kundendienstmitarbeiter anrufen, um
das Produkt betriebsbereit zu machen.
Wenn nicht, wenden Sie sich an einen
qualifizierten Elektriker und Installateur,
um die erforderlichen Vorkehrungen zu
treffen. Der Hersteller haftet nicht für
Schäden, die durch von Unbefugten
durchgeführte Eingriffe entstehen und
zum Erlöschen der Garantie führen kön-
nen.
• Es liegt in der Verantwortung des Kun-
den, den Standort, an dem das Produkt
aufgestellt werden soll, vorzubereiten
und auch die Strom- und/oder Gasversor-
gung vorzubereiten.
• Bei der Produktinstallation müssen die in
den örtlichen Normen für Elektro- und/
oder Gasinstallationen festgelegten Re-
geln (gesetzliche Installationsregeln) be-
folgt werden./Absatz
• Überprüfen Sie das Gerät vor der Installa-
tion auf etwaige Schäden. Lassen Sie es
nicht installieren, wenn das Gerät beschä-
digt ist. Beschädigte Produkte stellen ein
Risiko für Ihre Sicherheit dar.
4.1 Der richtige Ort für die Installation
• Stellen Sie das Produkt aufgrund der
Luftkanäle unter dem Produkt auf eine
harte Oberfläche. Es darf nicht auf einem
Sockel oder Sockel aufgestellt werden.
Die Füße des Produkts sollten nicht in
weiche Oberflächen eintauchen, z. Tep-
pich usw.
• Der Küchenboden muss das Gewicht des
Geräts sowie das zusätzliche Gewicht
von Kochgeschirr, Backgeschirr und Le-
bensmitteln tragen können.
• Dieses Produkt ist ein Gerät der Klasse 1
gemäß der Norm EN 30-1-1. Es kann in
beliebiger Abmessung von der Rückseite
und einer Kante aus neben Küchenwän-
den, Küchenmöbeln oder anderen Pro-
dukten platziert werden. Die Küchenmö-
bel oder Geräte auf der anderen Seite
dürfen nur gleich groß oder kleiner sein.
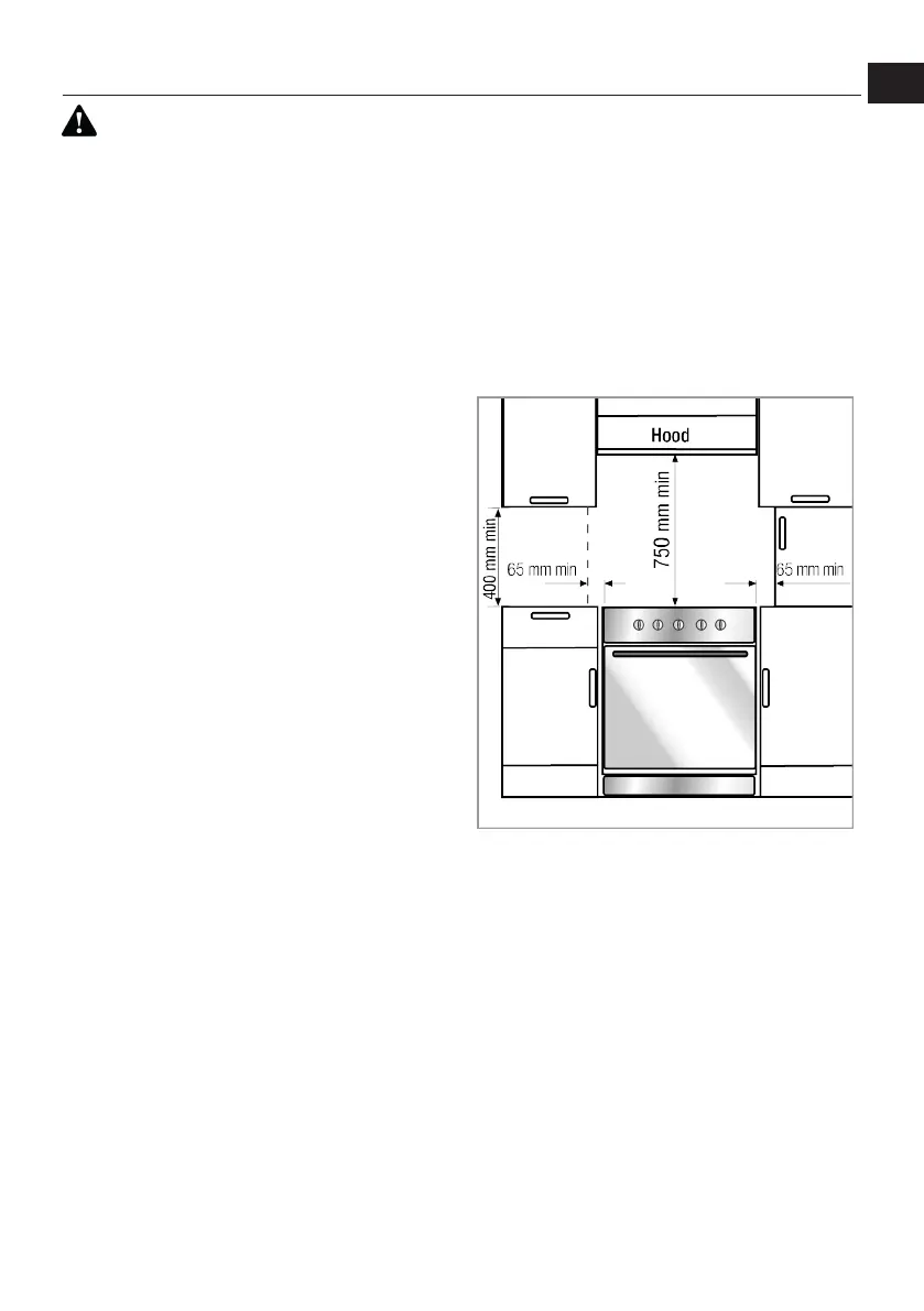
• Es kann mit Schränken auf beiden Seiten
verwendet werden. Um jedoch einen Min-
destabstand von 400 mm über der Koch-
plattenebene zu gewährleisten, muss ein
seitlicher Abstand von 65 mm zwischen
dem Gerät und jeder Wand, Trennwand
oder hohem Schrank eingehalten werden.
• Es kann auch freistehend verwendet wer-
den. Halten Sie einen Mindestabstand
von 750 mm über der Kochfeldoberfläche
ein.
• Wenn eine Dunstabzugshaube über dem
Herd installiert werden soll, beachten Sie
die Anweisungen des Herstellers der
Dunstabzugshaube bezüglich der Instal-
lationshöhe (mind. 650 mm).
• Küchenmöbel neben dem Gerät müssen
hitzebeständig sein (mindestens 100 °C).
Sicherheitskette
Das Gerät muss mit der mitgelieferten Si-
cherheitskette an Ihrem Backofen gegen
Übergewicht gesichert werden.
Achtung – Kippgefahr!
DE
NL
Bekijk gratis de handleiding van BEKO FBG62010DW, stel vragen en lees de antwoorden op veelvoorkomende problemen, of gebruik onze assistent om sneller informatie in de handleiding te vinden of uitleg te krijgen over specifieke functies.
Productinformatie
| Merk | BEKO |
| Model | FBG62010DW |
| Categorie | Fornuis |
| Taal | Nederlands |
| Grootte | 11439 MB |







