Handleiding
Je bekijkt pagina 71 van 100

BG / 71
4 Монтаж
Общи предупреждения
• За монтажа на продукта се обърнете
към най-близкия оторизиран сервиз.
Свързването на газта и
електричеството трябва да са
направени преди да повикате
представител на оторизирания сервиз,
който да подготви уреда за работа.
Ако не, то повикайте квалифициран
електротехник да направи каквото е
необходимо. В противен случай
гаранцията става невалидна.
Производителят не носи отговорност
за щети, причинени от поправка
извършена от неоторизирани лица, в
който случай гаранцията може да
стане нева.
• Подготовката на мястото и
свързването на електричеството и
газта за продукта са отговорност на
клиента.
• Уредът трябва да бъде монтиран в
съответствие с всички местни наредби
относно газовите и/или електрически
уреди.
• Преди монтажа, разгледайте продукта
за видими дефекти. Ако има такива, то
не го монтирайте. Повредените
продукти водят до риск за
безопасността.
4.1 Точното място за монтаж
• Поставете продукта върху твърда
повърхност поради въздуховодите под
продукта. Не трябва да се поставя
върху основа или пиедестал. Краката
на продукта не трябва да се потапят
върху меки повърхности, напр. килим и
др.
• Кухненският под трябва да е способен
да издържа теглото на уреда, плюс
допълнителното тегло на съдовете за
готвене и храната.
• Този продукт е устройство от клас 1 в
съответствие със стандарт EN 30-1-1,
т.е. може да се постави със задната и
една от страничните части към
стените в кухнята, кухненските
шкафове или оборудване с всякакъв
размер. Кухненските мебели или
оборудване от другата страна трябва
да е със същия или с по-малък
размер.
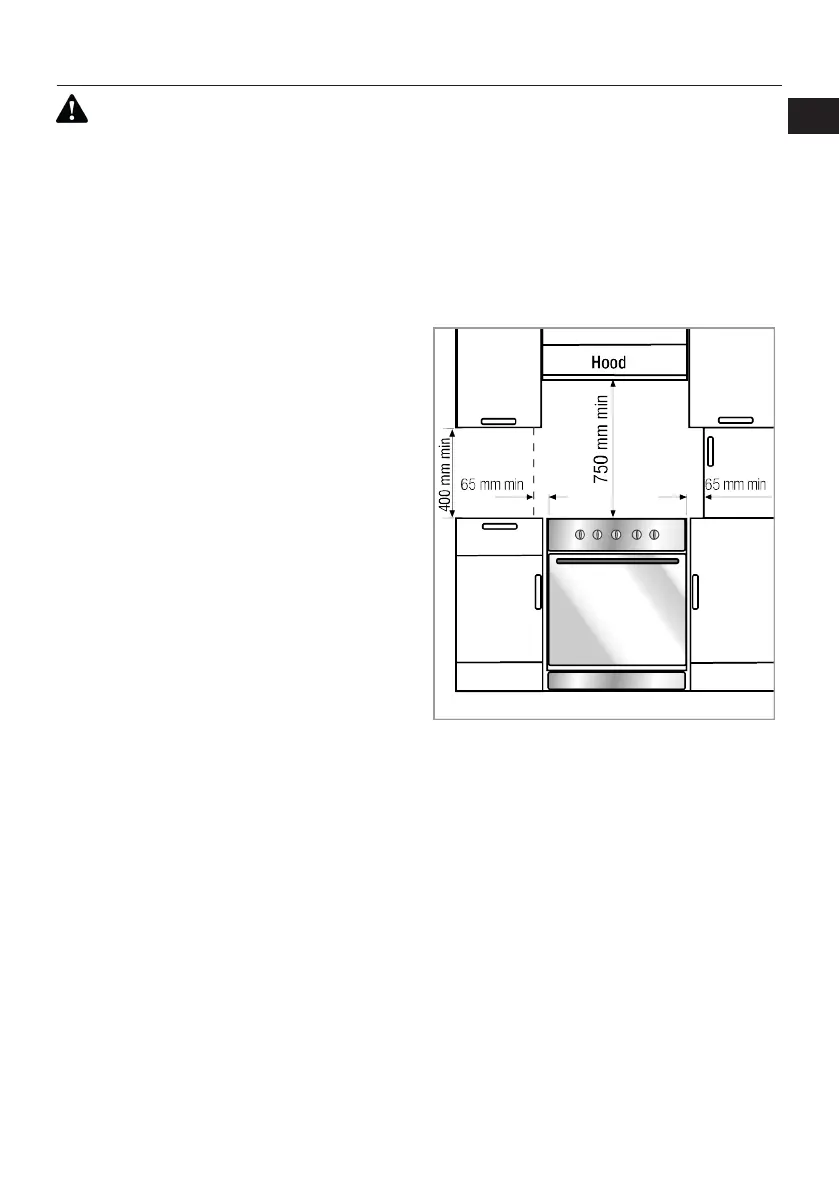
• Може да се използва с шкафове и от
двете страни, но за да се осигури
минимално разстояние от 400мм над
нивото на нагряващата плоча оставете
разстояние от 65мм отстрани, между
уреда и стени, прегради или високи
шкафове.
• Може да се използва и в свободно
положение. Оставете минимално
разстояние от 750 мм над
повърхността на котлоните.
• Ако над печката ще бъде монтиран
абсорбатор, направете справка с
указанията на производителя за
височината на монтиране. Ако не е
определен какъвто и да е размер в
ръководството за аспиратора, тази
височина трябва да бъде най-малко
650 mm.
• Всяка мебелировка, разположена до
уреда трябва да бъде топлоустойчива
(100 °C мин.).
Обезопасителна верига
Уредът трябва да се обезопаси срещу
свръхбалансиране с помощта на
веригата, доставена с фурната.
EN
BG
Bekijk gratis de handleiding van BEKO FBE64010WDN, stel vragen en lees de antwoorden op veelvoorkomende problemen, of gebruik onze assistent om sneller informatie in de handleiding te vinden of uitleg te krijgen over specifieke functies.
Productinformatie
| Merk | BEKO |
| Model | FBE64010WDN |
| Categorie | Fornuis |
| Taal | Nederlands |
| Grootte | 10894 MB |







