Handleiding
Je bekijkt pagina 23 van 108

EN / 23
4 Installation
General warnings
• Refer to the nearest Authorised Service
Agent for installation of the product.
Make sure that the electric and gas in-
stallations are in place before calling the
Authorised Service Agent to have the
product ready for operation. If not, call a
qualified electrician and fitter to have the
required arrangements made. The manu-
facturer shall not be held responsible for
damages arising from procedures carried
out by unauthorized persons which may
also void the warranty.
• It is customer's responsibility to prepare
the location the product shall be placed
on and also have power and/or gas utility
prepared.
• The rules specified in local standards
about electrical and/or gas installations
(legal rules on installation) shall be fol-
lowed during product installation./Para-
graph
• Check for any damage on the appliance
before the installation. Do not have it in-
stalled if the appliance is damaged. Dam-
aged products cause risks for your
safety.
4.1 Right place for installation
• Place the product on a hard surface be-
cause of the air ducts under the product.
It must not be placed onto a base or a
pedestal. The feet of the product should
not dip on soft surfaces, e.g. carpet, etc.
• The kitchen floor must be able to carry
the weight of the appliance plus the addi-
tional weight of cookware and bakeware
and food.
• This product is a class 1 device accord-
ing to EN 30-1-1standard. It can be
placed adjacent to the kitchen walls, kit-
chen furniture or any other product in any
dimension from behind and one edge.
The kitchen furniture or equipment on the
other side may only be of the same size
or smaller.
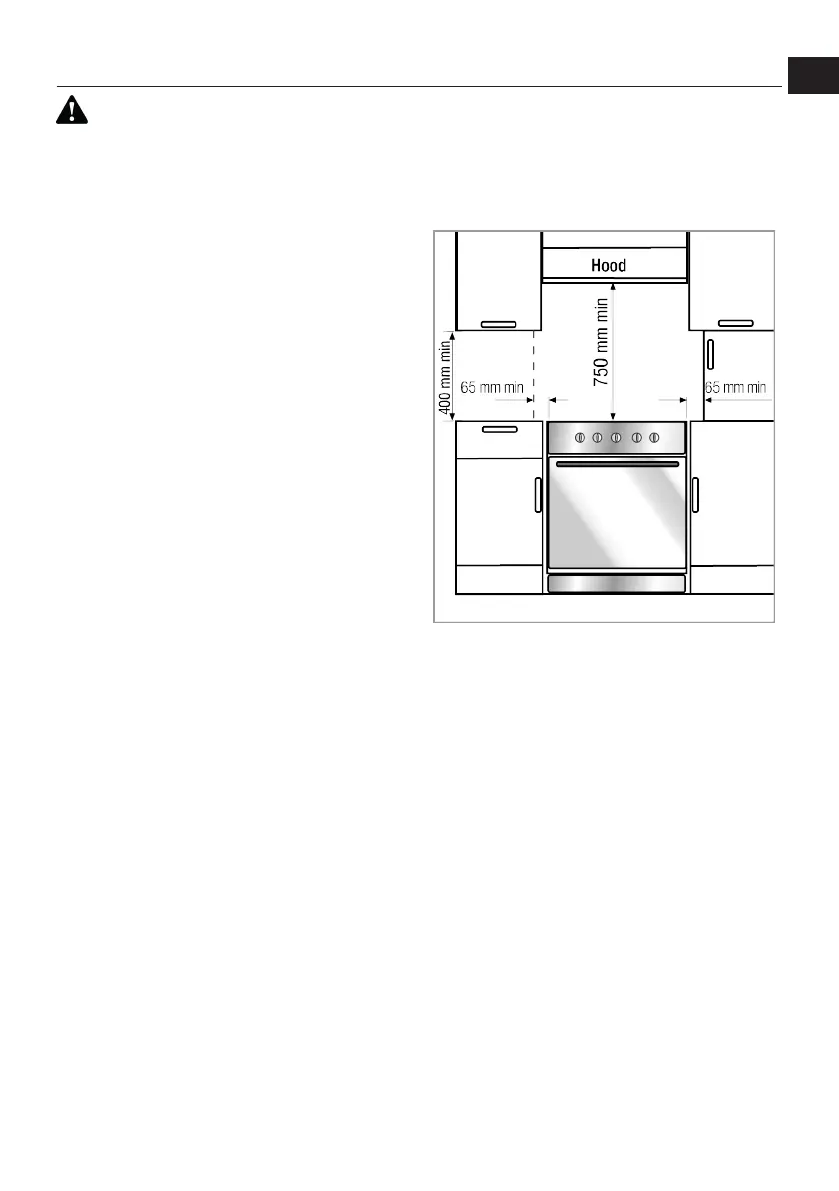
• It can be used with cabinets on either
side but in order to have a minimum dis-
tance of 400mm above hotplate level al-
low a side clearance of 65mm between
the appliance and any wall, partition or
tall cupboard.
• It can also be used in a free standing po-
sition. Allow a minimum distance of 750
mm above the hob surface.
• If a cooker hood is to be installed above
the cooker, refer to the instructions of the
manufacturer of the cooker hood regard-
ing installation height (min. 650 mm).
• Any kitchen furniture next to the appli-
ance must be heat-resistant (100 °C
min.).
Safety chain
The appliance must be secured against
overbalancing by using the supplied one
safety chain on your oven.
Warning - Risk of tipping!
EN
NL
Bekijk gratis de handleiding van BEKO FBE6133XS, stel vragen en lees de antwoorden op veelvoorkomende problemen, of gebruik onze assistent om sneller informatie in de handleiding te vinden of uitleg te krijgen over specifieke functies.
Productinformatie
| Merk | BEKO |
| Model | FBE6133XS |
| Categorie | Fornuis |
| Taal | Nederlands |
| Grootte | 11256 MB |







