Handleiding
Je bekijkt pagina 37 van 48

12 / AR
A
A
26
C
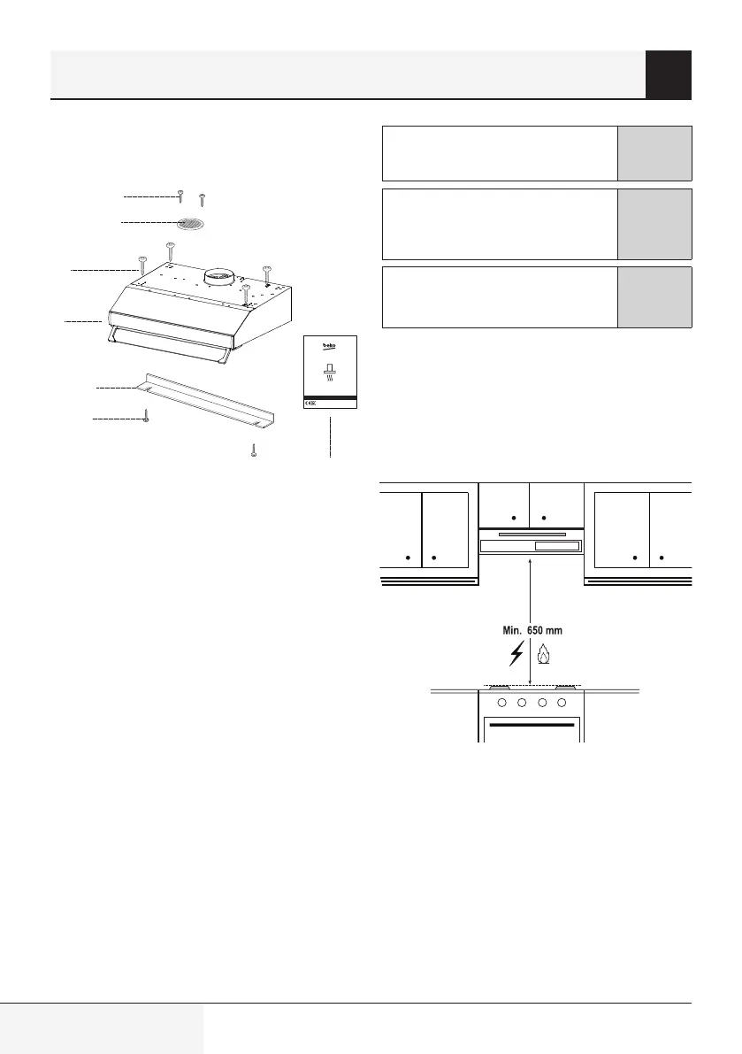
5.1
•
65
•
•
5
5.2
2
3
5
6
( 2 X 4,2 X 12,7 )
1
4
(4 X 4,2 X 44,4 )
( 2 X 2,9 X 12,7 )
7
07-2422-8904980220-01M
07-2422-8904880220-01M
07-2422-8946143200-01M
07-2422-8906530220-01M
07-2422-8946153200-01M
07-2422-8940711220-01M
07-2422-8942993200-01M
07-2422-8860503200-01M
07-2422-8904830220-01M
07-2422-8905530220-01M
07-89048402202422-01M
07-2422-8941613200-01M
EN - FR - DE - NL - ES - PT - LT - CS - SK - RO - HR - GR -TR - BG - LV - BS - RU -
ID - AR
CFB 6432 X
CFB 6432 W
CFB 6432 XG
CFB 6432 WH
CFB 6432 XH-1
CFB 6431 W
CFB 5432 W
CFB 6437 W
CFB 6438 X
User Manual
Cooker Hood
1
2
3
44
52
62
5.3
•
•
•
•
Bekijk gratis de handleiding van BEKO CFB 6432 XGHA, stel vragen en lees de antwoorden op veelvoorkomende problemen, of gebruik onze assistent om sneller informatie in de handleiding te vinden of uitleg te krijgen over specifieke functies.
Productinformatie
| Merk | BEKO |
| Model | CFB 6432 XGHA |
| Categorie | Afzuigkap |
| Taal | Nederlands |
| Grootte | 4838 MB |





