Handleiding
Je bekijkt pagina 34 van 124

34 / EN
Split type air conditioner / User Manual
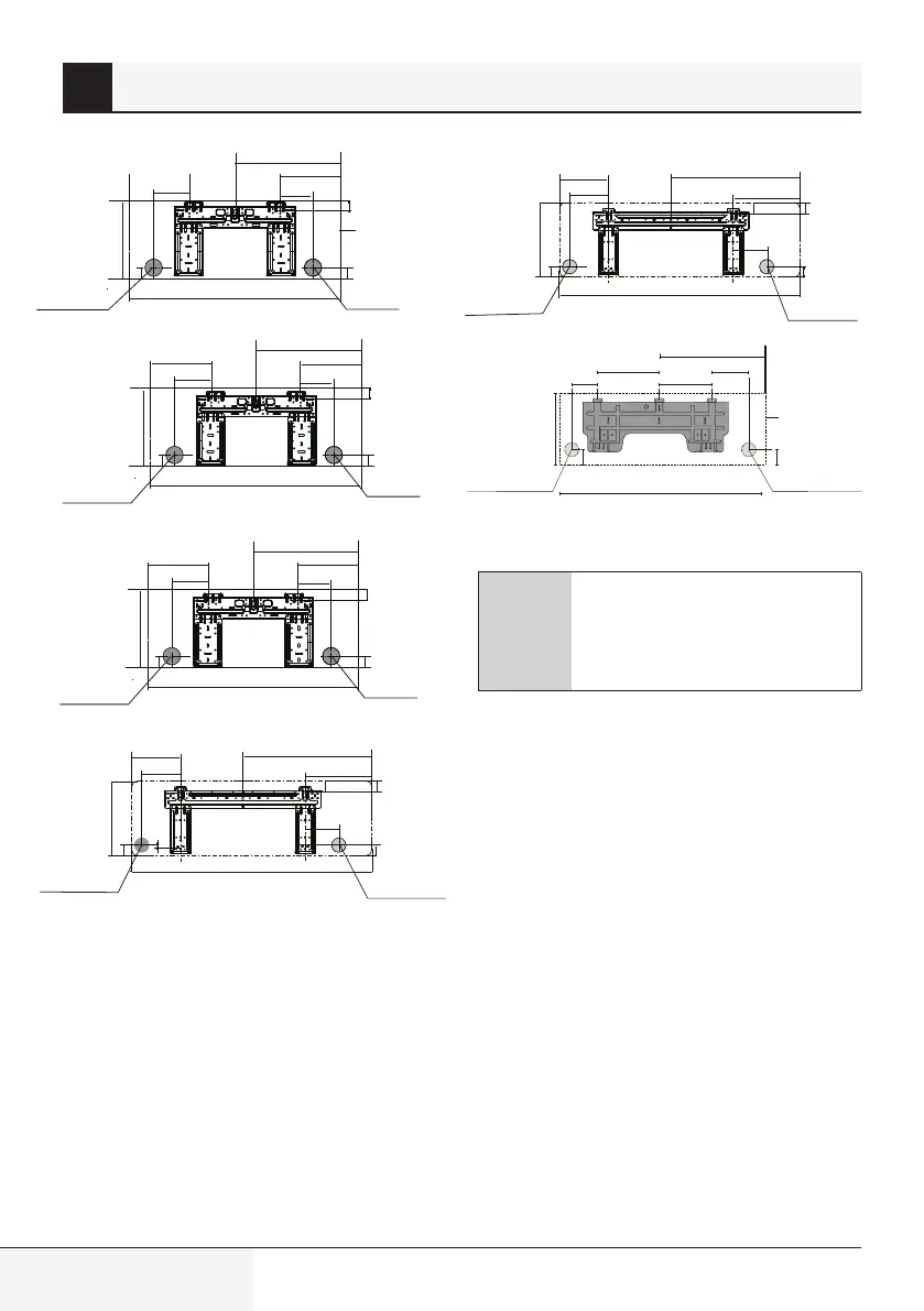
348.4mm (13.7in)
403mm (15.9in)
418mm (16.5in)
527mm (20.7in)
722mm (28.5in)
805mm (31.7in)
835mm (32.9in)
973mm(38.3in)
179mm (7.1in)
231mm (9.1in)
246mm (9.7in)
247mm (9.7in)
101mm(4.0in)
190mm (7.5in)
230mm (9.1in)
190mm(7.5in)
244mm(9.6in)
106mm(4.2in)
165mm (6.5in)
136mm (5.4in)
121mm (4.8in)
121mm (4.8in)
Model A
Model B
Model C
Model D
Indoor unit outline
Right rear wall hole
65mm (2.5in)
Right rear wall hole
65mm (2.5in)
Right rear wall hole
65mm (2.5in)
Right rear wall hole
65mm (2.5in)
Left rear wall hole
65mm (2.5in)
Left rear wall hole
65mm (2.5in)
Left rear wall hole
65mm (2.5in)
Left rear wall hole
65mm (2.5in)
290mm (11.4in)
297mm (11.7in)
297mm(11.7in)
318mm (12.5in)
49mm (1.95in)
47mm (1.8in)
47mm(1.8in)
48mm (1.9in)
29mm (1.1in)
37mm
(1.45in)
36mm
(1.4in)
36mm
(1.4in)
37mm (2.1in)
49mm
(1.95in)
53mm
(2.1in)
53mm
(2.1in)
48mm
(1.9in)
603mm (23.7in)
643.6mm (25.3in)
1082mm (42.6in)
1259mm (49.55in)
257mm (10.1in)
52mm (2.05in)
52mm (2.05in)
199mm (7.8in)
129mm (5.1in)
322mm (12.7in)
332mm (13.05in)
172mm (6.8in)
389mm (15.3in)
Model E
Model F
Indoor unit outline
Right rear wall hole
90mm (3.54in)
Right rear wall hole
90mm (3.54in)
Left rear wall hole
90mm (3.54in)
Left rear wall hole
90mm (3.54in)
338mm (13.3in)
362mm (14.25in)
54mm (2.1in)
55mm
(2.2in)
54mm
(2.1in)
173mm
(6.8in)
C
Note: When the gas side
connective pipe is Ø16mm (5/8in)
or more, the wall hole should be
90mm (3.54in).
Step 4: Prepare refrigerant piping
The refrigerant piping is inside an insulating
sleeve attached to the back of the unit. You must
prepare the piping before passing it through the
hole in the wall.
1. Based on the position of the wall hole relative
to the mounting plate, choose the side from
which the piping will exit the unit.
2. If the wall hole is behind the unit, keep the
knock-out panel in place. If the wall hole is to
the side of the indoor unit, remove the plastic
knock-out panel from that side of the unit.
This will create a slot through which your
piping can exit the unit. Use needle nose pliers
if the plastic panel is too difficult to remove
by hand.
8 Indoor unit installation
Bekijk gratis de handleiding van BEKO BSVIN 180, stel vragen en lees de antwoorden op veelvoorkomende problemen, of gebruik onze assistent om sneller informatie in de handleiding te vinden of uitleg te krijgen over specifieke functies.
Productinformatie
| Merk | BEKO |
| Model | BSVIN 180 |
| Categorie | Airco |
| Taal | Nederlands |
| Grootte | 11764 MB |







