Handleiding
Je bekijkt pagina 240 van 340

240 / 340 BS
Razdvojeni tip klima uređaja / Priručnik za korisnika
348,4 mm (13,7 inča)
403 mm (15,9 inča)
418 mm (16,5 inča)
527 mm (20,7 inča)
722 mm (28,5 inča)
805 mm (31,7 inča)
835 mm (32,9 inča)
973 mm (38,3 inča)
179 mm (7,1 inča)
231 mm (9,1 inča)
246 mm (9,7 inča)
247 mm (9,7 inča)
101 mm(4,0 inča)
190 mm (7,5 inča)
230 mm (9,1 inča)
190 mm (7,5 inča)
244 mm (9,6 inča)
106 mm (4,2 inča)
165 mm (6,5 inča)
136 mm (5,4 inča)
121 mm (4,8 inča)
121 mm (4,8 inča)
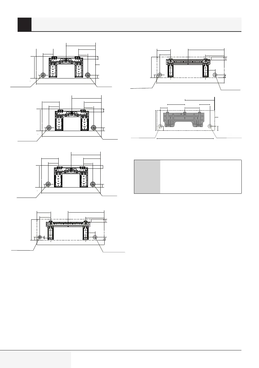
Model A
Model B
Model C
Model D
Obris unutrašnje jedinice
Desna stražnja rupa za
zid 65 mm (2,5 inča)
Desna stražnja
rupa za zid 65 mm
(2,5 inča)
Desna stražnja
rupa za zid 65 mm
(2,5 inča)
Desna stražnja
rupa za zid 65 mm
(2,5 inča)
Lijeva stražnja rupa za
zid 65 mm (2,5 inča)
Lijeva stražnja
rupa za zid 65 mm
(2,5 inča)
Lijeva stražnja
rupa za zid 65 mm
(2,5 inča)
Lijeva stražnja
rupa za zid 65 mm
(2,5 inča)
290 mm
(11,4 inča)
297 mm
(11,7 inča)
297 mm
(11,7 inča)
318 mm
(12,5 inča)
49 mm (1,95 inča)
47 mm (1,8 inča)
47 mm (1,8 inča)
48 mm (1,9 inča)
29 mm (1,1 inča)
37 mm
(1,45 inča)
36 mm
(1,4 inča)
36 mm
(1,4 inča)
37 mm
(2,1 inča)
49 mm
(1,95 inča)
53 mm
(2,1 inča)
53 mm
(2,1 inča)
48 mm
(1,9 inča)
603 mm (23,7 inča)
643,6 mm (25,3 inča)
1082 mm (42,6 inča)
1259 mm (49,55 inča)
257 mm (10,1 inča)
52 mm (2,05 inča)
52 mm (2,05 inča)
199 mm (7,8 inča)
129 mm (5,1 inča)
322 mm (12,7 inča)
332 mm (13,05 inča)
172 mm (6,8 inča)
389 mm (15,3 inča)
Model E
Model F
Obris unutrašnje jedinice
Otvor na desnom
stražnjem zidu
90 mm (3,54 inča)
Otvor na desnom
stražnjem zidu 90 mm
(3,54 inča)
Otvor na lijevom
stražnjem zidu
90 mm (3,54 inča)
Otvor na lijevom
stražnjem zidu
90 mm (3,54 inča)
338 mm
(13,3 inča)
362 mm
(14,25 inča)
54 mm (2,1 inča)
55 mm
(2,2 inča)
54 mm
(2,1 inča)
173 mm
(6,8 inča)
C
Napomena: Kada je spojna cijev
na strani s plinom Ø16 mm
(5/8 inča) ili više, otvor u zidu
treba biti 90 mm (3,54 inča).
Korak 4: Pripremite cijevi za rashladni medij
Cijevi za rashladni medij je unutar izolirajuće
navlake priključena na stražnjoj strani jedinice.
Morate pripremiti cijev prije nego što prođe kroz
rupu u zidu.
1. Na osnovu položaja rupe u zidu u odnosu na
montažnu ploču, odabrati stranu na kojoj će
cijevi izaći iz jedinice.
2. Ako je rupa u zidu iza jedinice, zadržati
razvodnu ploču na mjestu. Ako je rupa u
zidu na strani unutrašnje jedinice, uklonite
plastičnu razvodnu ploču s te strane jedinice.
To će stvoriti utor kroz koji cijevi mogu izaći
iz uređaja. Koristite špicasta kliješta ako je
plastični poklopac previše teško ukloniti ručno.
8 Ugradnja unutrašnje jedinice
Bekijk gratis de handleiding van BEKO BEVPG 240/ BEVPG 241, stel vragen en lees de antwoorden op veelvoorkomende problemen, of gebruik onze assistent om sneller informatie in de handleiding te vinden of uitleg te krijgen over specifieke functies.
Productinformatie
| Merk | BEKO |
| Model | BEVPG 240/ BEVPG 241 |
| Categorie | Airco |
| Taal | Nederlands |
| Grootte | 35842 MB |







