Bauknecht BSFO 3O21 PF handleiding
Handleiding
Je bekijkt pagina 13 van 16

DE
5
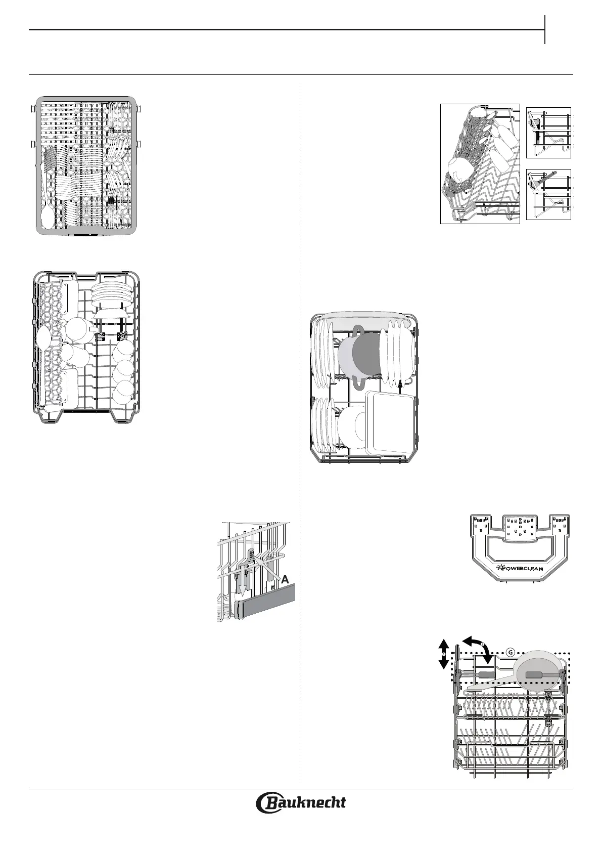
KÖRBE BELADEN
KLAPPBARE KLAPPEN MIT VERSTELLBARER POSITION
Die seitlich, klappbaren Ablagen
können ein- oder aufgeklappt
werden, um die Anordnung des
Geschirrs im Korb zu optimieren.
Stielgläser können an den Abla-
gen stabilisiert werden, indem sie
mit dem Stiel in die vorgesehene
Aussparung gestellt werden.
Je nach Modell:
– Zum Ausklappen der Ablagen,
müssen diese nach oben ge-
schoben und gedreht oder aus
den Schnappern gelöst und
nach unten gezogen werden.
– Zum Einklappen der Ablagen, müssen diese gedreht und nach unten
geschoben oder nach oben gezogen und an den Schnappern befe-
stigt werden.
UNTERKORB
Für Töpfe, Deckel, Teller, Salatschüsseln,
Besteck usw. Große Teller und Deckel
sollten idealerweise an die Seiten gelegt
werden, um nicht mit dem Sprüharm in
Kontakt zu kommen
Der Unterkorb verfügt über klappbare
Ablagen, die in vertikaler Stellung für
Teller oder in horizontaler (niedriger)
Position für Pfannen und Salatschüsseln
verwendet werden können.
(Sortierbeispiel für den Unterkorb)
POWER CLEAN® IM UNTERKORB
Bei Power Clean® sorgen spezielle
Wasserdüsen hinten im Gerät für
eine verstärkte Reinigung von stark
verschmutztem Geschirr. Der Unterkorb
hat eine Raumzone, eine spezielle
Halterung zum Herausziehen an der
Korbhinterseite, welche benutzt werden
kann um Pfannen oder Backbleche in senkrechter Position zu halten,
und so weniger Raum zu beanspruchen.
Wenn die Töpfe/Bräter in Richtung Power Clean® eingelegt werden,
bitte POWER CLEAN® auf der Bedienblende aktivieren.
Verwendung von Power Clean®:
1. Passen Sie Power Clean®-
-Bereich G an, indem Sie die
hinteren Tellerhalterungen
herunterklappen, um Töpfe
einzuladen.
2. Laden Sie Töpfe und Bräter
senkrecht im Power Clean®-
-Bereich ein. Die Töpfe müssen
mit der oenen Seite zu den
Power- Sprühdüsen geneigt
sein.
BESTECKSCHUBLADE
Die dritte Schublade wurde für das Hine-
inlegen von Besteck entwickelt. Platzie-
ren Sie das Besteck wie abgebildet.
Eine getrennte Anordnung des Bestecks
macht das Sortieren nach dem Spülen
einfacher und verbessert die Spül- und
Trockenleistung.
Messer und andere Küchenutensilien
mit scharfen Spitzen sind mit nach
unten gerichteten Schneiden einzu-
ordnen.
OBERKORB
Hier sortieren Sie empndliches und le-
ichtes Geschirr ein: Gläser, Tassen, kleine
Teller, ache Schüsseln.
Der Oberkorb verfügt über klappbare
Halterungen, die in vertikaler Stellung
für Untertassen oder Dessertteller oder
in einer tieferen Stellung für Schüsseln
und sonstige Behältnisse verwendet
werden können.
(Sortierbeispiel für den Oberkor)
HÖHENEINSTELLUNG DES OBERKORBES
Der Oberkorb kann in der Höhe verstellt werden: stellen Sie ihn in die
oberste Position, wenn Sie großes Geschirr in den Unterkorb einräu-
men wollen. Wenn Sie eher die klappbaren Bereiche nutzen wollen,
dann stellen Sie ihn in die untere Position. Somit vermeiden Sie Zusam-
menstoßen mit dem Geschirr im Unterkorb.
Der Oberkorb ist mit einem Oberkorb Höhe-
nversteller (siehe Abbildung) ausgestattet. Ohne
Drücken der Hebel kann er einfach durch Heben
der Korbseiten angehoben werden, sobald der
Korb stabil in seiner unteren Stellung ist. Um den
Korb zurück in die untere Stellung zu bringen,
drücken Sie die Hebel A an den Seiten des Korbs
und schieben Sie ihn nach unten.
Es empehlt sich, die Höhe des Oberkorbes bei
leerem Korb zu regulieren.
Heben oder senken Sie den Korb NIEMALS nur an einer Seite.
Bekijk gratis de handleiding van Bauknecht BSFO 3O21 PF, stel vragen en lees de antwoorden op veelvoorkomende problemen, of gebruik onze assistent om sneller informatie in de handleiding te vinden of uitleg te krijgen over specifieke functies.
Productinformatie
Merk | Bauknecht |
Model | BSFO 3O21 PF |
Categorie | Vaatwasser |
Taal | Nederlands |
Grootte | 3159 MB |