Handleiding
Je bekijkt pagina 17 van 32

Installatie en bediening
700341V1 15 / 30
NL
• Om schade aan de compressor te voorkomen, mag het apparaat tijdens
installatie of transport niet onder een hoek van meer dan 45 ° worden gekanteld.
• Ga als volgt te werk als het apparaat moet worden verplaatst:
– uitzetten van het toestel
– trek de stekker uit het stopcontact
– de inhoud uit het apparaat halen
– Plak alle losse delen stevig vast in de binnenkamer en plak de deur af
– Het apparaat kan alleen rechtop worden vervoerd
• Die Steckdose m uss leicht zugä nglich sein, so dass das Stromk abel notfalls sch nell abgezoge n werden kan n.• Het stopcontact m oet vrij toega nkelijk zijn, zod at de stroomka bel in een noodgev al snel van het lichtnet kan w orden gehaald. Het stopcontact m oet vrij toega nkelijk zijn, zod at de stroomka bel in een noodgev al snel van h et lichtnet kan w orden gehaald.
TIP!
Er zijn twee mensen nodig om het apparaat te plaatsen!
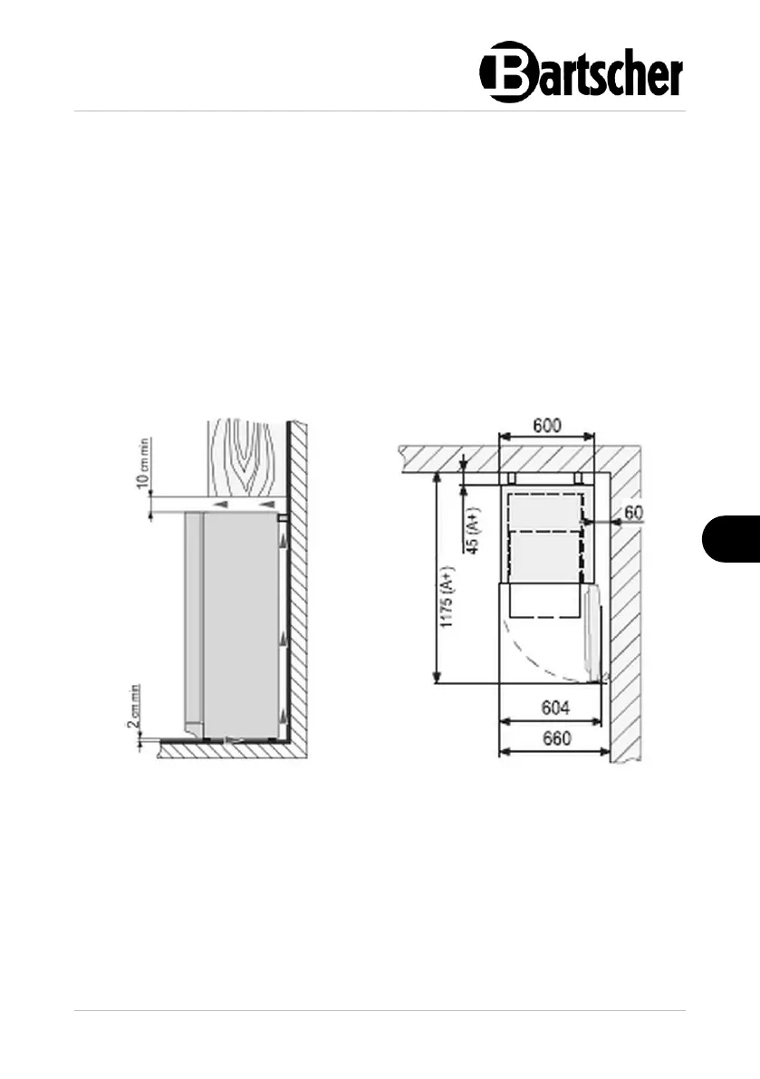
Afb. 3
Afb. 4
• De ventilatie-opening aan de bovenzijde van de koelkast mag niet worden
afgedekt, het is noodzakelijk om voor een onbelemmerde luchtcirculatie te
zorgen.
• Bewaar een afstand van minimaal 10 cm tussen de bovenzijde van het apparaat
en erboven geplaatste objecten (bijv. een kast) (afb. 3).
OPGELET!
Als de opgegeven intervallen niet worden aangehouden, neemt het
stroomverbruik toe of raakt de compressor oververhit.
Bekijk gratis de handleiding van Bartscher TK1-111, stel vragen en lees de antwoorden op veelvoorkomende problemen, of gebruik onze assistent om sneller informatie in de handleiding te vinden of uitleg te krijgen over specifieke functies.
Productinformatie
| Merk | Bartscher |
| Model | TK1-111 |
| Categorie | Vriezer |
| Taal | Nederlands |
| Grootte | 2842 MB |