Handleiding
Je bekijkt pagina 50 van 58

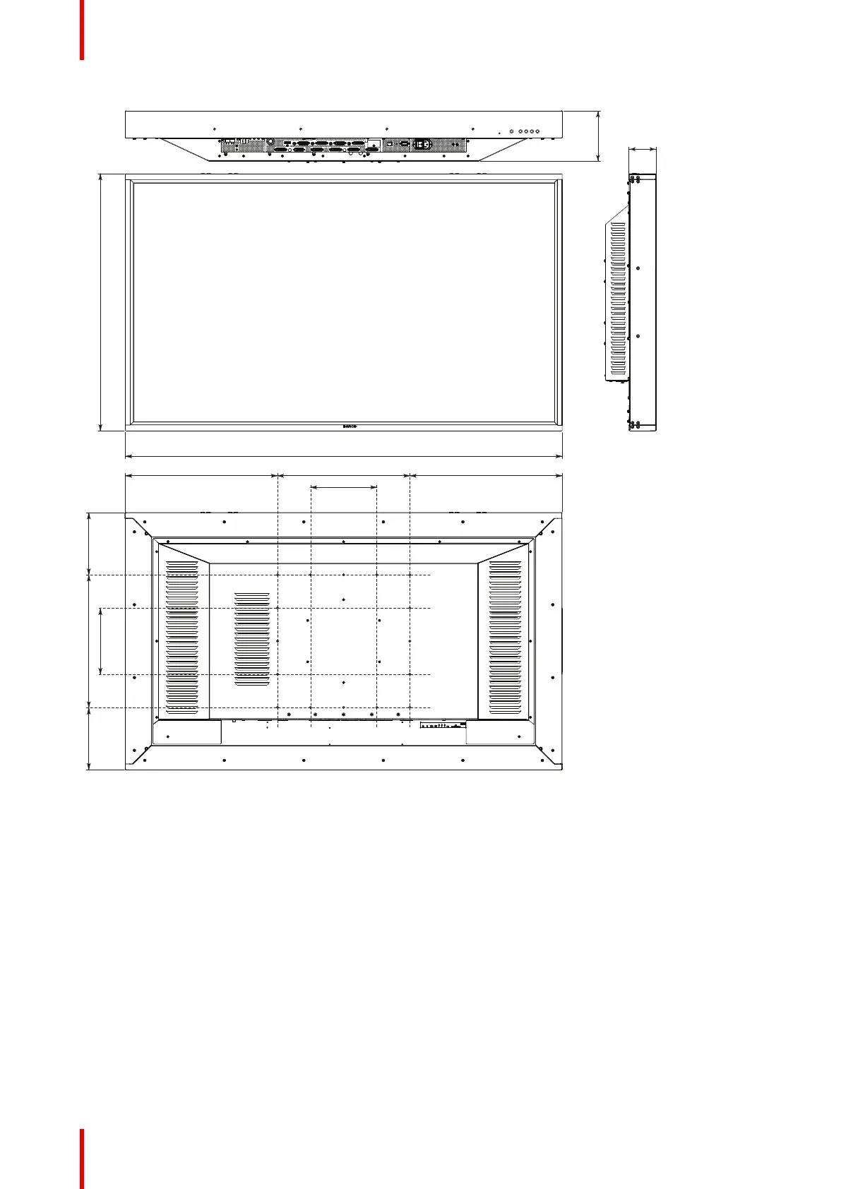
K5902150NL /05 MDSC-835850
778
1326.5
483.25
483.25
400
200
400
200
189
189
153.7
82.2
Afbeelding 6–2
6.11 Open Source licentie-informatie
Open Source licentie-informatie
Dit product bevat softwarecomponenten die vrijgegeven zijn overeenkomstig een Open Source-licentie. U
bevestigt dat u de voorwaarden naleeft van elke individuele open source-softwarelicentie.
Een lijst van de gebruikte Open Source-softwarecomponenten vindt u in de relevante EULA, via het gedeelte
"My Barco" van de Barco-website of via andere (online)middelen.
Het auteursrecht op elke Open Source-softwarecomponent berust bij de respectieve eerste houder van het
auteursrecht, elke bijkomende bijdrager en/of hun respectieve afgevaardigde(n), die in de respectieve open-
sourcesoftwaredocumentatie, broncode, README-bestanden of op een andere wijze geïdentificeerd kunnen
zijn. U mag de respectieve auteursrechten niet verwijderen, verbergen of op een andere wijze veranderen.
ELKE INDIVIDUELE OPEN SOURCE-SOFTWARECOMPONENT EN ALLE BIJBEHORENDE
DOCUMENTATIE WORDT "ZONDER MEER" GELEVERD ZONDER UITDRUKKELIJKE OF IMPLICIETE
GARANTIE, MET INBEGRIP VAN MAAR NIET BEPERKT TOT DE IMPLICIETE GARANTIES VAN
Belangrijke informatie
Bekijk gratis de handleiding van Barco MDSC-8358, stel vragen en lees de antwoorden op veelvoorkomende problemen, of gebruik onze assistent om sneller informatie in de handleiding te vinden of uitleg te krijgen over specifieke functies.
Productinformatie
| Merk | Barco |
| Model | MDSC-8358 |
| Categorie | Monitor |
| Taal | Nederlands |
| Grootte | 4920 MB |







