Atosa CookRite ATHC-18ES handleiding

24 pagina's
PDF beschikbaar

Handleiding

Je bekijkt pagina 20 van 24
20
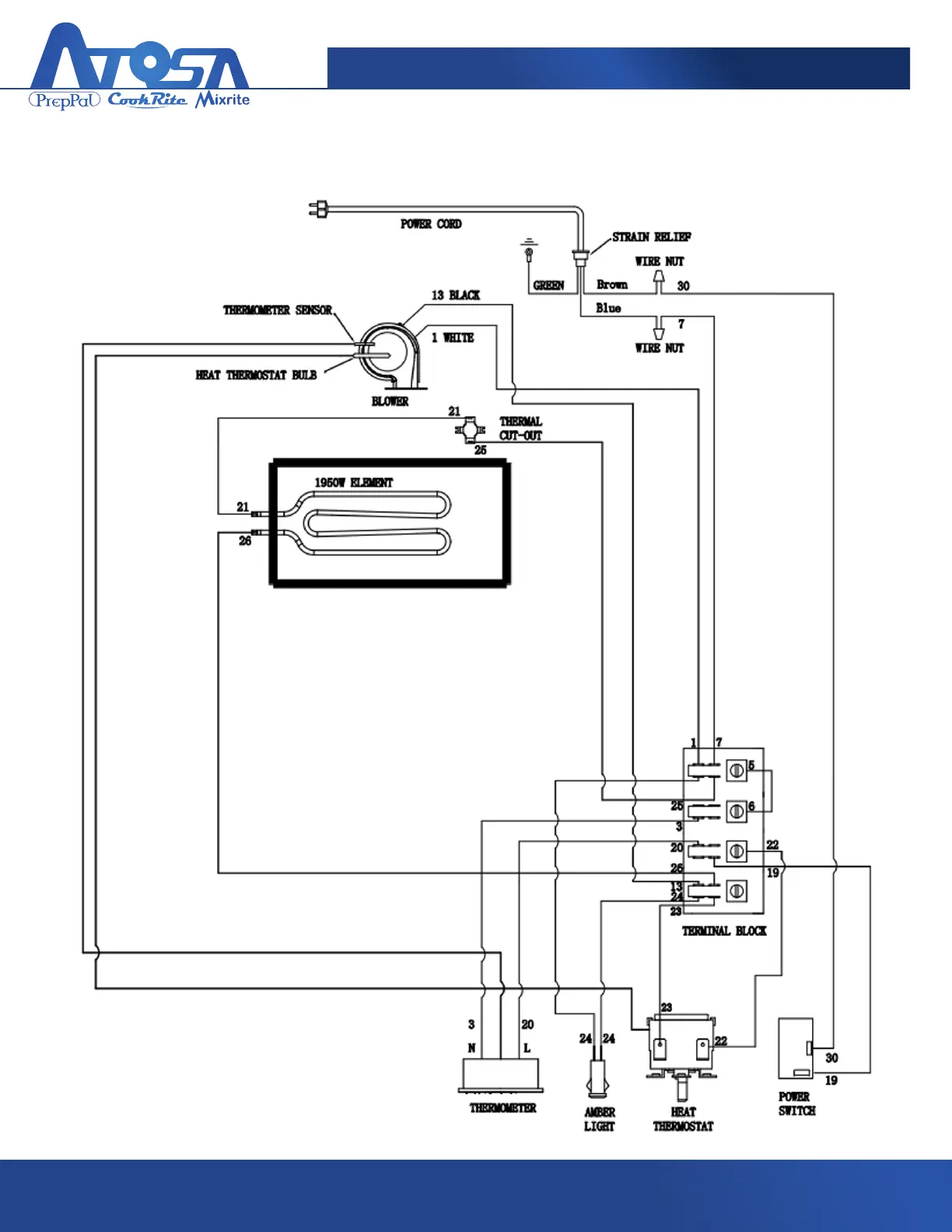
ATHC & ATWC
Wiring Diagram (ATHC-9-ES & ATHC-18-ES)

Bekijk gratis de handleiding van Atosa CookRite ATHC-18ES, stel vragen en lees de antwoorden op veelvoorkomende problemen, of gebruik onze assistent om sneller informatie in de handleiding te vinden of uitleg te krijgen over specifieke functies.

Productinformatie

MerkAtosa
ModelCookRite ATHC-18ES
CategorieNiet gecategoriseerd
TaalNederlands
Grootte6438 MB