Asus ROG Strix XG259QNG handleiding

36 pagina's
PDF beschikbaar

Handleiding

Je bekijkt pagina 31 van 36
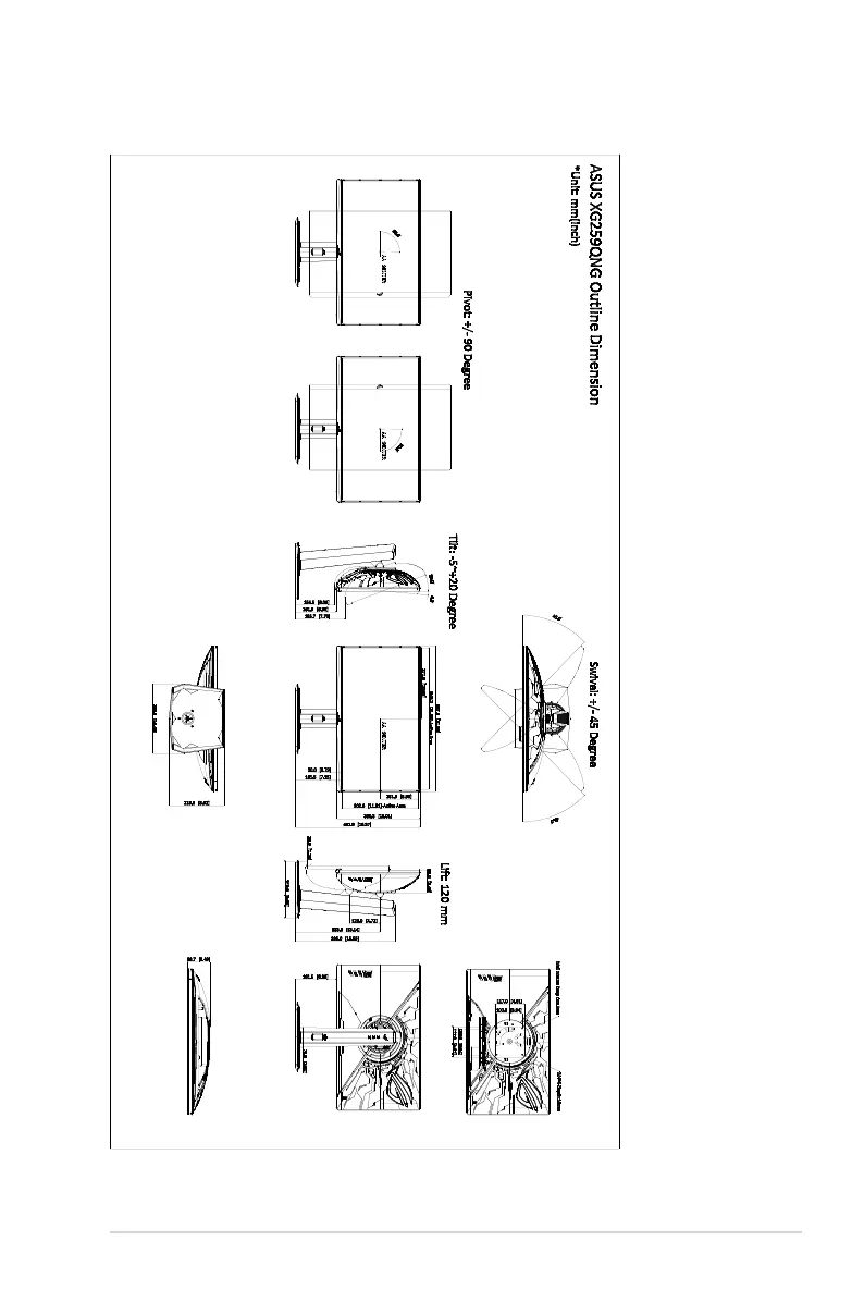
3-13ROG STRIX XG259QNG Series Gaming LCD Monitor
3.4 Outlinedimensions

Bekijk gratis de handleiding van Asus ROG Strix XG259QNG, stel vragen en lees de antwoorden op veelvoorkomende problemen, of gebruik onze assistent om sneller informatie in de handleiding te vinden of uitleg te krijgen over specifieke functies.

Productinformatie

MerkAsus
ModelROG Strix XG259QNG
CategorieMonitor
TaalNederlands
Grootte3251 MB