Asus PE6000G handleiding

116 pagina's
PDF beschikbaar

Handleiding

Je bekijkt pagina 39 van 116
39
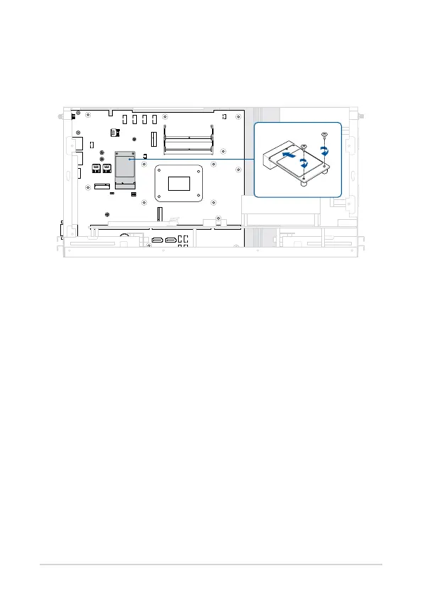
To install an mSATA storage module
Align and insert the mSATA storage module into the slot, press it down
and secure it in place using two (2) screws.

Bekijk gratis de handleiding van Asus PE6000G, stel vragen en lees de antwoorden op veelvoorkomende problemen, of gebruik onze assistent om sneller informatie in de handleiding te vinden of uitleg te krijgen over specifieke functies.

Productinformatie

MerkAsus
ModelPE6000G
CategorieNiet gecategoriseerd
TaalNederlands
Grootte5675 MB